Titel:
			Baugenehmigung, Bebauungsplan, Bauantrag, Vorhaben, Bescheid, Klagebefugnis, Gemarkung, Festsetzungen, Hinterlegung, Verfahren, Gesellschaft, Tiefgarage, Wiedereinsetzung, Klage, Erteilung einer Baugenehmigung, Kosten des Verfahrens, Wiedereinsetzung in den vorigen Stand
			Schlagworte:
			Baugenehmigung, Bebauungsplan, Bauantrag, Vorhaben, Bescheid, Klagebefugnis, Gemarkung, Festsetzungen, Hinterlegung, Verfahren, Gesellschaft, Tiefgarage, Wiedereinsetzung, Klage, Erteilung einer Baugenehmigung, Kosten des Verfahrens, Wiedereinsetzung in den vorigen Stand
			Rechtsmittelinstanz:
			VGH München, Beschluss vom 01.02.2021 – 15 ZB 20.747
			Fundstelle:
			BeckRS 2020, 41318
		 
		 
		Tenor
		
			
			I. Die Klage wird abgewiesen. 
		 
		
			
			II. Die Kläger tragen die Kosten des Verfahrens als Gesamtschuldner. 
		 
		
			
			III. Das Urteil ist im Kostenpunkt vorläufig vollstreckbar. Der jeweilige Vollstreckungsschuldner kann die Vollstreckung durch Sicherheitsleistung oder Hinterlegung in Höhe des zu vollstreckenden Betrags abwenden, wenn nicht die Beklagte vor der Vollstreckung Sicherheit in gleicher Höhe leistet.  
		 
		Tatbestand
		
			1
			Die Kläger begehren von der Beklagten die Erteilung einer Baugenehmigung für die Errichtung einer Reihenhauszeile mit vier Reihenhäusern sowie einer Tiefgarage.
		 
		
			2
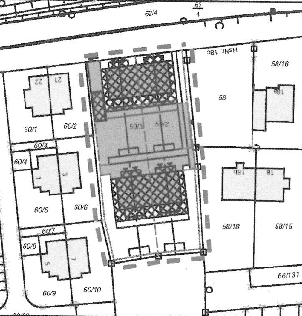
			Am 19.12.2016 gingen bei der Beklagten drei Baugenehmigungsanträge der „Bauherrengemeinschaft M ... A ..., N ... A ..., C ..., D ...“ (G...-Weg 2, R ...) ein. Gegenstand der Bauanträge ist die Errichtung von zwei Reihenhauszeilen mit jeweils vier Reihenhäusern sowie einer Tiefgarage auf den benachbarten Grundstücken FlNr. 59/2 und FlNr. 59/3 (sämtliche FlNrn. Gemarkung D ...). Die Bauanträge sind jeweils gekennzeichnet mit „Reihenhaus 1-4“, „Reihenhaus 5-8“ und „Tiefgarage“. Dabei sind die beiden Reihenhauszeilen so angeordnet, dass jeweils zwei Reihenhäuser auf dem Grundstück FlNr. 59/3 (Reihenhäuser 1 u. 2 sowie 5 u. 6) und die beiden weiteren Reihenhäuser auf dem Grundstück FlNr. 59/2 (Reihenhäuser 3 u. 4 sowie 7 u. 8) errichtet werden sollen. Die Tiefgarage soll sich unter beiden Grundstücken erstrecken; die Tiefgaragenzufahrt ist auf dem Grundstück FlNr. 59/3 geplant. Die Bauanträge und Baupläne für die drei getrennt beantragten Vorhaben sind jeweils von den vier Mitgliedern der Bauherrengemeinschaft und dem Planfertiger unterschrieben.
		 
		
		
			
			(Maßstab durch Skalierung geändert)
		 
		
			3
			Im Rahmen des Baugenehmigungsverfahrens äußerte sich das Stadtplanungsamt der Beklagten unter dem 15.02.2017 dahingehend, dass sich das geplante Vorhaben im Geltungsbereich des Bebauungsplans Nr. 188 „F ...“ befinde. Es weiche deutlich von den Festsetzungen des Bebauungsplans ab. Die Baukörper einschließlich der Tiefgarage lägen im Wesentlichen außerhalb des zulässigen Bauraums. Es seien die Grundzüge der Planung betroffen. Im Jahr 2000 sei hinsichtlich des Bebauungsplans Nr. 188 ein Aufhebungsverfahren eingeleitet worden. Grund dafür seien die hohen Lärmemissionen der angrenzenden Bahnstrecken gewesen. Das Verfahren sei jedoch ausgesetzt worden. Am 14.12.2016 habe der Ausschuss für Stadtplanung, Verkehr und Wohnungsfragen die Verwaltung gebeten, den Bebauungsplan Nr. 188 bei Gelegenheit - aber nicht mit höchster Priorität - aufzuheben, da er funktionslos sei und kein Maßstab mehr für eine zukünftige Bebauung in diesem Bereich sein könne. Das Aufhebungsverfahren könne wegen der Dringlichkeit anderer Projekte jedoch auf absehbare Zeit nicht durchgeführt werden.
		 
		
			4
			Mit Schreiben vom 13.02.2017 teilte die Beklagte der Bauherrengemeinschaft mit, dass das Aufhebungsverfahren für den Bebauungsplan nicht vor dem Jahr 2018 beginnen könne. Es werde daher um Mitteilung gebeten, ob die fehlenden Nachbarunterschriften beigebracht werden könnten. Ohne diese könnten keine Befreiungen von den Festsetzungen des Bebauungsplans erteilt werden. Anderenfalls werde um Rücknahme des Bauantrags gebeten. Hierauf äußerte ein Mitglied der Bauherrengemeinschaft (D ...) „stellvertretend für Bauherrengemeinschaft C ... und A ...“ mit E-Mail vom 27.03.2017 gegenüber der Beklagten, man befinde sich in rechtlicher Beratung mit einem Rechtsanwalt und der Bauantrag werde nicht zurückgezogen.
		 
		
			5
			Mit Schreiben vom 27.03.2017 zeigten die Klägerbevollmächtigten der Beklagten unter Vorlage einer Vollmacht die Vertretung ihres Mandanten C ... C ... in der Bausache an. Nach erfolgter Akteneinsicht forderten sie mit Schreiben vom 27.06.2017 nochmals die Erteilung der Baugenehmigung bis 15.07.2017. Ein gleichlautendes Schreiben wurde mit dem Betreff „Unser Mandant: M ... A ...“ an die Beklagte gerichtet. Hierauf antwortete die Beklagte unter dem 17.07.2017, ohne die erforderlichen Unterschriften der betroffenen Nachbarn könne eine Befreiung von den Festsetzungen des Bebauungsplans nicht erteilt werden. Es werde nochmals Gelegenheit gegeben, den Bauantrag bis spätestens 11.08.2017 zurückzunehmen. Anderenfalls werde er abgelehnt. Mit Schreiben vom 09.08.2017 monierten die Klägerbevollmächtigten gegenüber der Beklagten, dass unter dem von der Beklagten verwendeten Geschäftszeichen lediglich die Angelegenheit des Mandanten M ... A ... geführt werde, nicht aber die Angelegenheit des Mandanten C ... C ... Auch wenn beide Angelegenheiten ähnlich gelagert sein mögen, werde aus Gründen der Zuordnung um eine eindeutige Adressierung gebeten. Eine unzweideutige Aktenführung dürfte auch im Interesse der Beklagten liegen. Mit Schreiben vom 22.08.2017 baten die Klägerbevollmächtigten um eine rechtsmittelfähige Entscheidung bis spätestens 06.09.2017.
		 
		
			6
			Mit Schriftsatz seiner Bevollmächtigten vom 23.10.2017, eingegangen bei Gericht am 24.10.2017, ließ der Kläger zu 1) Klage zum Verwaltungsgericht Regensburg erheben. Beantragt wurde dabei, die Beklagte zu verpflichten, dem Kläger gemäß seinem Bauantrag vom 19.12.2016 die Baugenehmigung für die Errichtung einer Reihenhauszeile mit 4 Reihenhäusern sowie einer Tiefgarage auf dem Flurstück 59/3 der Gemarkung D ... zu erteilen, hilfsweise, die Beklagte zu verpflichten, über den Bauantrag des Klägers vom 19.12.2016 gemäß der Rechtsauffassung des Gerichts zu entscheiden. Zur Begründung wurde dargelegt, die Klage sei als Untätigkeitsklage zulässig und begründet. Der Bebauungsplan Nr. 188 der Beklagten könne dem Vorhaben nicht entgegengehalten werden, da er funktionslos geworden sei.
		 
		
			7
			Am 27.10.2017 erhoben die Klägerbevollmächtigten für das anderweitig vertretene Mitglied der Bauherrengemeinschaft (C ... C ...) ebenfalls Klage zum Verwaltungsgericht Regensburg, die unter dem Az. RO 2 K 17.1883 geführt wird. Mit Schriftsatz vom 18.03.2019 wurde in diese Klage ein weiteres Mitglied der Bauherrengemeinschaft (D ...) einbezogen. Die Akten wurden beigezogen, hierauf wird verwiesen.
		 
		
			8
			Mit Schreiben vom 04.04.2018 erklärten die Klägerbevollmächtigten im vorliegenden Verfahren, die Beklagte habe mittlerweile den klägerischen Bauantrag abgelehnt. Es werde nunmehr beantragt, den Ablehnungsbescheid der Stadt R ... vom 01.03.2018 (Az. 63.1/03438-3441/2016-02) aufzuheben und die Beklagte zu verpflichten, dem Kläger gemäß seinem Bauantrag vom 19.12.2016 die Baugenehmigung für die Errichtung einer Reihenhauszeile mit vier Reihenhäusern sowie einer Tiefgarage auf dem Flurstück 59/3 zu erteilen. Beigefügt war der Bescheid vom 01.03.2018, mit dem die Genehmigung für das Bauvorhaben hinsichtlich der Reihenhäuser 1 - 4 abgelehnt und die Bauherrengemeinschaft zur Tragung der Verfahrenskosten verpflichtet wurde. Eingeleitet wird der an die Klägerbevollmächtigten zugestellte Bescheid mit „Sehr geehrter Herr A ...“.
		 
		
			9
			Mit Schriftsatz vom 27.04.2018 teilten die Klägerbevollmächtigten mit, Gegenstand der Klage seien sämtliche auf dem Flurstück 59/3 geplanten Reihenhäuser sowie der Teil der Tiefgarage, der auf dem klägerischen Grundstück liege. Mittlerweile habe sich herausgestellt, dass die Beklagte neben dem Ablehnungsbescheid vom 01.03.2018, der in das Klageverfahren einbezogen worden sei, weitere Bescheide erlassen habe. Es handle sich um Bescheide ebenfalls vom 01.03.2018 mit den Aktenzeichen 63.1/03446/2016-02 sowie 63.1/03442-3445/2016-02. Diese Bescheide beziehen sich auf die zur Genehmigung beantragten Reihenhäuser 5 - 8 sowie die Tiefgarage. Des Weiteren wurde dargelegt, die Beklagte habe den Klägerbevollmächtigten am 08.03.2018 die Bauantragsmappe betreffend die Reihenhäuser 1 - 4 übermittelt. Obenauf seien zwei Empfangsbekenntnisse sowie der mit Schriftsatz vom 04.04.2018 in das Klageverfahren einbezogene Bescheid gelegen. In zwei weiteren Mappen hätten sich allerdings noch weitere Bescheide befunden, die von einer Mitarbeiterin zunächst übersehen worden seien. Anlässlich einer Mahnung der Stadtkasse sei erst am 23.04.2018 festgestellt worden, dass sich insgesamt drei Mappen in der Kanzlei befinden und sich in den weiteren Akten noch Empfangsbekenntnisse und jeweils zwei Bescheide befunden hätten. Es werde Wiedereinsetzung in den vorigen Stand beantragt.
		 
		
			10
			Mit Schriftsatz vom 15.05.2019 erweiterten die Klägerbevollmächtigten die Klage erneut. Die Klägerin zu 2) wurde auf der Aktivseite in das Verfahren einbezogen. Gleichzeitig wurde beantragt, das Verfahren mit dem Parallelverfahren RO 2 K 17.1833 (Kläger C ... C ... und D ... D ...) zur gemeinsamen Verhandlung und Entscheidung zu verbinden.
		 
		
			11
			Die Klagepartei sei bisher schlicht der Verfahrensführung der Beklagten gefolgt. So sei über den Antrag der Klägerinnen bis heute noch nicht entschieden. Die Bescheide vom 01.03.2018 richteten sich ausdrücklich an „Herrn A ...“ bzw. „Herrn C ...“ als Inhaltsadressaten. Gegenüber den Klägerinnen der beiden Verfahren könne es zu keiner Verfristung kommen. Auch wenn es zutreffe, dass die vier Kläger im Bauantrag als Bauherrengemeinschaft aufgeführt seien, so entspreche die Aufteilung in drei einzelne Verfahren doch wieder der Verwaltungsorganisation der Beklagten, die eine solche Antragstellung angeregt habe. Der zusammengefassten Antragstellung durch die Bauherrengemeinschaft hätte es entsprochen, auch das Bauvorhaben als Gesamtvorhaben zu betrachten und in einem Verfahren zu behandeln. Den Klägern dürfe nicht zum Nachteil gereichen, dass die Beklagte das Vorhaben in drei einzelne Verfahren und drei Bescheide aufgespalten habe. Den Klägern sei es stets um das Gesamtvorhaben gegangen.
		 
		
			12
			Die Kläger beantragen zuletzt,
		 
		
			
			1. a) den Ablehnungsbescheid vom 01.03.18, Az. 63.1/03438-3441/2016-02 
		 
		
			
			b) den Ablehnungsbescheid vom 01.03.18, Az: 63.1/03446/2016-02 
		 
		
			
			c) den Ablehnungsbescheid vom 01.03.18, Az. 63.1/03442-3445/2016-02 
		 
		
		
			
			2. die Beklagte zu verpflichten, den Klägern gemäß ihrem Bauantrag vom 19.12.2016 die Baugenehmigung für die Errichtung von zwei Reihenhauszeilen mit jeweils 4 Reihenhäusern (Reihenhäuser 1 bis 4 und Reihenhäuser 5 bis 8) sowie einer Tiefgarage auf den Flurstücken 59/2 und 59/3 der Gemarkung D ..., F ...straße 19/20, zu erteilen,
		 
		
			
			hilfsweise (für den Fall fehlender Spruchreife):
		 
		
			
			Die Beklagte zu verpflichten, über den Bauantrag der Kläger vom 19.12.2016 gemäß der Rechtsauffassung des Gerichts neu zu entscheiden.
		 
		
			13
			Die Beklagte beantragt,
		 
		
		
			14
			Die Klage sei bereits unzulässig. Antragsstellende Bauherrin im Baugenehmigungsverfahren sei die Bauherrengemeinschaft. Diese sei auch beteiligungsfähig. Der Kläger zu 1) begehre jedoch die Erteilung einer Baugenehmigung für die Errichtung von vier Reihenhäusern und einer Tiefgarage auf dem Grundstück FlNr. 59/3 im eigenen Namen. Auch die anwaltliche Vertretungsvollmacht laute ausschließlich auf seinen Namen. Es sei nicht erkennbar, dass der Kläger im Namen der Bauherrengemeinschaft handle. Als Kläger werde ausdrücklich er genannt. Im Übrigen zeige ein Blick auf die Planunterlagen der Bauherrengemeinschaft, dass beide Reihenhauszeilen sich über die Grundstücke FlNr. 59/2 und 59/3 erstreckten. Der Antrag des Klägers zu 1) sei daher schon unschlüssig, da nicht eingegrenzt werden könne, für welches Bauvorhaben eine Genehmigung begehrt werde. Das Vorhaben könne nicht unnatürlich in mehrere Einzelprojekte aufgespalten werden, da die Reihenhauszeilen je einen untrennbaren Baukörper bildeten. Da der Kläger im eigenen Namen bereits keine Baugenehmigung für das streitgegenständliche Vorhaben beantragt habe, sei seine Klage unzulässig. Auch bei Erweiterung der Klage auf den Ablehnungsbescheid mit Schriftsatz vom 04.04.2018 trete der Kläger im eigenen Namen auf und beziehe sich ausschließlich auf sein Grundstück. Mit Schriftsatz vom 27.04.2018 - mit Wiedereinsetzungsantrag - habe der Kläger zu 1) erstmals die Erteilung einer Baugenehmigung für das Gesamtvorhaben beantragt. Auf Seite 5 des Schriftsatzes begehre er jedoch entgegen seines Klageantrags weiterhin die Erteilung einer Baugenehmigung für vier Reihenhäuser auf seinem Grundstück. Ein Handeln für die Bauherrengemeinschaft sei auch hier nicht erkennbar. Die Klage sei daher mangels Klagebefugnis als unzulässig abzuweisen. Der Antrag auf Wiedereinsetzung in die versäumte Klagefrist begegne Bedenken. Den Parteibeitritt der Klägerin zu 2) hält die Beklagte nicht für sachdienlich. Ein Bauantrag des Klägers zu 1) liege der Beklagten nicht vor. Ein Bauantrag der Klägerin zu 2) sei der Beklagten ebenfalls nicht bekannt. Den Ablehnungsbescheiden sei eindeutig zu entnehmen, dass sie sich an die Bauherrengemeinschaft richteten. Im Übrigen hält die Beklagte die Klage für unbegründet, weil das streitgegenständliche Bauvorhaben gegen die Festsetzungen des Bebauungsplans verstoße und Befreiungen hierfür nicht erteilt werden könnten.
		 
		
			15
			Die Verfahren RO 2 K 17. 1866 und RO 2 K 17.1883 wurden gemeinsam mündlich verhandelt. In der mündlichen Verhandlung vom 16.01.2020 wurde der Beklagten Schriftsatzfrist bis 07.02.2020 eingeräumt. Die Beteiligten verzichteten auf weitere mündliche Verhandlung.
		 
		
			16
			Wegen der weiteren Einzelheiten wird auf den Inhalt der Behörden- und Gerichtsakten einschließlich der beigezogenen Akten sowie das Protokoll über die mündliche Verhandlung Bezug genommen.
		 
		Entscheidungsgründe
		
			17
			Das Gericht konnte ohne (weitere) mündliche Verhandlung entscheiden, da die Beteiligten in der mündlichen Verhandlung vom 16.01.2020 auf weitere mündliche Verhandlung verzichteten (§ 101 Abs. 2 Verwaltungsgerichtsordnung - VwGO).
		 
		
			18
			Die Klage ist unzulässig.
		 
		
			19
			Für die Entscheidung kann offenbleiben, ob die im Laufe des Verfahrens vorgenommenen Klageänderungen und -erweiterungen zulässig sind. Die Klage, die zunächst nur für den Kläger zu 1) erhoben wurde, war lediglich darauf gerichtet, dem Kläger eine Baugenehmigung für vier Reihenhäuser sowie einen Anteil an einer Tiefgarage auf seinem Grundstück FlNr. 59/3 zu erteilen. Dies wurde auch mit Schriftsatz der Klägerbevollmächtigten vom 27.04.2018 erklärt. Es kann dahingestellt bleiben, ob die Einbeziehung der Klägerin zu 2) im Wege des Parteibeitritts mit Schriftsatz vom 15.05.2019 eine sachdienliche Klageänderung im Sinne des § 91 Abs. 1 VwGO ist. Auch kommt es nicht darauf an, ob die Erweiterung des Antrags auf die Reihenhäuser und den Teil der Tiefgarage, die auf dem Grundstück FlNr. 59/2 liegen sollen, die Voraussetzungen für eine zulässige Klageänderung im Sinne des § 91 Abs. 1 VwGO erfüllen muss und erfüllt. Schließlich muss nicht entschieden werden, ob der Klägerseite für die (verspätete) Einbeziehung weiterer Ablehnungsbescheide Wiedereinsetzung in den vorigen Stand zu gewähren ist (wofür nach Lage der Dinge viel spricht). Letztendlich kommt es auf diese Fragen nicht an, weil die Zulässigkeit der Klage jedenfalls daran scheitert, dass den Klägern die erforderliche Klagebefugnis nach § 42 Abs. 2 VwGO sowie das Rechtsschutzbedürfnis fehlt.
		 
		
			20
			Eine Verpflichtungsklage i.S.d. § 42 Abs. 1 2. Alt. VwGO ist nur zulässig, wenn der Kläger geltend machen kann, durch die Ablehnung oder Unterlassung des Verwaltungsakts in seinen Rechten verletzt zu sein (§ 42 Abs. 2 VwGO). Insoweit machen die Kläger vorliegend geltend, sie hätten einen Anspruch auf Erteilung der begehrten Baugenehmigung. Ein solcher Anspruch steht ihnen jedoch unter keinem rechtlichen Gesichtspunkt zu. Eine Baugenehmigung ist nach Art. 68 Abs. 1 Satz 1 Bayerische Bauordnung (BayBO) zu erteilen, wenn dem Vorhaben keine öffentlich-rechtlichen Vorschriften entgegenstehen, die im bauaufsichtlichen Genehmigungsverfahren zu prüfen sind. Ist - wie hier - für die Errichtung eines Vorhabens eine Baugenehmigung nach Art. 55 Abs. 1 BayBO erforderlich, setzt ihre Erteilung einen schriftlichen Bauantrag voraus (Art. 64 Abs. 1 Satz 1 BayBO). Erst der Bauantrag leitet das Baugenehmigungsverfahren als mitwirkungsbedürftiges Verwaltungsverfahren i.S.d. Art. 9, 22 Bayerisches Verwaltungsverfahrensgesetz (BayVwVfG) ein. Das Baugenehmigungsverfahren ist nur auf Antrag und nicht von Amts wegen einzuleiten (vgl. Art. 22 Satz 2 Nr. 2 BayVwVfG). Dass die Erteilung einer Baugenehmigung stets die Stellung eines Bauantrags voraussetzt, lässt sich auch aus Art. 76 Satz 3 BayBO schließen.
		 
		
			21
			Da ein Bauantrag unabdingbare verfahrensrechtliche Voraussetzung für die Erteilung einer Baugenehmigung ist, kann einem Kläger schon deshalb unter keinem Gesichtspunkt ein Anspruch auf Erteilung einer Baugenehmigung zustehen, wenn er keinen entsprechenden Antrag bei der Bauaufsichtsbehörde gestellt hat. So liegt es hier. Zwar beziehen sich die Kläger mit ihrer Klage erkennbar auf die am 19.12.2016 bei der Beklagten eingegangenen Bauanträge für zwei Reihenhauszeilen und eine Tiefgarage, die sich jeweils auf die Grundstücke FlNrn. 59/2 und 59/3 erstrecken. Soweit mit dem Klageschriftsatz vom 23.10.2017 zunächst beantragt wurde, die Beklagte zu verpflichten, „dem Kläger gemäß seinem Bauantrag vom 19.12.16 die Baugenehmigung für die Errichtung einer Reihenhauszeile mit vier Reihenhäusern sowie eine Tiefgarage auf dem Flurstück 59/3 der Gemarkung D ...“ zu erteilen, geht dies von vorneherein fehl, weil es einen Bauantrag mit einer Reihenhauszeile auf dem Grundstück des Klägers, die vier Reihenhäuser umfasst, nicht gibt. Vielmehr bezogen sich die beiden Bauanträge auf zwei getrennt zu errichtende Reihenhauszeilen, von denen jeweils nur zwei Reihenhäuser auf dem Grundstück der Kläger liegen sollen. Auch wurde mit dem dritten Bauantrag keine Tiefgarage beantragt, die nur auf dem Grundstück Flurnummer 59/3 errichtet werden soll. Vielmehr erstreckt sich die beantragte Tiefgarage auch auf das Nachbargrundstück und eine Aufspaltung des einheitlichen Vorhabens ist nicht möglich, zumal die (einzige) geplante Zufahrt zur Tiefgarage ausschließlich auf dem Grundstück Flurnummer 59/3 liegen soll. Dies gilt auch für die in den Bauanträgen dargestellten zwei Reihenhauszeilen, worauf die Beklagte zu Recht hinweist. Insoweit geht auch der Hinweis der Klägerseite fehl, die Antragstellung folge lediglich dem Vorgehen der Bauaufsichtsbehörde. Die Bauaufsichtsbehörde hat die jeweiligen Vorhaben - so wie in den Bauanträgen vorgesehen - grundstücksgrenzenübergreifend als Vorhaben der Bauherrengemeinschaft behandelt, während die Kläger die Vorhaben auf die verschiedenen Gesellschafter und deren Grundstücke aufspalten wollen. Unabhängig davon, dass dies jedenfalls hinsichtlich der geplanten Tiefgarage nicht möglich ist, wurden entsprechende Bauanträge nicht eingereicht. Auch wenn man die Erweiterung der Klage auf die restlichen Bestandteile der beantragten Vorhaben, wie sie zuletzt vorgenommen wurde, für zulässig erachten kann, liegt kein entsprechender Bauantrag der Kläger vor. Unabhängig davon, dass nunmehr im vorliegenden Verfahren sowie im Parallelverfahren RO 2 K 17.1883 die Erteilung von Baugenehmigungen für ein und dieselben Vorhaben an unterschiedliche Parteien gefordert werden, hat keine der an diesen Verfahren beteiligten Parteien einen entsprechenden Bauantrag gestellt. Die streitgegenständlichen Bauanträge wurden jeweils ausdrücklich von der „Bauherrengemeinschaft M ... A ..., N ... A ..., C ... C ..., D ... D ...“ eingereicht. Es handelt sich dabei nicht um Bauanträge von vier Einzelpersonen, sondern um den Antrag einer Gesellschaft des bürgerlichen Rechts (vgl. § 705 Bürgerliches Gesetzbuch - BGB). Diese kann als Gesamthandsgemeinschaft ihrer Gesellschafter im Rechtsverkehr grundsätzlich, das heißt soweit nicht spezielle Gesichtspunkte entgegenstehen, jede Rechtsposition einnehmen. Soweit sie in diesem Rahmen eigene Rechte und Pflichten begründet, ist sie - ohne juristische Person zu sein - rechtsfähig (vgl. BGH, U.v. 29.01.2001 - II ZR 331/00 -, juris). Die Gesellschaft ist als solche sowohl beteiligungsfähig im baurechtlichen Verwaltungsverfahren gemäß Art. 11 Nr. 2 BayVwVfG als auch im verwaltungsgerichtlichen Verfahren nach § 61 Nr. 2 VwGO. Eine Gesellschaft des bürgerlichen Rechts in Form der Bauherrengemeinschaft kann daher als Trägerin des Rechts, ein Grundstück zu bebauen, Antragstellerin im Baugenehmigungsverfahren und Adressatin einer Baugenehmigung oder auch eines Ablehnungsbescheids sein (vgl. zum Ganzen HessVGH, B.v. 23.01.1997 - 4 TG 4829/96 -, juris m.w.N.). Die „Bauherrengemeinschaft M ... A ..., N ... A ..., C ... C ..., D ... D ...“ ist auch nach außen gegenüber der Baugenehmigungsbehörde aufgetreten, indem sie Bauanträge stellte, die jeweils von sämtlichen Gesellschaftern unterschrieben wurden. Auch ist die Klägerin zu 2) des Parallelverfahrens RO 2 K 17.1883 als Gesellschafterin gegenüber der Baugenehmigungsbehörde „stellvertretend für die Bauherrengemeinschaft C ... und A ...“ aufgetreten (vgl. E-Mail v. 27.03.2017). Die Gesellschaft - und nicht der Kläger zu 1) oder die Klägerin zu 2) - ist daher vorliegend die Bauherrin i.S.d. Art. 50 BayBO und verantwortliche sowie berechtigte Antragstellerin für die begehrten Baugenehmigungen (Art. 50 Abs. 1 Satz 2, 61 Abs. 1 Satz 1 BayBO).
		 
		
			22
			Die streitgegenständliche Klage wurde jedoch nicht für die Gesellschaft (Bauherrengemeinschaft) erhoben, sondern ausdrücklich im eigenen Namen der Kläger. Der Kläger zu 1), der zunächst alleine Klage erheben ließ, ist in der Klageschrift vom 23.10.2017 namentlich als alleiniger Kläger bezeichnet. Auch lautete der damalige Antrag dahingehend, dem Kläger eine Baugenehmigung zu erteilen und er umfasste nicht die von der Bauherrengemeinschaft zur Genehmigung gestellten Vorhaben, sondern nur diejenigen Teile hiervon, die auf dem klägerischen Grundstück liegen. Des Weiteren bezieht sich die Klagebegründung nur auf den Kläger selbst und sein Grundstück mit der (unzutreffenden) Behauptung, er habe einen entsprechenden Bauantrag gestellt. Es gibt keinerlei Hinweise darauf, dass der Kläger nicht in eigenem Namen, sondern als Vertreter der Bauherrengemeinschaft und für diese Klage erhoben hätte. Hiergegen spricht auch, dass die Klägerbevollmächtigten bereits im Verwaltungsverfahren nur für den Kläger zu 1) persönlich auftraten und dort mit Schreiben vom 09.08.2017 sogar monierten, dass unter dem von der Beklagten verwendeten Geschäftszeichen der Klägerbevollmächtigten nur die Angelegenheit des Klägers zu 1) geführt werde, nicht aber diejenige des Mandanten C ...; es werde um eindeutige Adressierung gebeten. Auch hieraus ergibt sich, dass sich der Kläger zu 1) von vorneherein von den Klägerbevollmächtigten persönlich vertreten ließ und nicht die Bauherrengemeinschaft als solche vertreten wurde. Dies bestätigt auch die im gerichtlichen Verfahren vorgelegte Vollmacht sowie der Umstand, dass die Klägerbevollmächtigten zeitnah auch für den Gesellschafter C ... in dessen eigenem Namen Klage zum Verwaltungsgericht Regensburg für die Bestandteile der Bauvorhaben auf dem Grundstück FlNr. 59/2 erhoben. Unerheblich ist für die Frage der Zulässigkeit der Klage, dass die Beklagte im Baugenehmigungsverfahren und zunächst auch im gerichtlichen Verfahren nicht darauf hingewiesen hat, dass nicht der Kläger zu 1), sondern eine Bauherrengemeinschaft Bauherrin ist. Auch wenn hierzu durchaus Veranlassung bestanden hätte, ändert dieses Versäumnis nichts an der fehlenden Bauherreneigenschaft des Klägers zu 1).
		 
		
			23
			Auch der Parteibeitritt der Klägerin zu 2) im Laufe des gerichtlichen Verfahrens ändert unabhängig von der Frage der Zulässigkeit der darin liegenden Klageänderung nichts daran, dass die Klagebefugnis fehlt. Die Klägerin zu 2) klagt ebenfalls im eigenen Namen und nicht namens und im Auftrag der Bauherrengemeinschaft. Selbst wenn man den Parteibeitritt für zulässig erachten wollte, entsteht hierdurch lediglich eine subjektive Streitgenossenschaft gemäß § 64 VwGO i.V.m. § 59 Zivilprozessordnung (ZPO) zwischen dem Kläger zu 1) und der Klägerin zu 2), nicht aber eine Änderung der Klägerseite dergestalt, dass nunmehr eine beteiligungsfähige Vereinigung, nämlich die Bauherrengemeinschaft, den Rechtsstreit führen würde. So lautet auch die vorgelegte Prozessvollmacht „In Sachen A ... N ...Stadt Regensburg“. Ein Bauantrag, den der Kläger zu 1) und die Klägerin zu 2) im eigenen Namen (jeweils einzeln oder gemeinsam) gestellt hätten und der eine Klagebefugnis begründen könnte, liegt jedoch nicht vor.
		 
		
			24
			Entsprechendes gilt für die beantragte Verbindung des vorliegenden Verfahrens mit dem Verfahren der weiteren Gesellschafter der Bauherrengemeinschaft (RO 2 K 17.1883). Werden Verfahren nach § 93 Satz 1 VwGO zur gemeinsamen Verhandlung und Entscheidung verbunden, so bilden diese nach der Verbindung ein einziges Verfahren, das jedoch mehrere Klagegegenstände enthalten kann. Vorliegend bestand schon keine Veranlassung, die Verfahren RO 2 K 17. 1866 und RO 2 K 17. 1883 förmlich zur gemeinsamen Entscheidung zu verbinden. Die jeweiligen Klageparteien haben von vorneherein in getrennten Klageverfahren die Erteilung von Baugenehmigungen zu ihren Gunsten im eigenen Namen gefordert. Es sind auch nicht etwa alle weiteren Gesellschafter der Bauherrengemeinschaft einer der erhobenen Klagen unter gleichzeitiger Änderung der Identität der Klagepartei beigetreten. So verbleibt es dabei, dass die allein aus den gestellten Bauanträgen möglicherweise berechtigte Bauherrengemeinschaft auch durch Verbindung der Verfahren nicht Klagepartei würde und den Klägern für ihre Klage im eigenen Namen hingegen die Klagebefugnis nach wie vor fehlte.
		 
		
			25
			Hieran ändert schließlich auch nichts der Umstand, dass zuletzt für die verschiedenen Klageparteien der beiden Parallelverfahren jeweils vollumfänglich die Erteilung der drei von der Bauherrengemeinschaft beantragten Baugenehmigungen gefordert wurde (2 Reihenhauszeilen mit je 4 Reihenhäusern und Tiefgarage). Zwar handelt es sich bei der Erweiterung des Klagebegehrens in der Hauptsache nicht um eine Klageänderung, die nur unter den Voraussetzungen des § 91 Abs. 1 VwGO zulässig wäre, denn nach § 173 Satz 1 VwGO i.V.m. § 264 Nr. 2 ZPO ist es nicht als eine Änderung der Klage anzusehen, wenn ohne Änderung des Klagegrundes der Klageantrag in der Hauptsache oder in Bezug auf Nebenforderungen erweitert oder beschränkt wird. Dies führt jedoch nur zur Erweiterung des Klagegegenstands, nicht aber zu einer Änderung der Identität der Klagepartei. Der Kläger zu 1) und die Klägerin zu 2) haben weder einen Bauantrag für die anfänglich geforderten Baugenehmigungen für die auf ihrem Grundstück liegenden Bestandteile des Vorhabens der Bauherrengemeinschaft gestellt, noch einen Bauantrag für das gesamte Vorhaben einschließlich der Bestandteile auf dem Nachbargrundstück.
		 
		
			26
			Zuletzt ist ergänzend festzuhalten, dass gegenüber den Klägern auch kein Ablehnungsbescheid ergangen ist, aus dem sie eine Klagebefugnis herleiten könnten. An die Klägerin zu 2) wurde ohnehin kein Ablehnungsbescheid gerichtet. Soweit in den ergangenen Ablehnungsbescheiden der Kläger zu 1) angesprochen wurde, erfolgte dies offenkundig in seiner Eigenschaft als einer der Gesellschafter der Bauherrengemeinschaft. Abgelehnt wurden in den Bescheiden eindeutig die Bauanträge der Bauherrengemeinschaft, auch wenn sich dies in den Bescheiden weder aus dem Betreff noch aus Ziffer 1 des Tenors ausdrücklich ergibt. Verwendet wurden jedoch die Aktenzeichen, unter denen die Bauanträge der Bauherrengemeinschaft bearbeitet wurden, die Bauherrengemeinschaft wurde zur Kostentragung verpflichtet und in den Gründen der Bescheide ist ausdrücklich auf die Bauanträge der Bauherrengemeinschaft Bezug genommen. Hinzuweisen ist allerdings darauf, dass die Bescheide den Prozessbevollmächtigten der Kläger zugestellt wurden, die nach Aktenlage keine Vertretung der Gesellschaft angezeigt haben.
		 
		
			27
			Den Klägern fehlt somit die Klagebefugnis i.S.d. § 42 Abs. 2 VwGO. Zudem fehlt für ihre Verpflichtungsklage jedenfalls das allgemeine Rechtsschutzbedürfnis, weil ein notwendiger vorheriger Antrag der Kläger an die Beklagte nicht vorliegt und sich diese auch hierauf beruft.
		 
		
			28
			Die Klage war daher mit der Kostenfolge des § 154 Abs. 1 VwGO, § 159 VwGO abzuweisen.
		 
		
			29
			Die Entscheidung über die vorläufige Vollstreckbarkeit beruht auf § 167 VwGO i.V.m. §§ 708 ff. Zivilprozessordnung (ZPO).