Inhalt

VG München, Urteil v. 31.03.2025 – M 8 K 22.5566
Titel:

Beeinträchtigung eines Denkmals durch Neubau eines Mehrfamilienhauses mit Tiefgarage

Normenketten:
BauGB § 31 Abs. 2, § 34 Abs. 1
BayBO Art. 71
BayDSchG Art. 6 Abs. 1 S. 2
Leitsätze:
1. Vorhaben, welche die Denkmalwürdigkeit erheblich beeinträchtigen, dürfen nur zugelassen werden, wenn das Vorhaben durch überwiegende Gründe des Gemeinwohls oder durch überwiegende private Interessen gerechtfertigt ist. (Rn. 35) (redaktioneller Leitsatz)
2. Als (erhebliche) Beeinträchtigung eines Denkmals ist nicht nur eine Situation anzusehen, in der ein hässlicher, das ästhetische Empfinden des Betrachters verletzender Zustand, also ein Unlust erregender Kontrast zwischen der benachbarten Anlage und dem Baudenkmal hervorgerufen wird, sondern auch die Tatsache, dass die Wirkung des Denkmals als Kunstwerk, als Zeuge der Geschichte oder als bestimmendes städtebauliches Element geschmälert wird. (Rn. 36) (redaktioneller Leitsatz)
Schlagworte:
Nachbarklage, Vorbescheid, Nähe Einzelbaudenkmal, Maß der baulichen Nutzung, Befreiung, Sachbescheidungsinteresse, Unzulässige Vorbescheidsfrage, Bauvorbescheid, Mehrfamilienhaus, Denkmal, erhebliche Beeinträchtigung

Tenor

I. Der Vorbescheid vom 6.10.2022 wird hinsichtlich der Antwort zu Frage 5.1 aufgehoben.
Die Beklagte wird verpflichtet die im Vorbescheidsantrag vom 29.4.2022 gestellte Frage 5.1 positiv zu beantworten.
Im Übrigen wird die Klage abgewiesen.
II. Die Klägerin hat 5/6, die Beklagte 1/6 der Kosten des Verfahrens zu tragen.
III. Die Kostenentscheidung ist vorläufig vollstreckbar. Der jeweilige Kostenschuldner darf die Vollstreckung durch Sicherheitsleistung oder Hinterlegung in Höhe des vollstreckbaren Betrags abwenden, wenn nicht der jeweilige Kostengläubiger vorher Sicherheit in gleicher Höhe leistet.

Tatbestand

1
Die Klägerin begehrt die Verpflichtung der Beklagten zur positiven Beantwortung von Vorbescheidsfragen für die Neubebauung der Grundstücke FlNr. … und … jeweils Gemarkung …, D …str. 31 („Baugrundstück“).
2
Das Baugrundstück liegt im Geviert D …straße, N … Straße, E … Straße und W …straße. Im Geviert sind Bauräume sowohl durch vordere Baulinien als auch durch seitliche bzw. rückwärtige Baugrenzen festgesetzt. Derzeit befindet sich auf dem Baugrundstück auf der FlNr. … ein zweigeschossiges Einfamilienhaus mit nachträglich ausgebautem Dachgeschoss. Die FlNr. … ist derzeit unbebaut.
3
Schräg gegenüber im Geviert N … Straße, O …straße, T … Straße, D …straße befindet sich die in die Denkmalliste unter Nr. … als Einzelbaudenkmal eingetragene sogenannte „A …siedlung“, die die gesamte Bebauung in diesem Geviert umfasst.
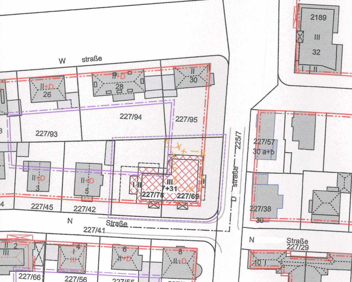
4
Vergleiche zur baulichen Situation folgenden – aufgrund Einscannens möglicherweise nicht mehr maßstabsgetreuen – Lageplan im Maßstab 1:1000, der eine Darstellung des Vorhabens enthält:
5
Mit dem bei der Beklagten am 29. April 2022 eingegangenen Antrag nach Plannummer … beantragte die Klägerin die Erteilung eines Vorbescheids für den Neubau eines sich über beide Flurnummern des Baugrundstücks erstreckenden Mehrfamilienhauses mit Tiefgarage. Der geplante Baukörper soll oberirdisch über drei Geschosse verfügen, wobei das zweite Obergeschoss als Terrassengeschoss ausgebildet werden soll. Die Oberkante der Attika des Flachdachs über dem Terrassengeschoss soll auf einer Höhe von 10,27 m liegen. Die Grundfläche soll 447,38 m² betragen.
6
In dem Vorbescheidsantrag stellte die Klägerin verschiedene Fragen, darunter die Frage, ob das Vorhaben nach dem Maß der baulichen Nutzung planungsrechtlich zulässig sei (Frage 2.1). In den Fragen 3.1, 4.1, 4.2, 4.3, 4.4, 4.5 und 4.6 stellte die Klägerin mehrere Fragen zu unterschiedlichen Befreiungen vom Bauliniengefüge, unter anderem (folgende Aufzählung ist nicht abschließend) Befreiungen für das zurückspringende Terrassengeschoss sowie für Balkone und Lichtschächte. Ferner wurde folgende Frage 5.1 gestellt:
7
„Wird die im Rahmen der Baugenehmigung zu erteilende denkmalrechtliche Erlaubnis nach Art. 6 Abs. 1 S. 2 BayDSchG in Aussicht gestellt?“
8
Zudem stellte die Klägerin noch Fragen zu Baumfällungen (Frage 6.1), zur Vereinbarkeit der Tiefgarage mit der Verordnung über besondere Siedlungsgebiete („GVO“) (Frage 7.1) sowie zur Zulässigkeit der Lage der Zufahrt zur Tiefgarage an der D …straße (Frage 7.2). Darüber hinaus wurden noch weitere Fragen gestellt, von deren Wiedergabe jedoch abgesehen wird.
9
Mit Bescheid vom 6. Oktober 2022 verbeschied die Beklagte den Vorbescheidsantrag. Frage 2.1 beantwortete die Beklagte negativ und begründete dies damit, dass das Vorhaben sich nach dem Maß der baulichen Nutzung nicht in die nähere Umgebung einfüge, da kein entsprechender Bezugsfall existiere, der hinsichtlich aller Maßkriterien mit dem Vorhaben vergleichbar sei. Die von der Klägerin angeführten Gebäude könnten als Bezugsfälle nicht greifen. Insbesondere das Gebäude D …str. 32 sei nicht tauglich, da die D …straße sich in dem Bereich verbreitere und daher eine trennende Wirkung entfalte. Die Fragen 3.1, 4.1, 4.2, 4.3, 4.4, 4.5 und 4.6 wurden mit der Begründung negativ beantwortet, dass Frage 2.1 bereits negativ beantwortet und eine unabhängige Beantwortung der Fragen nicht möglich sei. Zu Frage 5.1 antwortete die Beklagte, dass eine Beantwortung nicht möglich sei, da die notwendigen Angaben und Unterlagen zur Fassadengestaltung fehlten. Die Frage 6.1 beantwortete die Beklagte überwiegend positiv. Lediglich hinsichtlich Baum Nr. 4 lehnte die Beklagte die Inaussichtstellung einer Fällungsgenehmigung mit der Begründung ab, dass eine abschließende Beurteilung nur mit detaillierten Angaben zur Situierung und Anzahl der Stellplätze und sonstigen Nutzungen des Untergeschosses getroffen werden könne und gegebenenfalls eine Umplanung erforderlich sei. Frage 7.1 wurde nicht beantwortet. Die zur Beantwortung notwendigen Angaben würden fehlen. Zu Frage 7.2 antwortete die Beklagte, dass die Frage bereits unzulässig sei, da es sich nicht um eine Einzelfrage, sondern um eine Allgemein- bzw. Sammelfrage handle.
10
Mit Schriftsatz vom 9. November 2022, eingegangen bei Gericht am selben Tag, ließ die Klägerin durch ihre Bevollmächtigten Klage erheben.
11
Die Klägerin beantragt im zuletzt:
12
Unter Aufhebung der negativen bzw. inhaltlich nicht bearbeiteten Antworten auf die Fragen des Vorbescheids vom 06.10.2022, Az. …, wird die Beklagte verpflichtet, auch die in
- Ziff. 2.1,
- Ziff. 3.1,
13
- Ziff. 4.1, 4.2, 4.3, 4.4, 4.5, 4.6,
- Ziff. 5.1;
14
- Ziff. 6.1 soweit darin die Fällung des Baumes Nr. 4 nicht in Aussicht gestellt wird,
15
- Ziff. 7.1, 7.2
16
enthaltenen Fragen des Antrags auf Vorbescheid vom 29.04.2022 zum Neubau eines Wohngebäudes mit Tiefgarage uneingeschränkt positiv zu beantworten.
17
Hilfsweise:
18
Unter Aufhebung der negativen bzw. inhaltlich nicht bearbeiteten Antworten auf die Fragen des Vorbescheids vom 06.10.2022, Az. 6024-1.7-2022-8037-31, wird die Beklagte verpflichtet, über den Antrag auf Vorbescheid vom 29.04.2022 zum Neubau eines Wohngebäudes mit Tiefgarage hinsichtlich der Fragen
- 2.1,
- 3.1,
19
- 4.1, 4.2, 4.3, 4.4, 4.5, 4.6,
20
- 5.1, 6.1 soweit darin die Fällung von Baum Nr. 4 nicht in Aussicht gestellt wird,
- 7.1, 7.2
21
unter Berücksichtigung der Rechtsauffassung des Gerichts erneut zu entscheiden.
22
Das Vorhaben füge sich nach dem Maß der baulichen Nutzung in die nähere Umgebung ein. Es existierten zwei Bezugsfälle, nämlich das Gebäude N … Str. 2 und das Gebäude D …str. 32. Es sei auch die Bebauung auf der gegenüberliegenden Straßenseite in die nähere Umgebung einzubeziehen. Weder die N … Str. noch die D …str. habe eine trennende Wirkung. Insbesondere das Gebäude D …str. 32 sei hinsichtlich Geschossigkeit, Höhe und Grundfläche mit dem Vorhaben vergleichbar. Auch die beantragten Befreiungen vom Bauliniengefüge seien zu erteilen. Die Tatbestandsvoraussetzungen seien gegeben und das Ermessen sei auf Null reduziert. Es seien vergleichbare Überschreitungen der rückwärtigen Baugrenze vorhanden. Die Vorgartenzone bleibe erhalten. Die Befreiungen von den vorderen Baulinien hätten nur untergeordneten Charakter. Auch nachbarliche Belange würden nicht berührt. Ebenso sei die denkmalrechtliche Erlaubnis nach zu erteilen. Eine Beeinträchtigung nahegelegener Denkmäler sei nicht gegeben. Im Übrigen habe die Beklagte weitere Unterlagen anfordern müssen, wenn sie davon ausgegangen sei, dass die vorgelegten Unterlagen nicht ausreichten. Auch die Fällung von Baum Nr. 4 sei in Aussicht zu stellen. Das Vorhaben könne ohne die Fällung nicht durchgeführt werden. Die Tiefgarage sei mit der GVO (Besondere Siedlungsgebieteverordnung) vereinbar. Auch hinsichtlich der Lage der Zufahrt bestehe ein Anspruch auf positive Beantwortung, da keine öffentlich-rechtlichen Vorschriften entgegenstünden.
23
Die Beklagte beantragt
24
Klageabweisung.
25
Das Vorhaben füge sich nach dem Maß der baulichen Nutzung nicht in die nähere Umgebung ein, da es in der maßgeblichen Umgebung kein Vorbild für eine Bebauung dieses Umfangs gebe. Weder das Gebäude D …str. 32 noch das Gebäude N … Str. 2 seien noch Teil der maßgeblichen näheren Umgebung und daher als Bezugsfälle nicht geeignet. Die denkmalrechtliche Erlaubnis könne nicht in Aussicht gestellt werden. Die vorgelegten Unterlagen seien zur Bewertung der denkmalrechtlichen Situation nicht ausreichend. Eine Pflicht zur Nachforderung weiterer Unterlagen habe nicht bestanden. Es liege in der Sphäre der Klägerin als Antragstellerin im Rahmen ihres Vorbescheidsantrags hinreichend konkrete Fragestellungen zu formulieren und alle zur Prüfung erforderlichen Unterlagen einzureichen. Auch den Baumfällungen könne nicht zugestimmt werden. Im Übrigen würden die im Vorbescheid dargelegten Gründe für die Ablehnung gelten.
26
Neben der hier zu entscheidenden Klage erhob die Klägerin zwei Klagen auf Feststellung des Nichtbestehens der Denkmaleigenschaft des Gebäudes D …str. 31. Die gegen den Freistaat Bayern gerichtete Feststellungklage wurde bei dem erkennenden Gericht unter dem Aktenzeichen M 8 K 24.2510 geführt und inzwischen durch Beschluss vom 31. März 2025 infolge Klagerücknahme eingestellt. Die gegen die Landeshauptstadt M. gerichtete Feststellungsklage wird bei dem erkennenden Gericht unter dem Aktenzeichen M 8 K 24.3325 geführt. Über diese Klage wurde mit Urteil vom 31. März 2025 parallel zu dem hiesigen Verfahren entschieden. Auf die den Parteien bekannten Gründe dieses Urteils wird Bezug genommen.
27
Das Gericht hat am 31. März 2025 Beweis erhoben durch Augenschein. Auf das Protokoll hierzu und zur mündlichen Verhandlung wird verwiesen. Hinsichtlich der weiteren Einzelheiten des Sachverhalts sowie des schriftsätzlichen Vorbringens der Beteiligten wird auf die Gerichtsakten und die vorgelegten Behördenakten in diesem Verfahren sowie in den Verfahren M 8 K 24.2510 und M 8 K 24.3325 Bezug genommen.

Entscheidungsgründe

28
Die zulässige Klage hat nur im tenorierten Umfang Erfolg, im Übrigen ist sie unbegründet. Die Klägerin hat einen Anspruch auf positive Beantwortung der Frage 5.1 aus dem Vorbescheidsantrag vom 29. April 2022 (§ 113 Abs. 5 Satz 1 VwGO). Sie hat bezüglich der Fragen 2.1, 3.1, 4.1 bis 4.6, 6.1, 7.1 und 7.2 weder einen Anspruch auf positive Beantwortung der Vorbescheidsfragen (§ 113 Abs. 5 Satz 1 VwGO) noch auf eine erneute Verbescheidung durch die Beklagte (§ 113 Abs. 5 Satz 2 VwGO).
29
Der Bauherr kann schon vor Einreichung des Bauantrags zu einzelnen Fragen des Bauvorhabens einen Vorbescheid beantragen (Art. 71 Satz 1 BayBO). Gemäß Art. 71 Satz 4 i.V.m. Art. 68 Abs. 1 Satz 1 Halbs. 1 BayBO ist ein positiver Vorbescheid zu erteilen, wenn dem Bauvorhaben, soweit seine Zulässigkeit abgefragt wurde, keine öffentlich-rechtlichen Vorschriften entgegenstehen, die im bauaufsichtlichen Genehmigungsverfahren zu prüfen sind. Insoweit stellt der Vorbescheid als feststellender Verwaltungsakt die Vereinbarkeit des Vorhabens mit öffentlichen-rechtlichen Vorschriften, die Gegenstand der Vorbescheidsfragen sind, fest und entfaltet während seiner Geltungsdauer (vgl. Art. 71 Satz 2, 3 BayBO) Bindungswirkung für nachfolgende Baugenehmigungsverfahren.
30
1. Die Klägerin hat Anspruch auf positive Beantwortung der Frage 5.1 aus dem Vorbescheidsantrag vom 29. April 2022, da sie einen Anspruch auf Inaussichtstellung der denkmalrechtlichen Erlaubnis nach Art. 6 Abs. 1 Satz 2 BayDSchG hat.
31
1.1 Die Frage 5.1 bezieht sich ausweislich des eindeutigen Wortlauts ausschließlich auf eine denkmalrechtliche Erlaubnis nach Art. 6 Abs. 1 Satz 2 BayDSchG, also auf eine Erlaubnis wegen der Nähe zu Einzelbaudenkmälern.
32
1.2 Der Klägerin fehlt auch nicht das Sachbescheidungsinteresse für die Beantwortung der Frage 5.1, da das Gesamtvorhaben aufgrund der Denkmaleigenschaft des Bestandsgebäudes nicht verwirklichbar wäre. Nach der Überzeugung des Gerichts – entgegen der Auffassung der Beklagten – handelt es sich bei dem auf dem Baugrundstück im Bestand vorhandenen Gebäude D …str. 31 nicht um ein Einzelbaudenkmal im Sinne von Art. 1 BayDSchG. Dies hat das Gericht mit Urteil vom 31. März 2025 im Verfahren M 8 K 24.3325 festgestellt. Zur Vermeidung von Wiederholungen wird auf das den Beteiligten bekannte Urteil vom 31. März 2025 im Verfahren M 8 K 24.3325 Bezug genommen.
33
1.3 Das Vorhaben ist nach Art. 6 Abs. 1 Satz 2 BayDSchG erlaubnisbedürftig. Der Erlaubnis bedarf nach Art. 6 Abs. 1 Satz 2 BayDSchG, wer in der Nähe von Baudenkmälern Anlagen errichten, verändern oder beseitigen will, wenn sich dies auf Bestand oder Erscheinungsbild eines der Baudenkmäler auswirken kann. Die Möglichkeit der Auswirkung genügt hierbei, da die die Genehmigungspflicht auslösenden Tatbestände des Art. 6 Abs. 1 BayDSchG angesichts der Funktion des Genehmigungserfordernisses als präventives Verbot mit Erlaubnisvorbehalt weit auszulegen sind (vgl. BayVGH, U.v. 25.6.2013 – 22 B 11.701 – juris Rn. 27; U.v. 22.4.2016 – 1 B 12.2353 – juris Rn. 16 m.w.N.).
34
Dem folgend ist eine Erlaubnispflicht gegeben, da sich der Abriss des Bestandsgebäudes und der Neubau zweier Mehrfamilienhäuser auf die im Südosten auf der anderen Seite der D …straße gelegene „…“ auswirken kann. Aufgrund der zwischen den Gebäuden bestehenden Sichtbeziehung ist eine Beeinträchtigung des Erscheinungsbilds der „…“ möglich.
35
1.4 Nach Art. 6 Abs. 2 Satz 2 BayDSchG kann in einem Nähefall nach Art. 6 Abs. 1 Satz 2 BayDSchG die Erlaubnis versagt werden, soweit das Vorhaben zu einer Beeinträchtigung des Wesens, des überlieferten Erscheinungsbilds oder der künstlerischen Wirkung eines Baudenkmals führen würde und gewichtige Gründe des Denkmalschutzes für die unveränderte Beibehaltung des bisherigen Zustands sprechen. Als Gemeinwohlaufgabe von hohem Rang erfordert der Denkmalschutz, dass ein Denkmal vor Beeinträchtigungen seiner Substanz und seiner Ausstrahlungswirkung in die Umgebung hinein bewahrt wird, wie sie von einem Vorhaben in der Umgebung des Denkmals ausgehen können. Vorhaben, welche die Denkmalwürdigkeit erheblich beeinträchtigen, dürfen nur zugelassen werden, wenn das Vorhaben durch überwiegende Gründe des Gemeinwohls oder durch überwiegende private Interessen gerechtfertigt ist (vgl. BVerwG, U.v. 21.4.2009 – 4 C 3.08 – juris Rn. 14; BayVGH, U.v. 18.7.2013 – 22 B 12.1741 – juris Rn. 25).
36
Als (erhebliche) Beeinträchtigung eines Denkmals ist nicht nur eine Situation anzusehen, in der ein hässlicher, das ästhetische Empfinden des Betrachters verletzender Zustand, also ein Unlust erregender Kontrast zwischen der benachbarten Anlage und dem Baudenkmal hervorgerufen wird, sondern auch die Tatsache, dass die Wirkung des Denkmals als Kunstwerk, als Zeuge der Geschichte oder als bestimmendes städtebauliches Element geschmälert wird. Neue Vorhaben müssen sich zwar weder völlig an vorhandene Baudenkmäler anpassen, noch haben sie zu unterbleiben, wenn eine Anpassung nicht möglich ist. Aber sie müssen sich an dem Denkmal messen lassen, dürfen es nicht gleichsam erdrücken, verdrängen oder die gebotene Achtung gegenüber den im Denkmal verkörperten Werten vermissen lassen (BayVGH, U.v. 25.6.2013 – 22 B 11.701 – juris Rn. 32; U.v. 24.1.2013 – 2 BV 11.1631 – NVwZ-RR 2013, 545, juris Rn. 30; NdsOVG, U.v. 21.4.2010 – 12 LB 44/09 – NuR 2010, 649/657, juris Rn. 58). Hierzu zählen Bauvorhaben, die aufgrund ihrer Gestaltung auffällig oder aufdringlich wirken oder durch historisierende Scheinarchitektur die Aussagekraft des Denkmals verfälschen (vgl. Viebrock in Martin/Krautzberger, Denkmalschutz und Denkmalpflege, 5. Aufl. 2022, Teil E. Rn. 83 m.w.N.).
37
Unter Berücksichtigung dieser Vorgaben liegt keine erhebliche Beeinträchtigung des Baudenkmals „…“ vor. Die Wirkung der „…“ wird durch das Vorhaben in keiner Weise geschmälert. Der Einwand der Beklagten, dass die eingereichten Bauantragsunterlagen und Pläne eine Beurteilung der Fassadengestaltung und damit eine Beurteilung der Auswirkungen auf die „…“ nicht zuließen, greift nicht. Der unteren Denkmalschutzbehörde war eine denkmalrechtliche Bewertung des Vorhabens möglich, wie aus ihrer Stellungnahme vom 23. Juni 2022 hervorgeht. Darin wird das Vorhaben als „denkmalpflegerisch ohne Einwand“ bewertet. Gründe, weshalb der Lokalbaukommission der Beklagten eine Prüfung der denkmalrechtlichen Lage nicht möglich gewesen sein soll, obwohl die dafür spezialisierte untere Denkmalschutzbehörde zu der Prüfung in der Lage war, sind nicht erkennbar. Angesichts der Entfernung zwischen der „…“ und dem geplanten Vorhaben ist eine im oben dargestellten Sinne erhebliche Beeinträchtigung der „…“ aufgrund der Fassadengestaltung nicht zu befürchten. Aus den Unterlagen geht außerdem die Kubatur und Lage des Baukörpers eindeutig hervor. Ausweislich der Planunterlagen soll das Vorhaben keine besonders auffällige Gestaltung aufweisen. Geplant ist ein dreigeschossiger, L-förmiger Baukörper mit einem Terrassengeschoss und Balkonen an der Südseite. Eine erdrückende, übertönende oder verdrängende Wirkung des Einzelbaudenkmals durch das dreigeschossige Vorhaben erscheint in Anbetracht der Entfernung zwischen dem Vorhaben und der „…“ fernliegend. Zudem befinden sich bereits dicht gegenüber den Häusern der „…“ entlang der N … Str. mehrere dreigeschossige Baukörper. Die „…“ ist daher bereits jetzt in einen dichten Bebauungszusammenhang eingebunden. Sie weist selbst eine geringe Geschossigkeit auf und kontrastiert bereits jetzt zu der Bebauung auf der Nordseite der N … Straße. Eine Veränderung dieses Aufeinandertreffens unterschiedlicher Gebäudekubaturen kann die streitgegenständliche Planung nicht bewirken, da sie deutlich weiter von dem Denkmal entfernt liegt und einem anderen Geviert zuzurechnen ist. Die optische Einwirkung auf das durch das Denkmal in Anspruch genommene Geviert ist angesichts der geplanten Gebäudehöhe von nur 10,27 m kaum wahrzunehmen.
38
2. Hinsichtlich Frage 2.1 hat die Klage weder im Haupt- noch im Hilfsantrag Erfolg. Dem Vorhaben stehen öffentlich-rechtliche Vorschriften entgegen, die im bauaufsichtlichen Verfahren zu prüfen sind, Art. 71 Satz 1, Satz 4 BayBO i.V.m. Art. 68 Abs. 1 Satz 1 Halbs. 1, Art. 64 Abs. 2 Satz 1, Art. 59 Satz 1 Nr. 1 Buchst. a) BayBO i.V.m. §§ 29 bis 38 BauGB. Das Vorhaben überschreitet insoweit den durch die Eigenart der näheren Umgebung vorgegeben Rahmen im Sinne von § 34 Abs. 1 Satz 1 BauGB und ist auch nicht – trotz Rahmenüberschreitung – ausnahmsweise zulässig, da es geeignet ist, bodenrechtlich beachtliche und ausgleichsbedürftige Spannungen zu begründen.
39
2.1 Ein Vorhaben fügt sich im Allgemeinen ein, wenn es sich innerhalb des Rahmens hält, der durch die in der Umgebung vorhandene Bebauung gezogen wird. Für ein Einfügen nach dem Maß der baulichen Nutzung kommt es dabei darauf an, ob es in der näheren Umgebung Referenzobjekte gibt, die bei einer wertenden Gesamtbetrachtung von Grundfläche, Geschosszahl und Höhe, bei offener Bebauung auch nach dem Verhältnis zur Freifläche, vergleichbar sind (vgl. BVerwG, U.v. 8.12.2016 – 4 C 7.15 – juris Leitsatz 2, Rn. 20 unter Bezugnahme auf BVerwG, U.v. 23.3.1994 – 4 C 18.92 – juris Rn. 7; vgl. auch BVerwG, B.v. 14.3.2013 – 4 B 49.12 – juris Rn. 5; B.v. 3.4.2014 – 4 B 12.14 – juris Rn. 3; BayVGH, B.v. 14.2.2018 – 1 CS 17.2496 – juris Rn. 13). Eine Art „Rosinentheorie“, die eine Kombination von Bestimmungsgrößen, die einzelnen Gebäuden in der näheren Umgebung jeweils separat entnommen werden, findet nicht statt, da dies dazu führen könnte, dass Baulichkeiten entstehen, die in ihrer Dimension kein Vorbild in der näheren Umgebung haben (BVerwG, U.v. 8.12.2016 – 4 C 7.15 – juris Rn. 20; BayVGH, B.v. 12.10.2017 – 15 ZB 17.985 – juris Rn. 11). Ein den Rahmen überschreitendes Vorhaben ist ausnahmsweise zulässig, wenn es keine „städtebaulichen Spannungen“ hervorruft. Welcher Bereich als „nähere Umgebung“ anzusehen ist, hängt davon ab, inwieweit sich einerseits das geplante Vorhaben auf die benachbarte Bebauung und andererseits sich diese Bebauung auf das Baugrundstück prägend auswirken (BVerwG, U.v. 26.5.1978 – IV C 9/77 – BVerwGE 55,369, juris Rn. 33; U.v. 3.4.1981 – 4 C 61.78 – BVerwGE 62, 151, juris Rn. 14; BayVGH, U.v. 18.7.2013 – 14 B 11.1238 – juris Rn. 19; OVG NW, U.v. 1.3.2017 – 2 A 46/16 – juris Rn. 35). Beim Maß der baulichen Nutzung ist der maßgebliche Bereich in der Regel enger zu begrenzen als bei der Nutzungsart (vgl. BayVGH, B.v. 16.12.2009 – 1 CS 09.1774 – juris Rn. 21 m.w.N.; U.v. 12.12.2013 – 2 B 13.1995 – juris Rn. 15).
40
2.2 Der für die Beurteilung der planungsrechtlichen Zulässigkeit hinsichtlich des Maßes der baulichen Nutzung des Vorhabens relevante Bereich wechselseitiger Prägung wird bei Berücksichtigung dieser Grundsätze hier gebildet durch das Straßengeviert D …straße, W …straße, E … Straße und N … Straße sowie die auf der gegenüberliegenden Seite der N … Straße vorhandene Bebauung, namentlich die Gebäude auf den Grundstücken mit den Flurnummern … … …, … jeweils Gemarkung … (N …str. 2, 4, 6 und 8). Zudem zählt auch die auf der gegenüberliegenden Seite der D …straße vorhandene Bebauung auf den Flurnummern … (D …str. 30) und … (D …str. 30a und 30b) jeweils Gemarkung Bogenhausen zu näheren Umgebung. Hingegen nimmt die Bebauung auf dem Grundstück FlNr. … Gemarkung … (D …str. 32), welches ebenfalls schräg gegenüber auf der anderen Seite der D …straße gelegen ist, nicht mehr an der wechselseitigen Prägung teil.
41
Bei einem inmitten eines Wohngebiets gelegenen Vorhaben ist als Bereich gegenseitiger Prägung regelmäßig das Straßengeviert und die gegenüberliegende Straßenseite anzusehen (vgl. BayVGH, U.v. 24.7.2014 – 2 B 14.1099 – juris Rn. 20; B.v. 14.2.2018 – 1 CS 17.2496 – juris Rn. 16 f.). Schon aufgrund dieser Erwägung ist die Bebauung D …str. 32 nicht mehr als nähere Umgebung anzusehen, da sie Teil eines Gevierts ist, das nicht dem Geviert des Baugrundstücks gegenüberliegt. Die D …straße trenntzudem in diesem Bereich den vorbeschriebenen Bebauungzusammenhang von der Bebauung nördlich der W. straße und östlich der D …straße. Im Bereich nach dem Anwesen D …str. 30b weitet sich die D …straße nach Norden deutlich aus und erreicht unter Einbeziehung der Gehwege und vorhandenen Schrägparkplätze eine Breite von etwa 22 m. Dies verstärkt optisch die durch den Beginn eines neuen Gevierts deutlich werdende Zäsur im Bebauungszusammenhang.
42
In der ermittelten maßgeblichen näheren Umgebung findet sich kein hinsichtlich aller Maßkriterien vergleichbarer Bezugsfall. Das von der Klägerin als Bezugsfall benannte Gebäude N … Str. 2 ist nicht als Referenzobjekt geeignet, da es mit ca. 280 m2 (Maßentnahme aus Geoinformationssystem „BayernAtlas“) über eine deutlich geringere Grundfläche als das geplante Vorhaben verfügt. Das geplante Vorhaben soll eine Grundfläche von 447,38 m2 aufweisen, mithin über 166 m2 bzw. 59,5% (gerundet) mehr als das Gebäude N … Str. 2. Von einer geringfügigen Überschreitung, die für das Einfügen nach dem Maß der Nutzung unschädlich wäre, kann in diesem Fall nicht mehr die Rede sein. Es kommt angesichts der deutlichen Differenz auch nicht darauf an, ob die im Augenschein festgestellten Vorbauten im Lageplan hinreichend dargestellt sind. Sie sind von ihrer Ausdehnung nicht geeignet, die Grundfläche im erforderlichen Ausmaß zu vergrößern. Die übrigen Gebäude in der näheren Umgebung weisen noch geringere Grundflächen auf und sind daher ebenso wenig als Referenzobjekte geeignet.
43
2.3 Das Vorhaben fügt sich auch nicht – trotz Rahmenüberschreitung – ausnahmsweise nach dem Maß seiner baulichen Nutzung in die Eigenart der näheren Umgebung ein. Vielmehr wäre es geeignet, bodenrechtlich beachtliche und ausgleichsbedürftige Spannungen zu begründen. Hierfür reicht die mögliche Vorbildwirkung des Vorhabens für andere Bauvorhaben auf Nachbargrundstücken in vergleichbarer Lage aus (vgl. BayVGH, B.v. 3.3.2016 – 15 ZB 14.1542 – juris Rn. 17 m.w.N.).
44
2.4 Auch ein Anspruch auf erneute Verbescheidung durch die Beklagte besteht nicht, da das Vorhaben schon tatbestandlich nicht zulässig ist.
45
3. Für eine positive Entscheidung zu den Fragen 3.1 und 4.1 bis 4.6 fehlt der Klägerin angesichts der bauplanungsrechtlichen Unzulässigkeit des Baukörpers nach dem Maß der baulichen Nutzung ein Sachbescheidungsinteresse. Das Sachbescheidungsinteresse fehlt, wenn der Antragsteller kein Interesse an der Beantwortung, der im Vorbescheid gestellten Fragen hat (Michl in: BeckOK Bauordnungsrecht Bayern, 32. Edition Stand 1.7.2024, Art. 71 Rn. 15). Das ist etwa dann der Fall, wenn der Bauherr an der Verwertung des begehrten Vorbescheids gehindert und der Vorbescheid ersichtlich nutzlos ist (Decker in: Busse/Kraus, Bayerische Bauordnung, 156. EL Dezember 2024, Art. 71 Rn. 59). Hinsichtlich der abgefragten Befreiungen von den übergeleiteten Baulinien / -grenzen hat der Vorbescheid für die Klägerin im vorliegenden Einzelfall keinen praktischen Nutzen mehr, da sie das Vorhaben nach der diesem Vorbescheid zugrundeliegenden Planung nicht umsetzen kann, weil der Hauptbaukörper schon nach dem Maß der baulichen Nutzung nicht zulässig ist.
46
4. Auch in Bezug auf die Fragen 6.1 und 7.1 fehlt der Klägerin ein Sachbescheidungsinteresse sowohl in Bezug auf die Entscheidung über die Inaussichtstellung der Fällungsgenehmigung für Baum Nr. 4 als auch in Bezug auf die Beantwortung der Frage zur Vereinbarkeit der Tiefgarage mit der Besonderen Siedlungsgebieteverordnung. In der derzeitigen Form ist das Vorhaben mangels planungsrechtlicher Zulässigkeit nach dem Maß der baulichen Nutzung nicht umsetzbar.
47
5. Bei Frage 7.2 handelt es sich schon nicht um eine zulässige Vorbescheidsfrage, sodass die Klage insoweit sowohl im Haupt- als auch im Hilfsantrag ohne Erfolg bleibt. Gegenstand eines Vorbescheids können nur einzelne Fragen – auch eine Vielzahl – eines Vorhabens sein (Decker in: Busse/Kraus, Bayerische Bauordnung, 156. EL Dezember 2024, Art. 71 Rn. 71). Die zur Entscheidung gestellten Fragen müssen einer separaten Entscheidung zugänglich sein (BayVGH, U.v. 14.12.2026 – 2 B 16.1574 – juris Rn. 42; Decker in: Busse/Kraus, Bayerische Bauordnung, 156. EL Dezember 2024, Art. 71 Rn. 73). Die Rechtsprechung grenzt den Begriff der „einzelnen Frage“ danach ab, ob und in welcher Weise von einer Teilbarkeit der vom Bauherrn gestellten Frage ausgegangen werden kann. Zu unterscheiden ist die Frage nach der Teilbarkeit des Vorhabens von der Teilbarkeit der rechtlichen Vorgaben (Decker in: Busse/Kraus, Bayerische Bauordnung, 156. EL Dezember 2024, Art. 71 Rn. 73). Teilbar ist ein Vorhaben bzw. eine Baugenehmigung dann, wenn voneinander getrennt genehmigbare und baulich getrennte Bauteile betroffen sind (vgl. BayVGH, B.v. 10.2.2014 – 2 CS 13.2472 – juris Rn. 7; BayVGH, U.v. 18.4.2013 – 2 B 13.423 – juris Rn. 16). Entsprechendes muss für das Vorbescheidsverfahren gelten. Bei der geplanten Neuerrichtung eines Mehrfamilienhauses mit Tiefgarage handelt es sich um ein einheitliches, nicht teilbares Bauvorhaben. Die Zufahrt zur Tiefgarage kann nicht isoliert von dem restlichen Vorhaben beurteilt werden.
48
6. Die Kostenentscheidung richtet sich nach § 155 Abs. 1 VwGO.
49
Gemäß § 155 Abs. 1 Satz 1 VwGO sind die Kosten bei einem teilweisen Obsiegen und teilweise Unterliegen der Beteiligten entweder gegeneinander aufzuheben oder verhältnismäßig zu teilen. Maßgeblich für die Frage, ob überhaupt und in welchem Umfang ein Teilobsiegen vorliegt, ist der Vergleich des Sachantrags des Klägers/Rechtsmittelführers oder Beigeladenen mit dem Ausspruch des Gerichts zur Hauptsache (Zimmermann-Kreher in: BeckOK VwGO, Stand 1.7.2024, § 155 Rn. 1).
50
Unter Berücksichtigung der Anteile des Prozesserfolgs am Verfahren insgesamt ist es vorliegend verhältnismäßig der Klägerin 5/6 und der Beklagten 1/6 der Kosten des Verfahrens aufzuerlegen.
51
Die Entscheidung über die vorläufige Vollstreckbarkeit beruht auf § 167 VwGO i.V.m. §§ 708 ff. ZPO.