Inhalt

VG München, Urteil v. 15.07.2024 – M 8 K 22.2758
Titel:

Erfolglose Nachbarklage gegen Bauvorbescheid für Wohnhaus mit Tiefgarage 

Normenketten:
BauGB § 30, § 31 Abs. 2
BauNVO § 12 Abs. 2
BayBO Art. 59, Art. 68 Abs. 1, Art. 71
Leitsätze:
1. Bei einer Befreiung von einer nachbarschützenden Festsetzung, hat der Nachbar einen Rechtsanspruch, dass die Abweichung unter Würdigung nachbarlicher Interessen mit den öffentlichen Belangen vereinbar ist und die tatbestandsmäßigen Voraussetzungen des § 31 Abs. 2 BauGB im konkreten Fall erfüllt sind. (Rn. 57) (redaktioneller Leitsatz)
2. Aus dem Rücksichtnahmegebot ist kein Recht des Nachbarn abzuleiten, dass in seiner Nachbarschaft nur objektiv rechtmäßige Bauvorhaben entstehen, eine Rechtsverletzung ist erst dann zu bejahen, wenn von dem Vorhaben eine unzumutbare Beeinträchtigung ausgeht. (Rn. 72) (redaktioneller Leitsatz)
3. Hauptkriterien bei der Beurteilung einer „erdrückenden“ bzw. „abriegelnden“ Wirkung sind die Höhe des Bauvorhabens und seine Länge sowie die Distanz der baulichen Anlage in Relation zur Nachbarbebauung. (Rn. 76) (redaktioneller Leitsatz)
4. Vorschriften einer naturschutzrechtlichen Baumschutzverordnung sind nicht nachbarschützend, da sie ausschließlich den öffentlichen Belangen der Durchgrünung und Ortsbildgestaltung dienen. (Rn. 82) (redaktioneller Leitsatz)
Schlagworte:
Nachbarklage, Vorbescheid für Neubau eines Wohnhauses mit Flachdach und Tiefgarage, Teilrücknahme der Klage, Befreiungen von den Festsetzungen eines Bebauungsplans, Drittschützende Wirkung von Festsetzungen zum Maß der baulichen Nutzung, der überbaubaren Grundstücksfläche und einer Gemeinschaftstiefgarage (verneint), Rücksichtnahmegebot, Umfang einer Dienstbarkeit, behördliche Befugnis zur Ablehnung wegen fehlenden Sachbescheidungsinteresses nicht drittschützend, Inaussichtstellen einer Fällungsgenehmigung nach der BaumschutzV (nicht drittschützend), Baurecht, Bauvorbescheid, Baugenehmigung, Neubau, Bebauungsplan, Baugrenze, Geschossflächenzahl, Grundflächenzahl, Geschossanzahl, Befreiung, Fahrradstellplatz, Tiefgarage, Kinderspielplatz, Baumfällung, Dienstbarkeit, nachbarschützende Vorschrift, erdrückende Wirkung, abriegelnde Wirkung
Fundstelle:
BeckRS 2024, 27873

Tenor

I.Soweit die Klage zurückgenommen wurde, wird das Verfahren eingestellt.
Im Übrigen wird die Klage abgewiesen.
II.Die Klägerin hat die Kosten des Verfahrens einschließlich der außergerichtlichen Kosten der Beigeladenen zu tragen.
III.Die Kostenentscheidung ist für die Beklagte ohne, für die Beigeladene gegen Sicherheitsleistung in Höhe des vollstreckbaren Betrags vorläufig vollstreckbar.
Die Klägerin darf die Vollstreckung durch die Beklagte durch Sicherheitsleistung oder Hinterlegung in Höhe des vollstreckbaren Betrags abwenden, wenn nicht die Beklagte vorher Sicherheit in gleicher Höhe leistet.   

Tatbestand

1
Die Klägerin wendet sich als Nachbarin gegen einen der Beigeladenen erteilten Vorbescheid für den Abbruch des Bestands und den Neubau eines Wohnhauses mit Flachdach inkl. Tiefgarage auf dem insgesamt 2.637 m² großen Grundstück I. …straße 5, FlNr. …25, Gem. … (im Folgenden: Vorhabengrundstück). Dieses ist derzeit mit einem eingeschossigen Wohngebäude mit ausgebautem Dachgeschoss (Satteldach) bebaut.
2
Bei der Klägerin handelt es sich um eine Wohnungseigentümergemeinschaft, bestehend aus den Wohnungseigentümern der Grundstücke FlNr. …17, Gem. … (S. …straße 37, 39), und FlNr. …35, Gem. … (Sp. … Straße 7, 7a; im Folgenden: Nachbargrundstücke). Das Grundstück S. …straße 37, 39 liegt unmittelbar östlich, in einem Teilbereich aufgrund dessen Zuschnitts auch nördlich des Vorhabengrundstücks und ist mit einem dreigeschossigen Bestandsgebäude (mit Hochparterre) bebaut. Das mit einem Flachdach versehene Dachgeschoss ist geringfügig zurückgesetzt. Auf dem unmittelbar nördlich an das Vorhabengrundstück angrenzenden Nachbargrundstück Sp. … Straße 7, 7a befindet sich ein Wohngebäude, welches über dem Erd- und Obergeschoss ein umfangreich ausgebautes Dachgeschoss mit Satteldach aufweist.
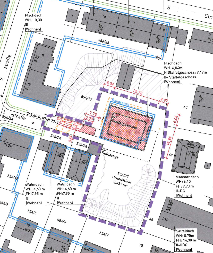
3
Vergleiche folgenden Auszug aus dem streitgegenständlichen Vorbescheid zugrunde liegenden) Bauvorlagen (Lageplan), Maßstab 1 : 1000, mit einer Darstellung des Vorhabens und der benachbarten Bebauung (nach dem Einscannen möglicherweise nicht mehr maßstabsgetreu):
4
Sowohl das Vorhabengrundstück als auch die Nachbargrundstücke liegen im Geltungsbereich des Bebauungsplans der Beklagten Nr. 1163 „I. …-, S. …- und Sp. … Straße (Teiländerung des Bebauungsplans Nr. 389)“ der Beklagten, welcher am 5. Oktober 1977 als Satzung beschlossen und am 10. März 1978 (nach Genehmigung durch die Regierung von Oberbayern) im Amtsblatt der Beklagten bekannt gemacht wurde. Der Bebauungsplan enthält für das Vorhabengrundstück – neben der Festsetzung eines Bauraums mittels Baugrenzen – unter anderem folgende Festsetzungen: WR 4, Geschossflächenzahl (GFZ) 0,2, Grundflächenzahl (GRZ) 0,15, Zahl der Vollgeschosse als Höchstgrenze: I + DA (Dachgeschossausbau bis höchstens 2/3 der Grundfläche des darunterliegenden Geschosses zulässig), Satteldach (SD).
5
In Bezug auf die Nachbargrundstücke FlNr. …17 und die heutige FlNr. …35 (damals noch FlNr. 556) der Gemarkung … trifft der Bebauungsplan der Bebauungsplan folgende Festsetzungen:

- FlNr. …17:

WR 1, GFZ 0,5, GRZ 0,2, Zahl der Vollgeschosse max. II + TG (Terrassengeschoss bis höchstens 2/3 der Grundfläche des darunterliegenden Geschosses zulässig), Flachdach (FD), Gemeinschaftstiefgarage (GTGa), Baugrenzen

- FlNr. …35:

WR 2, GFZ 0,6, GRZ 0,4, Zahl der Vollgeschosse max. II + DA, SD, GTGa, Baugrenzen.

6
§ 2 Abs. 1 der textlichen Festsetzungen des Bebauungsplans Nr. 1163 bestimmt, dass die Freiflächen der Baugrundstücke einschließlich der Decken der Tiefgaragen zu begrünen, mit Bäumen und Sträuchern zu bepflanzen und in dieser Weise zu erhalten sind. Nach § 3 Abs. 1 der textlichen Festsetzungen ist die im Bereich der reinen Wohngebiete WR 1 und WR 2 festgesetzte Gemeinschaftstiefgarage Gemeinschaftsanlage für die reinen Wohngebiete WR 1, WR 2 und WR 4. Ausnahmsweise können im WR 4 bis zu zwei Garagen je Gebäude oberirdisch auf dem Baugrundstück angeordnet werden (§ 3 Abs. 2 der textlichen Festsetzungen). Durch den Bebauungsplan Nr. 1163 wurde der Bebauungsplan der Beklagten Nr. 389 „… Allee, M. …, F. … und O. … Straße“ vom 22. September 1965 unter anderem im Bereich des Vorhabengrundstücks und der heutigen Nachbargrundstücke geändert. Dieser sah im Geviert nördlich der B. … Straße, östlich der S. …straße, südlich der Sp. … Straße und westlich der … Allee, zu dem auch das Vorhaben- und die Nachbargrundstücke gehören, einen mäanderförmigen, mittels Baugrenzen gebildeten Bauraum, ein WR, max. zwei Vollgeschosse, eine GFZ von 0,6 und eine GRZ von 0,4 vor; Flachdächer sollten nicht zulässig sein. Die I. …straße sollte als Wendehammer ausgebildet werden.
7
Das Grundbuch von … enthält für die Nachbargrundstücke (u.a.) folgende Eintragungen:
8
- „Grunddienstbarkeit – Recht zur Nutzung zu Gartenzwecken –; lastend nur an Flst. …17; für jeweilige Eigentümer von Flst. …25; gemäß Bewilligung vom 30.4.1987, 25.8.1987 – URNr. …, 4536 /Notar Dr. …; eingetragen am 2.6.1987 .“
9
- „Grunddienstbarkeit – Recht zur Nutzung zu Gartenzwecken, zur Errichtung eines Schuppens und eines Gartenhauses, sowie Holzlagerungsrecht-; lastend nur an Flst. …35; für jeweilige Eigentümer von Flst. …25; gemäß Bewilligung vom 30.4.1987 – URNr. … /Notar Dr. …; eingetragen am 2.6.1987 .“
10
Auf Antrag vom 9. Dezember 2021 hin erteilte die Beklagte der Beigeladenen unter dem 21. April 2022 einen Vorbescheid für „Abbruch Bestand und Neubau eines Wohnhauses mit Flachdach und Tiefgarage“ nach Plan-Nr. … Geplant ist ausweislich der eingereichten Bauvorlagen die Errichtung eines dreigeschossigen Wohngebäudes, wobei das 2. Obergeschoss als Terrassengeschoss (mit Flachdach) ausgebildet ist. Die Außenmaße des Hauptbaukörpers betragen 25,72m x 18,94 m, wobei die längeren Gebäudeseiten nach Norden/Nordosten und Süden/Südwesten ausgerichtet sind. Die nördliche bzw. nordöstliche Gebäudeaußenwand rückt im Erd- und 1. Obergeschoss ca. 2 m (abgegriffen) von der festgesetzten Baugrenze ab. An der Südost-Seite wird die Baugrenze vom Baukörper auf einer Fläche von rd. 22 m² überschritten. Zudem ist die Errichtung einer Tiefgarage auf dem streitgegenständlichen Grundstück vorgesehen. Die Zufahrt zur Tiefgarage soll von Westen her über die S. …straße und die als Stichstraße ausgebildete I. …straße erfolgen.
11
Die im Vorbescheidsantrag gestellten Fragen Nrn. 6 und 10 wurden von der Beklagten negativ, die übrigen Fragen – soweit noch streitgegenständlich – wie folgt beantwortet (und im Einzelnen mit einer, nachstehend nicht wiedergegebenen Begründung versehen):
„Frage 1:
12
Überschreitung der Geschossflächenzahl
13
Wird eine Befreiung für die Überschreitung der im Bebauungsplan festgesetzten Geschossflächenzahl gem. § 31 Abs. 2 BauGB auf 0,440 in Aussicht gestellt?
Antwort:
Ja.
14
Eine Befreiung für die Überschreitung der im Bebauungsplan festgesetzten Geschossflächenzahl von 0,2 auf 0,44 wird gem. § 31 Abs. 2 BauGB unter der Maßgabe in Aussicht gestellt, dass im anschließenden Baugenehmigungsverfahren ein in allen übrigen baurechtlichen Belangen genehmigungsfähiges Bauvorhaben beantragt wird. Dabei sind gemäß dem Angebot des Bauherrn 40% der durch die Befreiung zusätzlich gewährten Wohnbaufläche als Fläche für den geförderten Wohnungsbau vertraglich zu sichern. Die Befreiung vom festgesetzten Maß der Nutzung und der überbaubaren Grundstücksfläche ist auch im öffentlichen Interesse, da geförderter Wohnraum gebunden werden kann.
Frage 2:
15
Überschreitung der Grundflächenzahl
16
Wird eine Befreiung wegen Überschreitung der im Bebauungsplan festgesetzten Grundflächenzahl gem. § 31 Abs. 2 BauGB um 0,03 in Aussicht gestellt?
Antwort:
Ja.
17
Die Befreiung für die Überschreitung der zulässigen GRZ von 0,15 auf 0,18 wird in Aussicht gestellt.
Frage 3:
18
Überschreitung Anzahl der Geschosse
19
Wird eine Befreiung wegen Überschreitung der zulässigen Anzahl an Geschossen um zwei Geschosse gem. § 31 Abs. 2 BauGB in Aussicht gestellt?
Antwort:
Ja.
20
Die Befreiung für die Überschreitung der Anzahl der Geschosse um zwei Vollgeschosse von I+DA auf II+TG kann in Bezug auf die Umgebungsbebauung in Aussicht gestellt werden.
Frage 4:
21
Überschreitung der Baugrenze:
22
Wird eine Befreiung wegen geringfügiger Überschreitung des im Bebauungsplan festgesetzten Bauraums durch das geplante Hauptgebäude gem. § 31 Abs. 2 BauGB in Aussicht gestellt?
Antwort:
Ja.
23
Die Befreiung wegen Überschreitung der Baugrenze kann im östlichen Teil des Bauraums in Aussicht gestellt werden.
Frage 5:
24
Errichtung Tiefgarage
25
Wird für die im Plan dargestellten Tiefgarage eine Befreiung gem. § 31 Abs. 2 BauGB wegen Nichteinhaltung der Vorgabe zur Gemeinschaftstiefgarage sowie wegen Überschreitung des Bauraums in Aussicht gestellt?
Antwort:
26
Ja. Der abgefragten Tiefgarage kann zugestimmt werden, soweit diese den Belangen der UNB nicht entgegen steht.
27
Hinweis UNB: Bei der geplanten Länge der TG-Zufahrt sollte auf alle Fälle über eine Überdachung und Eingrünung nachgedacht werden.
Frage 7:
28
Fahrradabstellplätze:
29
Können die benötigten Fahrradabstellplätze auf Grund der bestehenden Dienstbarkeiten in dem vorhandenen Nebengebäude auf dem benachbarten Flurstück …35 untergebracht werden (s. Planeintrag)?
Antwort:
Ja.
Frage 8:
30
Kinderspielplatz:
31
Kann der benötigte Kinderspielplatz, auf Grund der bestehenden Dienstbarkeiten auf dem benachbarten Flurstück …17 errichtet werden.
Antwort:
Ja.
Frage 9:
32
Fällung von Bestandsbäumen:
33
Wird die Fällung der gekennzeichneten Bäume gegen Ersatzpflanzung in Aussicht gestellt?
Antwort:
34
Entspricht das, im späteren Baugenehmigungsverfahren beantragte Vorhaben dem Vorhaben dieses Vorbescheides, wird die Genehmigung zur Fällung für folgenden, im Baumbestandsplan Nr. … bezeichneten Baumbestand in Aussicht gestellt (§§ 1 und 5 der Baumschutzverordnung):
35
7 Bäume: Nr. 73 (Hemlocktanne, StU 2 x 67 cm), Nr. 79 (Colorado-Tanne, StU 113 cm), Nr. 80 (Rot-Buche, StU 167/132 cm), Nr. 81 (Eibe, StU 26/22/47 cm), Nr. 82 (Rot-Buche, StU 195 cm), Nr. 83 (Vogelkirsche, StU 119/118 cm) und Nr. 84 (Kugelakazie, StU 87 cm)
36
- im Plan orange markiert – (…).“
37
Der Vorbescheid wurde im Amtsblatt der Beklagten Nr. 13/2022 vom 10. Mai 2022 öffentlich bekanntgemacht. Darüber hinaus wurde der Klägerin mit einfachem Schreiben vom 22. April 2022 eine Nachbarausfertigung des Vorbescheids übermittelt.
38
Mit Schriftsatz vom 23. Mai 2022, bei Gericht eingegangen am gleichen Tag, ließ die Klägerin durch ihre Prozessbevollmächtigten gegen diesen Bescheid Klage zum Verwaltungsgericht München erheben und zunächst beantragen, den Vorbescheid aufzuheben.
39
In der mündlichen Verhandlung am 15. Juli 2024 nahm die Klägerin ihre Klage gegen die Beantwortung der Vorbescheidsfragen Nrn. 6, 10, 11 und 12 zurück. Im Übrigen beantragt sie
40
die Aufhebung des Vorbescheids vom 21. April 2022.
41
Zur Begründung macht sie – zusammengefasst – Folgendes geltend: Die positive Beantwortung der Fragen 1 und 3 (Inaussichtstellen einer Befreiung von der festgesetzten GFZ und der Zahl der Vollgeschosse) sei rechtswidrig und verletze die Klägerin in ihren Rechten, da die Grundzüge der Planung berührt würden. Den Festsetzungen des Bebauungsplans Nr. … über das Maß der baulichen Nutzung und über die Gestaltung der Freiflächen käme ausnahmsweise eine nachbarschützende Funktion zu, dies habe der Bayerische Verwaltungsgerichtshof in einem vergleichbaren Fall bereits entschieden (Beschluss vom 26. Juli 2011 – 14 CS 11.535 – juris Rn. 23 ff.). Die Festsetzungen stünden nach der Konzeption des Plangebers in einem wechselseitigen, die Planbetroffenen zu einer rechtlichen Schicksalsgemeinschaft verbindenden Austauschverhältnis. Ursprünglich hätten sich – unter anderem – die Grundstücke FlNr. …, …17, …25 und …35 im Geltungsbereich des Bebauungsplans Nr. … befunden, der entlang der Straßen durchgängige Bauräume vorgesehen und im Übrigen maximal zwei Vollgeschosse, eine Geschossflächenzahl von 0,6 sowie eine Grundflächenzahl von 0,4 vorgesehen habe. Auf Betreiben sämtlicher betroffener Eigentümer sei der Bebauungsplan Nr. … für die genannten Grundstücke durch den Bebauungsplan Nr. … geändert und es seien grundstücksbezogen unterschiedliche Festsetzungen zum Maß der baulichen Nutzung festgesetzt worden. Anstelle des Ausbaus der I. …straße seien Freiflächen vorgesehen worden, die zu begrünen und mit Bäumen und Sträuchern zu bepflanzen seien. Sämtliche Eigentümer hätten das Baurecht gemäß dem ursprünglichen Bebauungsplan nicht ausgenutzt und eine Reduzierung gewünscht – offenbar, um im Innern des Gevierts Sp. … Straße, … Allee, B. … Straße, S. …straße eine großzügige, durchgrünte und landschaftlich gestaltete Bebauung zu erreichen. Die Reduzierung des zulässigen Maßes der baulichen Nutzung betreffe sämtliche Grundstücke im Umgriff des geänderten Bebauungsplans und wäre in diesem Umfang gegen den Willen der Beteiligten nicht möglich gewesen. Die spätere Änderung der Eigentumsverhältnisse spiele aufgrund der anzustellenden grundstücksbezogenen Betrachtungsweise keine Rolle. Eine Nachverdichtung, wie sie der Vorbescheidsplanung zugrunde liege, sei außerdem nur durch eine Änderung des Bebauungsplans möglich.
42
Darüber hinaus seien die Fragen 7 und 8 zu Unrecht mit „Ja“ beantwortet worden. Der zivilrechtliche Umfang einer Grunddienstbarkeit sei nicht Gegenstand eines Bauvorbescheids. Es handele sich um eine rein zivilrechtliche Fragestellung, die von der Beklagten nicht zu beantworten sei. Abgesehen davon widerspreche die vorgesehene Nutzung auch dem Inhalt der Dienstbarkeit. Die Klägerin stimme der beabsichtigten Nutzung nicht zu. Eine überdachte Fahrradgarage sei vom klaren Wortlaut der Dienstbarkeit nicht umfasst. Das gleiche gelte für die Errichtung dauerhafter, ortsfester Spielgeräte.
43
Die Beklagte legte die Behördenakten vor und beantragt
44
Klageabweisung
45
Die Beigeladene beantragt
46
Klageabweisung
47
Der Rechtsgedanke des Gebietserhaltungsanspruches lasse sich auf das Maß der baulichen Nutzung nicht übertragen. Aus der Bebauungsplanbegründung ergebe sich eindeutig, dass die Festsetzung aus rein städtebaulichen Gründen erfolgt sei und nicht, um ein Austauschverhältnis zwischen den Grundstückseigentümern dort (mit) zu regeln. Der von der Rechtsprechung des Bayerischen Veraltungsgerichtshofs geforderte klare Wille der Gemeinde als Planungsträgerin, dass eine Festsetzung drittschützend sein solle, liege hier gerade nicht vor.
48
Die seitens der Klägerin behauptete Abstimmung der Grundstückseigentümer zum Maß der baulichen Nutzung im Bebauungsplan sei so auch nicht zutreffend. Ausweislich der Bebauungsplanbegründung sei es der alleinige Wunsch der Voreigentümer der Beigeladenen gewesen, eine Modifikation der planerischen Vorgaben im Inneren des Planbereiches herbeizuführen. Die Klägerin sei, soweit ersichtlich, erst später Eigentümerin geworden und könne von diesem Anspruch nicht erfasst sein. Im Übrigen ergebe sich aus der Bebauungsplanbegründung eindeutig, dass es das städtebauliche Ziel gewesen sei, größere Grünzonen im Inneren zu erreichen. Die Reduktion sei nicht erfolgt, um nachbarrelevante Belange zu begründen, zu verfestigen oder zu schützen. Selbst wenn man einen entsprechenden Schutzanspruch annehmen wollte, sei die erteilte Befreiung gleichwohl rechtmäßig. Auf die „Grundzüge der Planung“ komme es bei dem hier einschlägigen § 31 Abs. 3 BauGB nicht an. Belange der Klägerin, die über die allgemeine Rüge zum Maß der baulichen Nutzung hinausgingen, seien nicht erkennbar, insbesondere nicht, dass es einen Verstoß gegen das Gebot der Rücksichtnahme gebe.
49
Ferner sei nicht erkennbar, woraus sich bei der vorgelegten Grunddienstbarkeit eine rechtliche Beeinträchtigung für die Klägerin ergeben könne. Diese sei seinerzeit von dem Voreigentümer für das Vorhabengrundstück und die Nachbarschaft bestellt worden; die dort vereinbarten Rechte berührten die hier maßgebliche Rechtsfrage nicht. Im Übrigen sei nicht unüblich, dass entsprechende Dienstbarkeiten öffentlich-rechtliche Rechtsverhältnisse beträfen. Aus öffentlich-rechtlicher Sicht sei die Frage deshalb richtig beantwortet, dass die Beklagte im Zuge eines nachfolgenden Baugenehmigungsverfahrens öffentlich-rechtlich den entsprechenden Nachweis von Anlagen auf einem Fremdgrundstück anerkenne. Damit sei aber nichts hinsichtlich der zivilrechtlichen Zulässigkeit ausgesagt, da entsprechende Genehmigungen unbeschadet privater Rechte Dritter ergingen.
50
Das Gericht hat am 15. Juli 2024 Beweis durch Augenscheinseinnahme erhoben und eine mündliche Verhandlung durchgeführt. Auf die Protokolle des Augenscheins und der mündlichen Verhandlung wird verwiesen.
51
Wegen der weiteren Einzelheiten wird auf die Gerichtsakte, das schriftsätzliche Vorbringen der Beteiligten sowie die vorgelegten Behördenakten Bezug genommen.

Entscheidungsgründe

I.
52
Soweit die Klagepartei die Klage in der mündlichen Verhandlung zurückgenommen hat – nämlich hinsichtlich der Beantwortung der Vorbescheidsfragen Nrn. 6, 10, 11 und 12 –, war das Verfahren gemäß § 92 Abs. 3 Verwaltungsgerichtsordnung (VwGO) einzustellen. Da die Klage nur teilweise zurückgenommen wurde, war kein gesonderter Einstellungsbeschluss zu erlassen. Vielmehr konnte die Entscheidung über die Verfahrenseinstellung gemäß § 92 Abs. 3 Satz 1 VwGO und die Kostentragung gemäß § 155 Abs. 2 VwGO zusammen mit der Sachentscheidung über den nicht zurückgenommenen Teil der Klage im Urteil getroffen werden (vgl. BVerwG, U.v. 6.2.1963 – V C 24/61 – NJW 1963, 923; B.v. 7.8.1998 – 4 B 75.98 – juris Rn. 2; Eyermann, Verwaltungsgerichtsordnung, 16. Auflage 2022, § 92 Rn. 24).
II.
53
Im Übrigen war die – insoweit zulässige – Klage abzuweisen, da die Klägerin durch die Beantwortung der Fragen 1 bis 5 und 7 bis 9 im Vorbescheid vom 21. April 2022 nicht in nachbarschützenden Vorschriften verletzt wird, die im vereinfachten Baugenehmigungsverfahren zu prüfen sind und auf die sich die Kläger berufen können, § 113 Abs. 1 Satz 1 VwGO i.V.m. Art. 71 Satz 4 BayBO i.V.m. Art. 68 Abs. 1 Satz 1 Halbsatz 1 BayBO i.V.m. Art. 59 BayBO.
54
Dritte können sich gegen eine Baugenehmigung – und entsprechend gegen einen Vorbescheid – nur dann mit Aussicht auf Erfolg zur Wehr setzen, wenn der angefochtene Bescheid rechtswidrig ist und diese Rechtswidrigkeit auf der Verletzung von Normen beruht, die im Genehmigungsverfahren zu prüfen waren und zumindest auch dem Schutz des betreffenden Nachbarn zu dienen bestimmt sind (BayVGH, B.v. 21.7.2020 – 2 ZB 17.1309 – juris Rn. 4). Dementsprechend findet im gerichtlichen Verfahren keine umfassende Rechtskontrolle statt; vielmehr hat sich die gerichtliche Prüfung darauf zu beschränken, ob durch den angefochtenen Bescheid drittschützende Vorschriften, die dem Nachbarn einen Abwehranspruch vermitteln, verletzt werden.
55
1. Die positive Beantwortung der Vorbescheidsfragen Nrn. 1 bis 5, in denen verschiedene Befreiungen gem. § 31 Abs. 2 BauGB von den Festsetzungen des Bebauungsplans Nr. 1163 in Aussicht gestellt wurden, erweist sich nicht als nachbarrechtswidrig.
56
Nach § 31 Abs. 2 BauGB kann von den Festsetzungen eines Bebauungsplans befreit werden, wenn die Grundzüge der Planung nicht berührt werden und Gründe des Wohls der Allgemeinheit, einschließlich der Wohnbedürfnisse der Bevölkerung und des Bedarfs zur Unterbringung von Flüchtlingen oder Asylbegehrenden, die Befreiung erfordern oder die Abweichung städtebaulich vertretbar ist oder die Durchführung des Bebauungsplans zu einer offenbar nicht beabsichtigten Härte führen würde und wenn die Abweichung auch unter Würdigung nachbarlicher Interessen mit den öffentlichen Belangen vereinbar ist.
57
Soweit eine Befreiung gem. § 31 Abs. 2 BauGB erteilt wird, ist hinsichtlich des Nachbarschutzes zu differenzieren, ob von drittschützenden Festsetzungen eines Bebauungsplans oder von nicht drittschützenden Festsetzungen befreit wird. Handelt es sich um eine nachbarschützende Festsetzung, so hat der Nachbar einen Rechtsanspruch auf Einhaltung der tatbestandlichen Voraussetzungen des § 31 Abs. 2 BauGB (BayVGH, B. v. 26.2.2014 – 2 ZB 14.101 – juris Rn. 3). Entscheidend ist damit nicht nur, ob die Abweichung unter Würdigung nachbarlicher Interessen mit den öffentlichen Belangen vereinbar ist, sondern auch, ob die tatbestandsmäßigen Voraussetzungen des § 31 Abs. 2 BauGB im konkreten Fall erfüllt sind. Bei einer Befreiung von einer Festsetzung, die nicht drittschützend ist, werden nachbarschützende Rechte nur verletzt, wenn der Nachbar durch die Erteilung der Baugenehmigung unzumutbar beeinträchtigt wird; eine Rechtsverletzung kommt insoweit nur in dem im Begriff der „Würdigung nachbarlicher Interessen“ verankerten Rücksichtnahmegebot in Betracht (vgl. BVerwG, B.v. 8.7.1998 – 4 B 64.98 – juris Rn. 5 f.; U.v. 9.8.2018 – 4 C 7.17 – juris Rn. 12; BayVGH, B.v. 13.10.2021 – 9 CS 21.2211 – juris Rn. 28; B.v. 11.8.2021 – 15 CS 21.1775 – juris Rn. 9; B.v. 15.2.2019 – 9 CS 18.2638 – juris Rn. 19; B.v. 21.5.2019 – 1 CS 19.474 – juirs Rn. 4; B.v. 5.9.2016 – 15 CS 16.1536 – juris Rn. 25 m.w.N.; B.v. 18.12.2017 – 9 CS 17.345 – juris Rn. 15; B.v. 6.8.2010 – 15 CS 09.3006 – juris Rn. 26; B.v. 24.3.2009 – 14 CS 08.3017 – juris Rn. 33). Nachbarrechte werden in diesem Fall also nicht schon dann verletzt, wenn die Befreiung aus irgendeinem Grund rechtswidrig ist, sondern nur dann, wenn der Nachbar durch das Vorhaben infolge der zu Unrecht erteilten Befreiung unzumutbar beeinträchtigt wird (vgl. BayVGH, B.v. 13.10.2021 – 9 CS 21.2211 – juris Rn. 28; B.v. 15.2.2019 – 9 CS 18.2638 – juris Rn. 19 m.w.N.).
58
Die Festsetzungen des Bebauungsplans Nr. … hinsichtlich derer die Beklagte in Beantwortung der Fragen 1 bis 5 im streitgegenständlichen Vorbescheid Befreiungen in Aussicht gestellt hat, sind nicht nachbarschützend (siehe nachfolgend 1.1.). Daher kann dahinstehen, ob ein Austauschverhältnis schon deswegen ausscheidet, weil Bau- und Nachbargrundstück in unterschiedlichen Baugebieten (WR 4 einerseits und dem WR 1 bzw. 2 andererseits) mit verschiedenen Nutzungsmaßen liegen (vgl. hierzu BayVGH, B.v. 1.8.2016 – 15 CS 16.1106 – juris Rn. 17 m.w.N.; B.v. 19.11.2015 – 1 CS 15.2108 – juris Rn. 4) – wobei die als Planzeichen verwendete „Perlschnur“ ausweislich der Bebauungsplanlegende nur als „Grenze der unterschiedlichen Nutzung“ anzusehen ist – und Anhaltspunkte dafür fehlen, dass die Festsetzungen zum Maß der baulichen Nutzung, der überbaubaren Grundstücksfläche oder der Dachform nach dem Willen der Gemeinde als Planungsträgerin einem gebietsübergreifenden Austauschverhältnis dienen sollten. Eine unzureichende Berücksichtigung der nachbarlichen Interessen der Klägerin ist nicht erkennbar (siehe nachstehend 1.2.).
59
1.1. Die in Aussicht gestellten Befreiungen beziehen sich auf Festsetzungen des Maßes der baulichen Nutzung (Geschossigkeit, Grund- und Geschossflächenzahl, Fragen 1 bis 3), der überbaubaren Grundstücksfläche (Frage 4) und zur Errichtung einer Gemeinschaftstiefgarage (Frage 5), die allesamt grundsätzlich nicht drittschützend sind (vgl. zum Maß der baulichen Nutzung: BVerwG, B.v. 11.6.2019 – 4 B 5/19 – juris Rn. 4; B.v. 23.6.1995 – 4 B 52/95 – juris Rn. 4; BayVGH, B.v. 11.08.2021 – 15 CS 21.1775 – juris Rn. 12; B.v. 7.1.2014 – 2 ZB 12.1787 – juris Rn. 5; U.v. 19.3.2013 – 2 B 13.99 – juris Rn. 27 m.w.N.; zur überbaubaren Grundstücksfläche: BVerwG, B.v. 11.6.2019 – 4 B 5/19 – juris Rn. 4; B.v. 13.12.2016 – 4 B 29/16 – juris Rn. 5; BayVGH, B.v. 24.3.2009 – 14 CS 08.3017 – juris Rn. 34; B.v. 23.11.2015 – 1 CS 15.2207 – juris Rn. 8; zu Gemeinschaftstiefgaragen: Hager in: Schlotterbeck/Hager/Busch/Gammerl, Landesbauordnung Baden-Württemberg, 8. Auflage 2020, Sechster Teil, § 40 D Rn. 15).
60
Dem Ortsgesetzgeber steht es allerdings grundsätzlich frei, eine Festsetzung statt ausschließlich aus städtebaulichen Gründen auch zum Schutze Dritter zu treffen und er darf dies regelmäßig selbst und ohne Bindung an das Eigentumsrecht des Nachbarn entscheiden (BVerwG, U. v. 16.09.1993 – 4 C 28.91 – juris Rn. 11; U.v. 9.8.2018 – 4 C 7.17 – juris Rn. 17; BayVGH, B.v. 11.08.2021 – 15 CS 21.1775 – juris Rn. 13; zur überbaubaren Grundstücksfläche: BayVGH, B.v. 7.10.2019 – 1 CS 19.1499 – juris Rn. 17; B.v. 5.8.2019 – 9 ZB 16.1276 – juris Rn. 5; zu anderen, nicht die Art der baulichen Nutzung betreffenden Festsetzungen: BayVGH, B.v. 24.7.2020 – 15 CS 20.1332 – juris Rn. 23). Von einer neben diese Ordnungsfunktion tretenden nachbarschützenden Wirkung einer Festsetzung ist ausnahmsweise dann auszugehen, wenn konkrete Anhaltspunkte für einen entsprechenden planerischen Willen erkennbar sind (vgl. BVerwG, U.v. 9.8.2018 – 4 C 7.17 – juris Rn. 14; BayVGH, B.v. 11.08.2021 – 15 CS 21.1775 – juris Rn. 13; B.v. 7.1.2014 – 2 ZB 12.1787 – juris Rn. 5). Maßgebend ist, ob die Festsetzung nach dem Willen des Plangebers ausschließlich aus städtebaulichen Gründen getroffen worden ist oder (zumindest auch) einem nachbarlichen Interessenausgleich im Sinne eines Austauschverhältnisses dienen soll (vgl. BayVGH, B.v. 15.6.2021 – 9 CS 21.817 – juris Rn. 17; B.v. 28.5.2014 – 9 CS 14.84 – juris Rn. 17; B.v. 29.7.2014 – 9 CS 14.1171 – juris Rn. 15; B.v. 12.7.2016 – 15 ZB 14.1108 – juris Rn. 11; OVG RhPf, B.v. 1.8.2016 – 8 A 10264/16 – juris Rn. 6).
61
Ob und inwieweit eine Norm des Bauplanungsrechts betroffenen Nachbarn Abwehrrechte einräumt, ist dabei anhand von Inhalt, Rechtsnatur und Schutzzweck der jeweiligen Festsetzung, ihrem Zusammenhang mit den anderen Regelungen des Plans, der Planbegründung oder den Akten über die Aufstellung des Bebauungsplans im konkreten Einzelfall im Wege der Auslegung zu ermitteln, wobei sich ein entsprechender Wille unmittelbar aus dem Bebauungsplan selbst (etwa kraft ausdrücklicher Regelung von Drittschutz), aus seiner Begründung, aus sonstigen Vorgängen im Zusammenhang mit der Planaufstellung oder aus einer wertenden Beurteilung des Festsetzungszusammenhangs ergeben kann (BayVGH, B.v. 11.08.2021 – 15 CS 21.1775 – juris Rn. 13; B.v. 24.7.2020 – 15 CS 20.1332 – juris Rn. 23 m.w.N.; B. v. 18.6.2018 – 15 ZB 17.635 – juris Rn. 16; vgl. auch BVerwG, U.v. 19.9.1986 – 4 C 8.84 – juris Rn. 11; B.v. 19.10.1995 – 4 B 215.95 – juris Rn. 3; B.v. 13.12.2016 – 4 B 29.16 – juris Rn. 5; U.v. 9.8.2018 – 4 C 7.17 – juris Rn. 14; B.v. 11.6.2019 – 4 B 5.19 – juris Rn. 4; BayVGH, B.v. 21.5.2019 – 1 CS 19.474 – juris Rn. 4; B.v. 7.10.2019 – 1 CS 19.1499 – juris Rn. 17; B.v. 5.8.2019 – 9 ZB 16.1276 – juris Rn. 5 ff.; VGH BW, B.v. 12.2.2019 – 5 S. 2487 -juris Rn. 32; OVG SH, B.v. 12.5.2020 – 1 MB 9/20 – juris Rn. 7; OVG NW, B.v. 27.3.2020 – 10 A 1973/19 – juris Rn. 7 ff.). Auch die Reichweite der drittschützenden Wirkung einer Festsetzung muss sich mit hinreichender Deutlichkeit aus dem Inhalt der erlassenen Vorschrift oder aus den übrigen, objektiv erkennbaren Umständen ergeben.
62
Unter Anwendung dieser Grundsätze dienen die hier in Rede stehenden Festsetzungen des Bebauungsplans Nr. … dem Interesse der Allgemeinheit an einer nachhaltigen städtebaulichen Entwicklung und haben nicht auch den Zweck, die Rechte der Nachbarn, insbesondere der Klägerin, zu schützen. Es ergibt sich weder aus der Formulierung der Festsetzungen noch aus der Begründung des Bebauungsplans Nr. 1163 der eindeutig erkennbare Wille der Beklagten, den betroffenen Festsetzungen dritt- bzw. nachbarschützende Wirkung zuzuschreiben (siehe hierzu nachfolgend 1.1.1.). Auch die sog. „Wannsee-Entscheidung“ des Bundesverwaltungsgerichts (U.v. 9.8.2018 – 4 C 7/17 – BVerwGE 162, 363, juris) führt nicht zu einer anderen Beurteilung (siehe nachfolgend 1.1.2.). Nicht entscheidungserheblich ist hingegen, ob das Vorhaben nur nach einer entsprechenden Bebauungsplanänderung hätte zugelassen werden dürfen oder nicht. Selbst wenn ein Planungserfordernis (§ 1 Abs. 3 Satz 1, Abs. 8 BauGB) bestanden haben sollte, eine Bebauungsplanänderung mithin notwendig gewesen wäre und die Widersprüche zum geltenden Bebauungsplan nicht über das Instrument der Befreiung hätten ausgeräumt werden können (und dürfen), würde die Klägerin hierdurch nicht in ihren Rechten verletzt (vgl. BVerwG, B.v. 3.8.1982 – 4 B 145/82 – juris Rn. 4 ff.; U.v. 10.12.1982 – 4 C 49/79 – juris Rn. 15 f.; B.v. 28.7.1994 – 4 B 94/94 – juris Rn. 4 ff.; B.v. 24.4.1997 – 4 B 65/97 – juris Rn. 2f.; OVG NRW, B.v. 17.2.2011 – 7 B 1803/10 – juris Rn. 7 ff.).
63
1.1.1. Vorliegend lassen sich weder unmittelbar dem Bebauungsplan selbst (Planzeichnung und textliche Festsetzungen) noch dessen Begründung Anhaltspunkte dafür entnehmen, dass die Vorgaben zur Zahl der Vollgeschosse, zur Grund- und Geschossflächenzahl, zur Gemeinschaftstiefgarage sowie hinsichtlich der Bauraumfestsetzung nach dem eindeutig erkennbaren Willen der Beklagten nicht nur dem Interesse der Allgemeinheit an einer nachhaltigen städtebaulichen Entwicklung – hier in Form einer kleinteiligeren Bebauung im Geviertsinnern, der Schaffung großer Freiflächen für die Grünflächennutzung und der Auflockerung der baulichen Nutzung –, sondern darüber hinausgehend auch dem Zweck dienen sollten, die Rechte der Nachbarn zu schützen.
64
Soweit die Klägerin sich zur Begründung ihrer Auffassung auf die „Entstehungsgeschichte“ des Bebauungsplans Nr. … bezieht, dessen Erlass ausweislich der Planbegründung auf die Initiative der damaligen Grundstückseigentümer, die Eheleute Fischer, zurückgegangen ist, ergibt sich hieraus keine andere Beurteilung. In der Planbegründung werden nicht nur Anlass und Grund der Bebauungsplanänderung aufgezeigt, sondern auch die damit von der Plangeberin und den damaligen Grundstückseigentümern verfolgten – städtebaulichen – Zielsetzungen zum Ausdruck gebracht. Dabei ist zunächst festzustellen, dass die Grundstückseigentümer nicht nur Eigentümer des Baugrundstücks, sondern zum damaligen Zeitpunkt auch der Nachbargrundstücke waren (siehe Bebauungsplanbegründung, S. 4 des von der Beklagten vorgelegten Aktenkonvoluts, zweiter Absatz). Die Bebauungsplanbegründung führt hierzu aus:
65
„Am … … 1973 haben die Eheleute … (Eigentümer der Flurstücke …, …17, 23, 24, 25 und 26) beantragt, die I*straße wieder aufzuheben und die abgetretene Straßenfläche wieder an sie zurückzugeben. Als Begründung dafür wurde vorgebracht, daß sie nicht die Absicht hätten, das ihnen nach dem Bebauungsplan Nr. 389 zustehende Baurecht auf ihren Grundstücken voll auszunutzen, so daß auch für den Fortbestand der I. …straße keine Notwendigkeit mehr bestünde. Vielmehr beabsichtigen sie, bis auf eine Bebauung südlich der Spielmannsauer Straße und zwei weitere kleinere Gebäude, auf das nicht ausgeschöpfte Baurecht entschädigungslos zu verzichten und dafür große Freiflächen für eine private Grünflächennutzung zu schaffen. (…) Daraus ergibt sich, daß die Grundeigentümer auf ca. 1.600 qm Geschoßfläche (ca. 1/3) der zulässigen Nutzung verzichten, so daß aufgrund der sich hieraus ergebenden Auflockerung und beabsichtigten baulichen Entwicklung ein öffentliches Interesse an diesem Bebauungsplan besteht.“
66
Hieraus wird deutlich, dass mit der Bebauungsplanänderung nicht der Zweck verfolgt werden sollte, durch eine Reduzierung des Nutzungsmaßes Rücksicht auf die bereits vorhandene oder künftige (Nachbar-)Bebauung zu nehmen, sondern Anlass und Ziel der Planung vielmehr der Wunsch nach einer aufgelockerten, kleinteiligeren Bebauung im Geviertsinnern und einer damit einhergehenden Schaffung von Freiflächen für die private Grünflächennutzung war. Diese Zielsetzungen sind jedoch ausschließlich städtebaulicher Art. 
67
Ein neben diese städtebauliche Intention tretender Drittschutz lässt sich auch nicht aus der in der Planbegründung ebenfalls getroffenen Aussage ableiten, dass „(D)[d]ie Bauraumsituierung, die Höhenentwicklung und die Dachformen im vorliegenden Bebauungsplan (berücksichtigen) die vorhandene Bebauung auf den Baugrundstücken und in der Umgebung [berücksichtigen].“ Hierdurch kommt nur zum Ausdruck, dass bei Erlass der Teiländerung für die bereits bebauten Grundstücke ein Nutzungsmaß festgesetzt wurde, welches der Nutzungsdichte nach dem bereits vorhandenen Baubestand (WR 2 und 1) oder dem Bebauungsplan (WR 3) entsprach (vgl. auch Begründung S. 4, letzter Absatz).
68
Lässt sich die drittschützende Zweckbestimmung nicht hinreichend erkennen, ist eine nachbarschaftsschützende Wirkung abzulehnen (BayVGH, B.v. 16.3.2021 – 15 CS 21.545 – juris Rn. 59; VG Würzburg U.v. 31.01.2017 – W 4 K 16.599 – juris Rn. 25). Günstige Auswirkungen einer Festsetzung auf die Nachbargrundstücke reichen zur Annahme eines Nachbarschutzes ebenso wenig aus (vgl. BayVGH, B.v. 30.6.2009 – 1 ZB 07.3058 juris Rn. 29; B.v. 23.11.2015 – 1 CS 15.2207 – juris Rn. 8).
69
1.1.2. Eine andere Beurteilung ergibt sich schließlich auch nicht bei Berücksichtigung der Rechtsprechung des Bundesverwaltungsgerichts („Wannsee-Entscheidung“) zur Möglichkeit einer nachträglichen subjektiv-rechtlichen bzw. nachbarschützenden „Aufladung“ von Festsetzungen eines Bebauungsplans, die nicht die Art der baulichen Nutzung betreffen (höchstrichterlich entschieden hinsichtlich des Maßes der baulichen Nutzung, vgl. BVerwG, U.v. 9.8.2018 – 4 C 7.17 – juris). Zum einen ist die mit dieser Rechtsprechung für möglich erachtete Ermittlung eines „objektivierten“ planerischen Willens nur bei (übergeleiteten) Bebauungsplänen aus einer Zeit vor dem Inkrafttreten des Bundesbaugesetzes 1960 möglich, der hier nicht vorliegt (vgl. BayVGH, B.v. 11.08.2021 – 15 CS 21.1775 – juris Rn. 17; vgl. auch B.v. 24.7.2020 – 15 CS 20.1332 – juris Rn. 26 m.w.N.). Zum anderen ist auch dann eine drittschützende Wirkung von Festsetzungen zum Maß der baulichen Nutzung nur ausnahmsweise anzunehmen, wenn durch Auslegung des Bebauungsplans ein wechselseitiges Austauschverhältnis im Hinblick auf das Maß der baulichen Nutzung zu ermitteln ist (vgl. BayVGH, B. v. 22.6.2020 – 2 CS 20.1085 – n.v. Rn. 4). Dies ist hier nach dem vorstehend Ausgeführten gerade nicht der Fall.
70
1.2. Damit kommt es für die Beurteilung der Erfolgsaussichten der Klage nicht darauf an, ob die der Beigeladenen erteilten Befreiungen gemäß § 31 Abs. 2 BauGB (objektiv) rechtmäßig erteilt wurden, die Befreiungen vollständig sind oder bei der Erteilung der Befreiungen eine ermessensfehlerfreie Entscheidung getroffen wurde (BayVGH, B.v. 11.8.2021 – 15 CS 21.1775 – juris Rn. 21). Die Klägerin hat über den Anspruch auf Würdigung ihrer nachbarlichen Interessen hinaus keinen umfassenden Anspruch auf eine ermessensfehlerfreie Entscheidung der Baugenehmigungsbehörde. Alle übrigen denkbaren Fehler einer Befreiung machen diese zwar möglicherweise objektiv rechtswidrig, vermitteln dem Nachbarn aber keinen Abwehranspruch, weil seine eigenen Rechte dadurch nicht berührt werden (vgl. BVerwG, B.v. 8.7.1998 – 4 B 64/98 – juris Rn. 5; OVG NW, B.v. 10.9.2018 – 10 B 1228/18 – juris Rn. 10). Ein Abwehranspruch des Nachbarn besteht nur dann, wenn die Behörde bei ihrer Ermessensentscheidung über die Befreiung nicht die gebotene Rücksicht auf die Interessen des Nachbarn genommen hat, wobei hier nur materielle Nachbarinteressen eine Rolle spielen (vgl. BVerwG, B.v. 17.11.2015 – 4 B 35/15 – juris Rn. 5). Der Nachbarschutz richtet sich insoweit nach den Grundsätzen des bauplanungsrechtlichen Gebots der Rücksichtnahme, das aufgrund der gemäß § 31 Abs. 2 BauGB gebotenen „Würdigung nachbarlicher Interessen“ Eingang in die bauplanungsrechtliche Prüfung findet. Demnach werden Nachbarrechte nur verletzt, wenn der Nachbar durch das Vorhaben infolge der erteilten Befreiung unzumutbar beeinträchtigt wird (vgl. BVerwG, U.v. 19.9.1986 – 4 C 8/84 – juris Rn. 17; B.v. 8.7.1998 – 4 B 64.98 – juris Rn. 5 f.; U.v. 9.8.2018 – 4 C 7.17 – juris Rn. 12; BayVGH, B.v. 5.9.2016 – 15 CS 16.1536 – juris Rn. 25 m.w.N.; B.v. 18.12.2017 – 9 CS 17.345 – juris Rn. 15).
71
Inhaltlich zielt das Gebot der Rücksichtnahme darauf ab, Spannungen und Störungen, die durch unverträgliche Grundstücksnutzungen entstehen, möglichst zu vermeiden. Welche Anforderungen das Gebot der Rücksichtnahme begründet, hängt wesentlich von den jeweiligen Umständen des Einzelfalles ab. Für eine sachgerechte Bewertung des Einzelfalles kommt es wesentlich auf eine Abwägung zwischen dem, was einerseits dem Rücksichtnahmebegünstigten und andererseits dem Rücksichtnahmeverpflichteten nach Lage der Dinge zumutbar ist, an (BVerwG, U.v. 18.11.2004 – 4 C 1.04 – juris, Rn. 22; U.v. 29.11.2012 – 4 C 8.11 – juris Rn. 16; BayVGH, B.v. 12.9.2013 – 2 CS 13.1351 – juris Rn. 4). Bedeutsam ist ferner, inwieweit derjenige, der sich gegen das Vorhaben wendet, eine rechtlich geschützte wehrfähige Position innehat (BVerwG, B.v. 6.12.1996 – 4 B 215.96 – juris Rn. 9). Eine Rechtsverletzung ist erst dann zu bejahen, wenn von dem Vorhaben eine unzumutbare Beeinträchtigung ausgeht (BayVGH, B.v. 22.6.2011 – 15 CS 11.1101 – juris Rn. 17).
72
Vor diesem Hintergrund wird deutlich, dass auch aus dem Rücksichtnahmegebot kein Recht des Nachbarn abzuleiten ist, dass in seiner Nachbarschaft nur objektiv rechtmäßige Bauvorhaben entstehen (vgl. BayVGH, B.v. 13.3.2014 – 15 ZB 13.1017 – juris Rn. 11; BayVGH, B.v. 13.3.2014 – 15 ZB 13.1017 – juris Rn. 11; B.v. 20.3.2018 – 15 CS 17.2523 – juris Rn. 26). Das Rücksichtnahmegebot legt dem Bauherrn zudem auch keine Pflicht auf, generell die für den Nachbarn am wenigsten beeinträchtigende Alternative für seine Bauabsicht zu wählen (BVerwG, B.v. 26.6.1997 – 4 B 97/97 – juris Rn. 6). Das Gebot der Rücksichtnahme gibt den Nachbarn schließlich auch nicht das Recht, von jeglicher Beeinträchtigung der Licht- und Luftverhältnisse oder der Verschlechterung der Sichtachsen von seinem Grundstück aus verschont zu bleiben. Denn eine Rechtsverletzung ist erst dann zu bejahen, wenn von dem Vorhaben eine unzumutbare Beeinträchtigung ausgeht (vgl. BayVGH, B.v. 22.6.2011 – 15 CS 11.1101 – juris Rn. 17; B.v. 23.4.2014 – 9 CS 14.222 – juris Rn. 12; B.v. 7.2.2012 – 15 CE 11.2865 – juris Rn. 14; B.v. 30.9.2015 – 9 CS 15.1115 – juris Rn. 14; B.v. 3.6.2016 – 1 CS 16.747 – juris Rn. 7).
73
Eine unzumutbare Beeinträchtigung zulasten der Nachbargrundstücke ist vorliegend nicht ansatzweise ersichtlich. Im Gegenteil wird der im Rahmen des Rücksichtnahmegebots notwendige Interessenausgleich zwischen hinzutretender und vorhandener Bebauung durch das Vorhaben gewahrt.
74
Ein Verstoß gegen das bauplanungsrechtliche Gebot der Rücksichtnahme ergibt sich insbesondere nicht bereits aus der Anzahl an in Aussicht gestellten Befreiungen. Entscheidend ist vielmehr, ob aufgrund der Belastungswirkungen, die aus den Befreiungen – einzeln und in der Gesamtwirkung – folgen, eine unzumutbare Betroffenheit des Nachbarn resultiert (BayVGH, B.v. 6.3.2007 – 1 CS 06.2764 – juris Rn. 32 f.; B.v. 11.8.2021 – 15 CS 21.1775 – juris Rn. 24). Dies ist jedoch hier nicht ersichtlich.
75
1.2.1. Durch die in Aussicht gestellten Befreiungen ergibt sich keine abriegelnde oder erdrückende Wirkung auf die Nachbargrundstücke FlNrn. …17 und …35 der Gemarkung …
76
Zwar ist in der Rechtsprechung anerkannt, dass eine Verletzung des Rücksichtnahmegebots insbesondere dann in Betracht kommt, wenn durch die Verwirklichung des genehmigten Vorhabens aufgrund seiner Höhe bzw. seines Volumens ein in der unmittelbaren Nachbarschaft befindliches Wohngebäude „eingemauert“ oder „erdrückt“ würde (vgl. BVerwG, U.v. 13.3.1981 – 4 C 1/78 – juris Rn. 38; U.v. 23.5.1986 – 4 C 34/85 – juris Rn. 15; BayVGH, B.v. 5.9.2016 – 15 CS 16.1536 – juris Rn. 28; B.v. 10.3.2018 – 15 CS 17.2523 – juris Rn. 27). Hauptkriterien bei der Beurteilung einer „erdrückenden“ bzw. „abriegelnden“ Wirkung sind die Höhe des Bauvorhabens und seine Länge sowie die Distanz der baulichen Anlage in Relation zur Nachbarbebauung (vgl. BayVGH, B.v. 5.12.2012 – 2 CS 12.2290 – juris Rn. 9; B.v. 10.3.2018 – 15 CS 17.2523 – juris Rn. 27). Für die Annahme einer „erdrückenden“ Wirkung eines Nachbargebäudes besteht jedoch grundsätzlich schon dann kein Raum, wenn dessen Baukörper nicht erheblich höher ist als der des betroffenen Gebäudes (vgl. BayVGH, B.v. 5.9.2016 – 15 CS 16.1536 – juris Rn. 30).
77
Dies berücksichtigend, ist schon angesichts der vorliegenden Abstände, aber auch aufgrund der vergleichbaren Höhenverhältnisse des Vorhabens und der Nachbarbebauung nicht ersichtlich, inwiefern die engen Voraussetzungen, unter denen nach der Rechtsprechung eine gegen das Rücksichtnahmegebot verstoßende „abriegelnde“ bzw. „erdrückende“ Wirkung anzunehmen ist, vorliegen könnten, v.a. wenn man die Fälle in Blick nimmt, in denen die Rechtsprechung das Vorliegen einer „erdrückenden“ bzw. „abriegelnden“ Wirkung bejaht bzw. ebenfalls verneint hat (vgl. z.B. BVerwG, U.v. 13.3.1981 – 4 C 1.78 – juris Rn. 32 ff.: elf- bzw. zwölfgeschossiges Gebäude in naher Entfernung zu zweieinhalbgeschossigem Wohnhaus; BVerwG, U.v. 23.5.1986 – 4 C 34.85 – juris Rn. 15: grenznahe 11,5 m hohe und 13,31 m lange, wie eine „riesenhafte metallische Mauer“ wirkende Siloanlage bei einem sieben Meter breiten Nachbargrundstück; BayVGH, B.v. 5.2.2015 – 2 CS 14.2456 – juris Rn. 33: keine erdrückende Wirkung eines ca. 160 m langen Baukörpers mit einer Höhe von 6,36 m bis 10,50 m und einem Abstand von 13 – 16 m zum Gebäude des Nachbarn; BayVGH, B.v. 4.7.2016 – 15 ZB 14.891 – juris Rn. 9: keine erdrückende Wirkung eines 33,3 m langen Baukörpers mit einer maximalen Höhe von 11 m und einem Abstand von mindestens 15 m zur Baugrenze auf dem Nachbargrundstück).
78
1.2.2. Die durch das Vorhaben zu erwartenden Auswirkungen auf die Belichtung der Nachbargrundstücke erreichen nicht ansatzweise ein unzumutbares Ausmaß. Ein Verschattungseffekt als typische Folge der Bebauung ist insbesondere in innergemeindlichen bzw. innerstädtischen Lagen, bis zu einer im Einzelfall zu bestimmenden Unzumutbarkeitsgrenze in der Regel nicht rücksichtslos und daher hinzunehmen (vgl. BayVGH, B.v. 10.12.2008 – 1 CS 08.2770 – juris Rn. 24; B.v. 20.3.2018 – 15 CS 17.2523 – juris Rn. 28 m.w.N.; OVG Bremen, B.v. 19.3.2015 – 1 B 19/15 – juris Rn. 19; SächsOVG, B.v. 4.8.2014 – 1 B 56/14 – juris Rn. 19). Dass die Unzumutbarkeitsgrenze bei der gebotenen Einzelfallbetrachtung aufgrund einer besonderen Belastungswirkung im konkreten Fall überschritten sein könnte, ist vorliegend nicht erkennbar. Was die in Aussicht gestellte Befreiung von der festgesetzten Baugrenze (Bauraum) anbelangt, ist zudem darauf hinzuweisen, dass der Bereich, in welchem diese überschritten wird, an der Süd-Ost-Ecke – und damit an der von den Nachbargrundstücken abgewandten Seite des Bauraums, gelegen ist.
79
1.2.3. Unzumutbare Beeinträchtigungen, insbesondere des Nachbargrundstücks S.straße 37, 39 gehen auch nicht mit der – zudem an der I. …straße gelegenen – Tiefgaragenzufahrt des Vorhabens einher. Darüber hinaus sind nach § 12 Abs. 2 BauNVO in Wohngebieten Stellplätze und Garagen für den durch die zugelassene Nutzung notwendigen Bedarf zulässig. Die Vorschrift begründet für den Regelfall auch hinsichtlich der durch die Nutzung verursachten Lärmimmissionen eine Vermutung der Nachbarverträglichkeit. Der Grundstücksnachbar hat deshalb die Errichtung notwendiger Garagen und Stellplätze für ein Bauvorhaben und die mit ihrem Betrieb üblicherweise verbundenen Immissionen der zu- und abfahrenden Kraftfahrzeuge des Anwohnerverkehrs grundsätzlich als sozialadäquat hinzunehmen (vgl. BVerwG, B.v. 20.3.2003 – 4 B 59.02 -juris Rn. 6 ff.; BayVGH, B.v. 29.1.2016 – 15 ZB 13.1759 – juris Rn. 23 m.w.N.). Es bestehen keine Anhaltspunkte dafür, dass rücksichtslose Immissionen zu erwarten sind. Ein Sonderfall, der eine Ausnahme von diesem Grundsatz erforderte, ist vorliegend nicht gegeben.
80
2. Nachbarrechte der Klägerin werden auch durch die positive Beantwortung der Vorbescheidsfragen 7 (Nachweis der nach der Fahrradabstellsatzung erforderlichen Fahrradabstellplätze auf dem Grundstück FlNr. …35, vgl. Art. 81 Abs. 1 Nr. 4 BayBO, § 2 Abs. 3 FabS) und 8 (Nachweis eines Kinderspielplatzes auf dem Grundstück FlNr. …17) nicht verletzt.
81
Soweit die Klägerin vorträgt, dass diese Nutzungen vom Umfang der Grunddienstbarkeiten nicht gedeckt seien, ist darauf hinzuweisen, dass ein Vorbescheid unbeschadet privater Rechte Dritter ergeht (Art. 71 Satz 4, Art. 68 Abs. 4 BayBO). Es bedarf auch keiner Klärung bzw. Entscheidung, ob es sich um eine zulässige Vorbescheidsfrage handelt oder die Beigeladene ein Sachbescheidungsinteresse an der Beantwortung der Fragen 7 und 8 hatte. Weder die uneingeschränkte Beantwortung einer unzulässigen Frage als solche noch ein etwaiges fehlendes Sachbescheidungsinteresse führen mangels drittschützender Funktion zu einer Verletzung von Rechten Dritter (vgl. VG München, U.v.30.9.2019 – M 8 K 18.6099 – juris Rn. 50; zum Sachbescheidungsinteresse: BayVGH, U.v. 25.11.2010 – 9 B 10.531 – juris Rn. 19).
82
3. Hinsichtlich der Beantwortung von Frage 9 – Fällung von Bestandsbäumen – ist allgemein anerkannt, dass die Vorschriften einer naturschutzrechtlichen Baumschutzverordnung nicht nachbarschützend sind, da sie ausschließlich – wie sich vorliegend auch aus § 2 der Baumschutzverordnung der Beklagten ergibt – den öffentlichen Belangen der Durchgrünung und Ortsbildgestaltung dienen (BayVGH, B.v. 15.3.2004 – 2 CS 04.581 – juris Rn. 2; B.v. 18.6.2009 – 14 ZB 09.656 – juris Rn. 6 m.w.N.; B.v. 17.11.2014 – 14 ZB 14.962 – juris Rn. 4 f.; VG München, B.v. 10.3.2005 – M 8 SN 05.269 – juris Rn. 18; B.v. 25.3.2019 – M 8 SN 19.151 – juris Rn. 54).
III.
83
Die Kostenentscheidung beruht auf § 154 Abs. 1 VwGO.
84
Es entspricht der Billigkeit, der Klägerin auch die außergerichtlichen Kosten der Beigeladenen aufzuerlegen, da diese Sachanträge gestellt und sich dadurch einem Kostenrisiko ausgesetzt hat, § 154 Abs. 3, § 162 Abs. 3 VwGO.
85
Die Entscheidung über die vorläufige Vollstreckbarkeit folgt aus § 167 VwGO i.V.m. §§ 708 ff. ZPO.