Inhalt

VG München, Urteil v. 02.05.2022 – M 8 K 20.932
Titel:

Zur grenzständigen Bebauung in Form einer Hausgruppe

Normenketten:
BauGB § 30 Abs. 3, § 34 Abs. 1
BauNVO § 22
BayBO Art. 6 Abs. 1
Leitsätze:
1. Eine Grunddienstbarkeit kann nur dann einen materiell-rechtlichen Verzicht auf öffentlich-rechtliche Nachbarrechte begründen, wenn sie sich auf ein (künftiges) konkret bezeichnetes Vorhaben bezieht. (Rn. 14) (redaktioneller Leitsatz)
2. Die Grundsätze der Doppelhausrechtsprechung sind auch auf eine Reihenhausbebauung anzuwenden, wenn die Häuserzeile im Bestand als bauliche Einheit wirkt und die Einzelhäuser quantitativ sowie qualitativ in wechselseitig verträglicher und abgestimmter Weise aneinandergebaut sind. (Rn. 19) (redaktioneller Leitsatz)
Schlagworte:
Nachbarklage gegen Baugenehmigung, Anbau an ein bestehendes Reihenhaus (Unzulässiger) Grenzanbau bei einer Hausgruppe, Doppelhausrechtsprechung, Rücksichtnahmegebot (verletzt), Nachbarklage, Baugenehmigung, Anbau, Grenzanbau, Hausgruppe, Rücksichtnahmegebot, Doppelhaus, Häuserzeile, Reihenhaus, Abstandsflächen, Einfügen
Fundstelle:
BeckRS 2022, 11116

Tenor

I. Der Bescheid der Beklagten vom 31. Januar 2020 (Az.: …) wird aufgehoben.
II. Die Beklagte hat die Kosten des Verfahrens zu tragen. Die Beigeladene trägt ihre außergerichtlichen Kosten selbst.
III. Die Kostenentscheidung ist gegen Sicherheitsleistung in Höhe des vollstreckbaren Betrags vorläufig vollstreckbar.

Tatbestand

1
Der Kläger wendet sich als Nachbar gegen die der Beigeladenen erteilte Baugenehmigung vom 31. Januar 2020 für den Neubau eines Wohngebäudes auf den Grundstücken Fl.Nrn. … und … Gemarkung … … … (im Folgenden: Baugrundstück), das grenzständig im Anschluss an das Reihenhaus des Klägers angebaut werden soll.
2
Der Kläger ist Eigentümer des Grundstücks Fl.Nr. … Gemarkung … … …, H1.-Str. 6 (im Folgenden: Klägergrundstück), das östlich unmittelbar an das Grundstück Fl.Nr. … Gemarkung … … … angrenzt. Das Klägergrundstück ist derzeit mit einem Reihenhaus bebaut, das nach dem Ergebnis des gerichtlichen Augenscheins Teil einer Reihenhauszeile mit fünf Reihenhäusern ist. Das Reihenhaus verfügt über ein Erdgeschoss sowie ein 1. Obergeschoss, das Dachgeschoss ist nicht ausgebaut. Das Gebäude steht sowohl im Osten als auch im Westen auf der Grundstücksgrenze zu den angrenzenden Grundstücken. Das Baugrundstück und das Klägergrundstück liegen im Geltungsbereich des Baulinienplans Nr. … vom 27. Oktober 1955 und zum Teil im Geltungsbereich des Bebauungsplans Nr. … vom 15. Juni 1967, der die bereits im Baulinienplan Nr. … festgesetzte Baugrenze teilweise übernimmt.
3
Am 5. September 2019 (Eingangsdatum), geändert mit Antrag vom 8. November 2019 (Eingangsdatum), beantragte die Beigeladene die Erteilung einer Baugenehmigung für den Neubau einer Wohnanlage mit 22 Wohneinheiten und Tiefgarage auf dem Baugrundstück. Die Planung sieht die Errichtung eines unmittelbar an das Bestandsgebäude auf dem Klägergrundstück grenzständig anschließenden Baukörpers vor. Der geplante Baukörper soll an der Grundstücksgrenze zunächst mit der gleichen Firsthöhe und Gebäudebreite an das Bestandsgebäude auf dem Klägergrundstück anschließen. Beginnend ab der Grundstücksgrenze ist ein Walmdach vorgesehen, das nach Westen bis zu einer Gebäudehöhe von 9,40 m ansteigt. In dem unmittelbar an das Klägergrundstück anschließenden Gebäudeteil ist die Errichtung eines Erdgeschosses, eines 1. Obergeschosses sowie eines ausgebauten Dachgeschosses bei einer Dachneigung von 45° vorgesehen. Der an das Klägergrundstück anschließende Gebäudeteil geht Richtung Westen in einen größeren Nord-Süd ausgerichteten Baukörper mit einer Gesamtlänge von 31,50 m und einer Breite von 15,45 m über. Dieser soll über vier Geschosse verfügen. Neben dem Erdgeschoss und dem 1. Obergeschoss sind zwei Dachgeschossebenen geplant. Die Gesamthöhe des Baukörpers ist mit 11,30 m, die Wandhöhe mit 6,20 m angegeben. Das Gebäude des Klägers ist in den Plänen lediglich in den Ansichten schematisch dargestellt. Dessen Wandhöhe wird mit 6,06 m, die Firsthöhe mit 8,67 m angegeben.
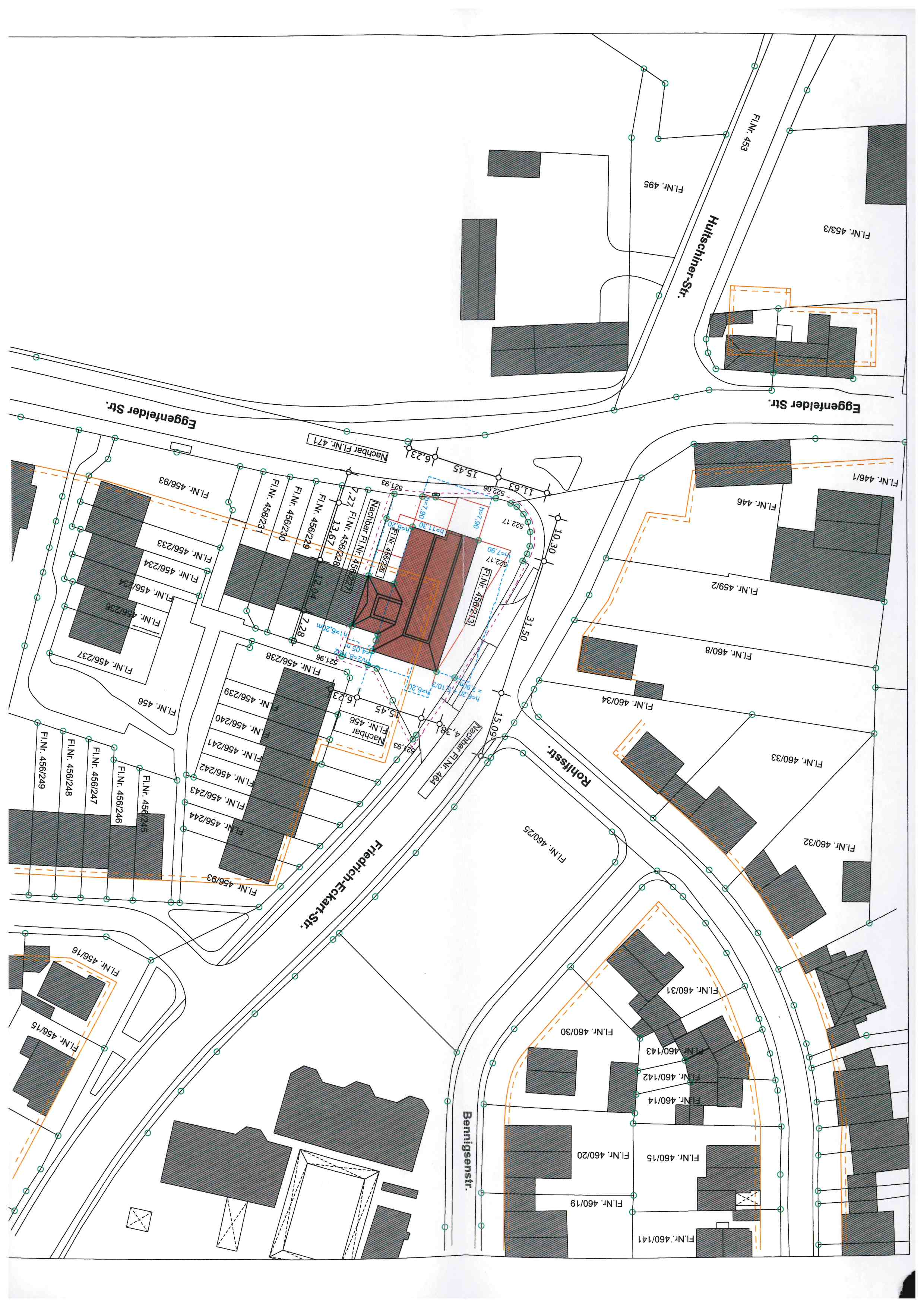
4
Zur Lage der Baukörper vergleiche folgenden Lageplan (aufgrund des Einscannens möglicherweise nicht mehr maßstabsgerecht):
5
Mit Bescheid vom 31. Januar 2020 genehmigte die Beklagte den Bauantrag vom 5. September 2019 nach Plan Nr. … mit Handeintragungen vom 8. November 2019. Neben anderen Abweichungen und Befreiungen wurde auch eine Befreiung wegen der Überschreitung der Baugrenze im Untergeschoss um ca. 360 m², im Erdgeschoss um ca. 277 m², im Obergeschoss um 277 m² und in den Dachgeschossen um ca. 442 m² erteilt. Im Rahmen der Nachbarwürdigung wurde ausgeführt, dass der Kläger den Eingabeplan nicht unterschrieben habe. Das Bauvorhaben entspreche den öffentlich-rechtlichen Vorschriften, die im bauaufsichtlichen Verfahren zu prüfen seien. Es bestehe die Möglichkeit, entsprechend der Rechtsbehelfsbelehrunggegen den Bescheid Klage einzulegen.
6
Mit Schriftsatz vom 2. März 2020 hat der Kläger Klage erhoben. Er beantragt,
7
die Baugenehmigung des Bauvorhabens H2.Straße 2, Fl.Nr. … und … Gemarkung … … … vom 31. Januar 2020 (Aktenzeichen: …) aufzuheben.
8
Die Baugenehmigung verstoße gegen Art. 6 BayBO, da die Abstandsflächen bei einem unmittelbaren Anbau an das Gebäude des Klägers nicht eingehalten würden. Das zulasten des Grundstücks des Klägers im Grundbuch eingetragene Anbaurecht zugunsten des Grundstücks Fl.Nr. … sei nicht wirksam entstanden und betreffe lediglich einen vormals geplanten Anbau eines weiteren Reihenhauses an die Hausgruppe. Ein Anbaurecht für ein Mehrfamilienhaus im streitgegenständlichen Umfang sei nie eingeräumt worden. Das Bauvorhaben verstoße gegen das bauplanungsrechtliche Gebot der Rücksichtnahme. Nach der Rechtsprechung des Bundesverwaltungsgerichts sei eine Hausgruppe in der offenen Bauweise planungsrechtlich zulässig, sofern die Gebäude derart zusammengebaut werden, dass sie einen Gesamtbaukörper bilden. Die Haushälften müssten in verträglicher und abgestimmter Weise aneinandergebaut werden. Eine Hausgruppe setze eine wechselseitige Verträglichkeit der Gebäude voraus. Das viergeschossige Wohnhaus mit 22 Wohnungen stelle einen Ausbruch aus der Häusergruppe dar. Die Homogenität und Einheitlichkeit der Reihenhauszeile würden komplett beseitigt werden.
9
Die Beigeladene stellte keinen Antrag. Zur Erwiderung auf das Klägervorbringen führte sie aus, dass sie berechtigt sei, ohne Einhaltung von Abstandsflächen an das Reihenhaus des Klägers anzubauen. Das Anbaurecht zugunsten des Grundstücks Fl.Nr. … sei wirksam bestellt worden. Ausweislich der Bestellungsurkunde sei geregelt, dass auf die Einhaltung der gesetzlich vorgeschriebenen Abstandsflächen verzichtet werde. Deshalb könne sich der Kläger nicht auf einen Abstandsflächenverstoß berufen. Das Gebot der Rücksichtnahme werde nicht verletzt. Das Gebot des Einfügens hinsichtlich des Maßes der baulichen Nutzung vermittle keinen Nachbarschutz. Das Wohnhaus mit 22 Wohnungen auf 4 Ebenen stelle keinen Ausbruch aus der Hausgruppe dar. Der Anbau erfolge zunächst profilgleich. Der Kläger könne vielleicht auf dem unmittelbar anschließenden Klägergrundstück einen profilgleichen Anbau erwarten, nicht jedoch auf dem Hauptgrundstück Fl.Nr. … Hinsichtlich des Hauptgebäudes auf Fl.Nr. … seien die Abstandsflächen eingehalten, weshalb das Gebot der Rücksichtnahme nicht verletzt sein könne. Es sei nicht zu erkennen, warum der Kläger einen Anspruch darauf haben solle, dass die Reihenhausbebauung an Ort und Stelle fortgesetzt werde bzw. darüber hinaus reichen müsse. Aufgrund des Anbaurechts habe der Kläger stets mit einem Anschluss an das Gebäude rechnen müssen.
10
Die Beklagte legte die Behördenakten vor, nahm jedoch nicht schriftsätzlich zum Verfahren Stellung. Ein Antrag wurde nicht gestellt.
11
Das Gericht hat Beweis erhoben durch Augenschein. Auf das Protokoll über den Augenschein und die mündliche Verhandlung vom 2. Mai 2022 wird verwiesen. Zum weiteren Vorbringen der Parteien und zu den übrigen Einzelheiten wird auf die beigezogenen Behördenakten sowie die Gerichtsakte Bezug genommen.

Entscheidungsgründe

12
Die zulässige (1.) Klage hat auch in der Sache Erfolg (2.).
13
1. Die Klage ist zulässig.
14
Der Kläger ist klagebefugt. Er kann als Eigentümer des unmittelbar an das Baugrundstück angrenzenden Klägergrundstücks geltend machen, durch das Vorhaben möglicherweise in eigenen Rechten verletzt zu sein (§ 42 Abs. 2 VwGO). Unabhängig davon, ob das mit der Urkunde des Notars Dr. H1. H1. vom 22. Dezember 1976 (URNr. …) in Form einer Grunddienstbarkeit zugunsten des Grundstücks Fl.Nr. … Gemarkung … … … bestellte Anbaurecht an das Klägergrundstück wirksam ist, kann darin jedenfalls kein Verzicht zulasten des Klägers auf seine subjektiv-öffentlichen Rechte gegenüber dem streitgegenständlichen Vorhaben gesehen werden. Ein materiell-rechtlicher Verzicht auf die öffentlich-rechtlichen Nachbarrechte kann nur dann angenommen werden, wenn sich dieser auf ein näher bestimmtes Bauvorhaben bezieht (BayVGH, B. v. 21.1.2009 - 9 CS 08.1330 u.a. - juris Rn. 10; B. v. 11.5.2020 - 9 CS 20.378 - juris Rn. 15 m.w.N.; Dirnberger in Busse/Kraus, Bayerische Bauordnung, Stand: September 2021, Art. 66 Rn. 149; Molodovsky/Famers/Waldmann, Bayerische Bauordnung, Stand: Februar 2022, Art. 66 Rn. 160). Ein privatrechtlicher Verzicht kann sich nur dann auf ein künftiges Vorhaben beziehen, sofern dieses konkret bezeichnet ist (Dirnberger in Busse/Kraus, Bayerische Bauordnung, Stand: September 2021, Art. 66 Rn. 170 -174). Ein solcher, hinreichend bestimmter Verzicht auf öffentlich-rechtliche Abwehrrechte des Nachbarn ist mit der bloßen Bestellung einer Grunddienstbarkeit zur Duldung eines Grenzanbaus nicht verbunden. Aus der Bestellungsurkunde ist nicht erkennbar, welchen Umfang der grenzständige Baukörper haben soll. Es fehlt jegliche Beschreibung des Vorhabens, das im Rahmen des Anbaurechts errichtet werden darf. Mithin kann auch im Fall der Wirksamkeit der Grunddienstbarkeit kein Verzicht auf die Geltendmachung (öffentlich-rechtlicher) nachbarlicher Abwehrrechte gegen das streitgegenständliche Vorhaben angenommen werden.
15
2. Die Klage hat auch in der Sache Erfolg.
16
Der Bescheid der Beklagten vom 31. Januar 2020 ist rechtswidrig und verletzt den Kläger in seinen Rechten (§ 113 Abs. 1 Satz 1 VwGO). Das Vorhaben, dessen bauplanungsrechtliche Zulässigkeit sich im Hinblick auf das vorhandene Bauliniengefüge nach § 30 Abs. 3 BauGB und im Übrigen nach § 34 BauGB richtet, verletzt den Kläger schützende Vorschriften des Bauplanungsrechts (2.1) und des Bauordnungsrechts (2.2), die im vereinfachten Genehmigungsverfahren nach Art. 59 Satz 1 Nr. 1 BayBO zu prüfen sind.
17
Dritte können sich gegen eine Baugenehmigung nur dann mit Aussicht auf Erfolg zur Wehr setzen, wenn die angefochtene Baugenehmigung rechtswidrig ist und diese Rechtswidrigkeit zumindest auch auf der Verletzung von Normen beruht, die gerade auch dem Schutz des betreffenden Nachbarn zu dienen bestimmt sind (vgl. § 113 Abs. 1 Satz 1 VwGO; BayVGH, B.v. 21.7.2020 - 2 ZB 17.1309 - juris Rn. 4; B.v. 24.3.2009 - 14 CS 08.3017 - juris Rn. 20). Es genügt daher nicht, wenn die Baugenehmigung gegen Rechtsvorschriften des öffentlichen Rechts verstößt, die nicht - auch nicht teilweise - dem Schutz der Eigentümer benachbarter Grundstücke zu dienen bestimmt sind. Dabei ist zudem zu beachten, dass ein Nachbar eine Baugenehmigung nur dann mit Erfolg anfechten kann, wenn die Genehmigung rechtswidrig ist und diese Rechtswidrigkeit sich aus einer Verletzung von Vorschriften ergibt, die im Baugenehmigungsverfahren zu prüfen waren, also die gerügte Rechtsverletzung Gegenstand des Prüfprogramms im einschlägigen Baugenehmigungsverfahren war (vgl. BayVGH, B.v. 24.3.2009 - 14 CS 08.3017 - juris Rn. 20; B.v. 8.8.2016 - 9 ZB 14.2808 - juris Rn. 9; B.v. 20.3.2018 - 15 CS 17.2523 - juris Rn. 23). Diese Voraussetzungen sind hier gegeben.
18
2.1 Die Baugenehmigung verstößt gegen das im vorliegenden Fall gem. § 30 Abs. 3 BauGB i.V.m. § 34 Abs. 1 Satz 1 BauGB im Begriff des „Einfügens“ enthaltene Rücksichtnahmegebot.
19
2.1.1 Bei der hier streitgegenständlichen Bebauung ist das Rücksichtnahmegebot in seiner besonderen Ausprägung der Grundsätze der sog. Doppelhausrechtsprechung des Bundesverwaltungsgerichts zu beachten, die auch in dem in offener Bauweise bebauten unbeplanten Innenbereich über das im Tatbestandsmerkmal des Einfügens in § 34 Abs. 1 BauGB grundsätzlich zur Anwendung kommen können (vgl. BVerwG, U.v. 5.12.2013 - 4 C 5.12 - juris Rn. 12). Die Grundsätze der Doppelhausrechtsprechung sind auch auf die hier anzutreffende Reihenhausbebauung anzuwenden, da die Häuserzeile, zu der das klägerische Anwesen gehört und an die das streitgegenständliche Vorhaben grenzständig angebaut werden soll, im Bestand als bauliche Einheit wirkt und die Einzelhäuser quantitativ sowie qualitativ in wechselseitig verträglicher und abgestimmter Weise aneinandergebaut sind (vgl. BVerwG, B.v. 19.3.2015 - 4 B 65.14 - juris Rn. 6; VG München, U.v. 12.10.2020 - M 8 K 18.3817 - juris Rn. 56). Das besondere Nachbarschaftsverhältnis mit dem Erfordernis eines gegenseitigen Interessensausgleichs gilt auch für die benachbarten Häuser einer Hausgruppe i.S.v. § 22 Abs. 2 Satz 1 BauNVO.
20
Ist ein unbeplanter Innenbereich in offener Bauweise bebaut, weil dort nur Einzelhäuser, Doppelhäuser und Hausgruppen im Sinn von § 22 Abs. 2 BauNVO den maßgeblichen Rahmen bilden, fügt sich ein grenzständiges Vorhaben im Sinn von § 34 Abs. 1 BauGB grundsätzlich nicht nach der Bauweise ein, wenn es unter Beseitigung eines bestehenden Doppelhauses grenzständig errichtet wird, ohne mit dem verbleibenden Gebäudeteil ein Doppelhaus zu bilden (vgl. BVerwG, U.v. 19.3.2015 - 4 C 12.14 - BauR 2015, 1309; U.v. 5.12.2013 - 4 C 5.12 - juris). Nach der Rechtsprechung des Bundesverwaltungsgerichts setzt die Zulässigkeit einer Bebauung als Doppelhaus einen wechselseitigen Verzicht auf seitliche Grenzabstände an der gemeinsamen Grundstücksgrenze voraus. Danach bindet dieser Verzicht die benachbarten Grundeigentümer bauplanungsrechtlich in ein Verhältnis des gegenseitigen Interessensausgleichs ein, wodurch die Baufreiheit zugleich erweitert und beschränkt wird. Einerseits wird durch die Möglichkeit des Grenzanbaus die bauliche Nutzbarkeit der Grundstücke erhöht, was aber durch den Verlust seitlicher Grenzabstände an der gemeinsamen Grenze, die Freiflächen schaffen und dem Wohnfrieden dienen, erkauft wird (BVerwG, U.v. 5.12.2013 - 4 C 5.12 - juris Rn. 22 m.w.N.). Diese Interessenlage rechtfertigt es, dem Bauherrn eine Rücksichtnahmeverpflichtung aufzuerlegen, die eine grenzständige Bebauung ausschließt, wenn er den bisher durch das Doppelhaus gezogenen Rahmen überschreitet und der Doppelhauscharakter durch die Änderung entfällt.
21
Ein Doppelhaus im Sinn des § 22 Abs. 2 Satz 1 BauNVO ist eine bauliche Anlage, die dadurch entsteht, dass zwei Gebäude auf benachbarten Grundstücken durch Aneinanderbauen an der gemeinsamen Grundstücksgrenze zu einer Einheit zusammengefügt werden. Kein Doppelhaus bilden dagegen zwei Gebäude, die sich zwar an der gemeinsamen Grundstücksgrenze noch berühren, aber als zwei selbststände Baukörper erscheinen. Ein Doppelhaus verlangt ferner, dass die beiden Haushälften in wechselseitig verträglicher und abgestimmter Weise aneinandergebaut werden (BVerwG, U.v. 5.12.2013 - 4 C 5.12 - juris Rn. 13 m.w.N.). Demnach liegt eine bauliche Einheit vor, wenn die einzelnen Gebäude einen harmonischen Gesamtkörper bilden, der nicht den Eindruck eines einseitigen Grenzanbaus vermittelt. Voraussetzung ist insoweit zwar nicht, dass die einzelnen Häuser gleichzeitig und deckungsgleich errichtet werden müssen. Ein einheitlicher Gesamtbaukörper kann auch noch vorliegen, wenn z.B. aus gestalterischen Gründen die gemeinsame vordere und/oder rückwärtige Außenwand des einheitlichen Baukörpers durch kleine Vor- und Rücksprünge aufgelockert wird (BayVGH, U.v. 11.12.2014 - 2 BV 13.789 - juris Rn. 27 m.w.N.). Zu fordern ist jedoch, dass die einzelnen Gebäude zu einem wesentlichen Teil (quantitativ) und in wechselseitig verträglicher und harmonischer Weise (qualitativ) aneinandergebaut sind (BayVGH, U.v. 11.12.2014 a.a.O. m.w.N.). In quantitativer Hinsicht können bei der Beurteilung der Verträglichkeit des Aneinanderbauens insbesondere die Geschoßzahl, die Gebäudehöhe, die Bebauungstiefe und -breite sowie das durch diese Maße im Wesentlichen bestimmte oberirdische Brutto-Raumvolumen zu berücksichtigen sein. In qualitativer Hinsicht kommt es u.a. auch auf die Dachgestaltung und die sonstige Kubatur des Gebäudes an. Bei den quantitativen Kriterien ist eine mathematisch-prozentuale Festlegung nicht möglich, vielmehr ist eine Gesamtwürdigung des Einzelfalls anzustellen. Es ist qualitativ insbesondere die wechselseitig verträgliche Gestaltung des Gebäudes entscheidend, auf die umgebende Bebauung kommt es insoweit nicht an (vgl. BVerwG, U.v. 19.3.2015 - 4 C 12.14 - juris Rn. 14 ff.). Die beiden „Haushälften“ können auch zueinander versetzt oder gestaffelt an der Grenze errichtet werden, sie müssen jedoch zu einem wesentlichen Teil aneinandergebaut sein. Kein Doppelhaus entsteht danach, wenn ein Gebäude gegen das andere an der gemeinsamen Grundstücksgrenze so stark versetzt wird, dass sein vorderer oder rückwärtiger Versprung den Rahmen einer wechselseitigen Grenzbebauung überschreitet, den Eindruck eines einseitigen Grenzanbaus vermittelt und dadurch einen neuen Bodennutzungskonflikt auslöst.
22
2.1.2 Gemessen an diesen Grundsätzen liegt im Fall der Errichtung des von der Beigeladenen geplanten Neubaus kein einheitlicher Baukörper in Form einer Hausgruppe mehr vor. Eine harmonische Beziehung der Gebäude zueinander bestünde nicht mehr und das nachbarliche Austauschverhältnis würde aus dem Gleichgewicht gebracht. Die streitgegenständliche Planung lässt eine Abstimmung auf die bestehende Hausgruppe vollständig vermissen.
23
Dabei ist zunächst zu berücksichtigen, dass das als Gesamtvorhaben geplante Gebäude nicht in einen auf dem Grundstück Fl.Nr. … befindlichen Gebäudeteil und ein weiteres Gebäude auf Fl.Nr. … aufgeteilt werden kann. Dies muss schon deshalb gelten, da die Planung die Errichtung eines baulich und funktional einheitlichen Gebäudes vorsieht. Es besteht weder eine bauliche Zäsur zwischen dem auf dem Grundstück Fl.Nr. … und auf Fl.Nr. … errichteten Gebäudeteil noch lässt sich zwischen beiden Grundstücken hinsichtlich der Nutzung unterscheiden. Vielmehr überschreiten die im einzelnen geplanten Wohnungen innerhalb des Gebäudes die bisher bestehende Grundstücksgrenze. Die Planung geht zudem davon aus, dass die zwischen Fl.Nr. … und Fl.Nr. … derzeit bestehende Grundstücksgrenze aufgehoben wird, da die durch den auf Fl.Nr. … errichteten Teil des Baukörpers ausgelösten Abstandsflächen Richtung Osten auf dem angrenzenden Grundstück Fl.Nr. … dargestellt werden. Nicht zuletzt sieht die streitgegenständliche Genehmigung vom 31. Januar 2020 unter Auflage Nr. 3 vor, dass die vorgenannten Grundstücke zu einem Grundstück zu verschmelzen sind. Eine getrennte Betrachtung derselben bei Beurteilung der Rechtmäßigkeit der Baugenehmigung verbietet sich daher.
24
Der geplante Gesamtbaukörper ist weder quantitativ noch qualitativ mit der bestehenden Häusergruppe und dem Baukörper auf dem Klägergrundstück vergleichbar. Dieser Umstand ist bei Betrachtung der Pläne derart offensichtlich, dass es einer Beschreibung aller Maßfaktoren beider Baukörper nicht bedarf. Es sei nur darauf hingewiesen, dass die Geschossigkeit des geplanten Baukörpers das Doppelte dessen beträgt, was auf dem Klägergrundstück im Bestand vorhanden ist. Während die Planung die Errichtung von vier Geschossen vorsieht, verfügt der Bestandsbaukörper auf dem Klägergrundstück lediglich über ein Erdgeschoss sowie ein Obergeschoss. Die Gesamthöhe des geplanten Vorhabens beträgt 11,30 m, während das Gebäude auf dem Klägergrundstück nach den Planunterlagen im streitgegenständlichen Verfahren nur eine Firsthöhe von 8,67 m aufweist. Selbst in dem Bereich, in dem das geplante Gebäude direkt an das Anwesen des Klägers anschließt, ist es mit dem Bestand auf dem Klägergrundstück nicht in harmonischer Weise abgestimmt. Es orientiert sich lediglich in der Gebäudebreite an der grenzständigen Bestandsbebauung und gibt in den Plänen vor, dass ein „profilgleicher Anschluss“ erfolge (vergleiche genehmigter Plan „Ansichten“, Ansicht Süd). Tatsächlich ist schon in dem Teil des Gebäudes, der auf Fl.Nr. … errichtet werden soll, eine dreigeschossige Bebauung vorgesehen, die mit der Geschossigkeit des Bestandsgebäudes auf dem Klägergrundstück nicht vergleichbar ist.
25
Es lassen sich bei der Gesamtbetrachtung quantitativer Kriterien kaum solche finden, in denen die geplante Bebauung mit der Bebauung der bestehenden Hausgruppe übereinstimmt. Das Volumen des geplanten Baukörpers geht weit über das Volumen der bestehenden Häuser der Hausgruppe hinaus, mit der Folge, dass nicht im Entferntesten von einem quantitativ mit der bestehenden Hausgruppe abgestimmten Baukörper gesprochen werden kann.
26
Auch bei qualitativer Betrachtung der Planung ist festzustellen, dass diese keine harmonische Abstimmung mit der bestehenden Hausgruppe darstellt. Es entsteht weder ein einheitlicher Gesamtbaukörper, noch kann von einer wechselseitig verträglichen Bebauung gesprochen werden. Vielmehr bringt das geplante Vorhaben das nachbarschaftliche Austauschverhältnis aus dem Gleichgewicht. Sowohl durch das Baukörpervolumen und die Geschossigkeit als auch durch die Stellung des überdimensionierten Hauptbaukörpers in Nord-Süd Richtung verlässt der geplante Baukörper vollkommen die Abstimmung der Einheiten in der Häuserzeile und wirkt gegenüber dieser als überdimensionierte Fremdkörper, der die bestehende Bebauung dominiert, ohne sich dieser anzupassen.
27
Die geplante grenzständige Bebauung erweist sich somit gegenüber dem Kläger als rücksichtslos. Das Vorhaben fügt sich nicht in entsprechender Anwendung des § 22 Abs. 2 BauNVO als grenzständige Bebauung in Form einer Hausgruppe in die Umgebung ein. Die für den Kläger damit einhergehende Beeinträchtigung geht deutlich über das hinaus, was bei einer Bebauung im Rahmen der erforderlichen Abstimmung innerhalb einer Hausgruppe hinzunehmen wäre.
28
2.2 Der geplante Baukörper hält die nach Art. 6 Abs. 1 BayBO erforderlichen Abstandsflächen zum Klägergrundstück nicht ein, da die grenzständige Bauweise nach planungsrechtlichen Vorschriften unzulässig ist. Die Grenzbebauung ist daher nicht nach Art. 6 Abs. 1 Satz 3 BayBO zulässig.
29
Für die Beurteilung der bauplanungsrechtlichen Zulässigkeit nach der Bauweise ist auf die nach dem Eindruck des Augenscheins als einheitliche städtebauliche Struktur wirkende Reihenhausbebauung zwischen der H1. Straße im Süden, der H2. Straße im Westen und der H2. Straße im Norden abzustellen. Angesichts der Einheitlichkeit dieser Bebauung und deren räumlicher Ausdehnung ist die weiter östlich anschließende Mehrfamilienhausbebauung nicht mehr als prägend heranzuziehen. Bei den in diesem Bereich anzutreffenden Reihenhausanlagen handelt es sich um offene Bauweise, die auch bei einer Bebauung mit Hausgruppen vorliegt (§ 22 Abs. 2 Satz 1 BauNVO). Angesichts der durchgehenden Gestaltung der Baukörper als Hausgruppen in der offenen Bebauung ist es für die Prägung des Gebiets durch die offene Bauweise unschädlich, dass die Hausgruppe E-P.- Straße 4 bis 20 geringfügig über die nach § 22 Abs. 2 Satz 2 BauNVO vorgesehene Höchstgrenze von 50 m für Hausgruppen hinausgeht. Dies führt nicht zur Zulässigkeit beider Bauweisen im Rahmen des § 34 Abs. 1 BauGB. Die Zulässigkeit beider Bauweisen würde voraussetzen, dass sowohl die geschlossene als auch die offene Bauweise gehäuft vorkommen (vgl. BayVGH, U.v. 4.5.2017 - 2 B 16.2432 - juris Rn. 28). Die einmalige Überschreitung der 50 m-Grenze ist nicht geeignet, das Gebiet im Sinne einer geschlossenen Bebauung zu prägen. In dem maßgeblichen Bereich ist neben der in aufeinander abgestimmten Hausgruppen angeordneten Reihenhausbebauung keine Grenzbebauung vorhanden, sodass ein Nebeneinander zwischen geschlossener und offener Bebauung nicht zu verzeichnen ist. Dementsprechend ist bauplanungsrechtlich keine Grenzbebauung in Form der geschlossenen Bebauung zulässig. Die geplante grenzständige Bebauung auf dem Baugrundstück verstößt daher gegen die nachbarschützenden Vorschriften des Abstandflächenrechts.
30
Zur Vervollständigung ist darauf hinzuweisen, dass auch für den Fall der planungsrechtlichen Zulässigkeit einer grenzständigen Bebauung zum Klägergrundstück ein Verstoß gegen die Abstandsflächenvorschriften vorliegen würde. Dies ergibt sich daraus, dass an dem Hauptteil des geplanten Gebäudes im zweiten Dachgeschoss Richtung Osten ein Dachaufbau vorgesehen ist, der als versetzter Wandteil Abstandsflächen gegenüber der Grenze zum Klägergrundstück einzuhalten hätte (vgl. zur Pflicht, Abstandsflächen einzuhalten bei versetzten Wandteilen grenzständiger Gebäude: BayVGH, B. v.11.11.2015 - 2 CS 15.1251 - juris Rn. 4). Die hier zu bildende fiktive Außenwand hat eine Wandhöhe von 10,90 m (vermaßt), die die erforderliche Tiefe der Abstandsfläche vorgibt, während die Entfernung des Fußpunkts derselben von der Grundstücksgrenze nur ca. 9 m beträgt.
31
3. Unabhängig von dem vorstehend dargestellten Verstoß gegen das Gebot der Rücksichtnahme weist das Gericht darauf hin, dass die Baugenehmigung nach der Rechtsprechung der Kammer aufgrund der unzureichenden Planunterlagen nicht hinreichend bestimmt ist. Die Kammer hat bereits mehrfach entschieden, dass im Fall der Erteilung einer Baugenehmigung für die Änderung oder Erneuerung einer Doppelhaushälfte solche Pläne einzureichen sind, die eine Beurteilung der Frage ermöglichen, ob die beiden Haushälften noch ein Doppelhaus im Sinne der Doppelhausrechtsprechung des Bundesverwaltungsgerichts bilden (vgl. VG München, B.v. 3.9.2020 - M 8 SN 20.3420 - n.v.; VG München, B.v. 18.4.2019 - M 8 SN 19.1401- n.v.; U.v. 11.4.2016 - M 8 K 14.4953 - juris Rn. 27). Gleiches gilt für den Fall, dass - wie hier - grenzständig unter Inanspruchnahme der Regelung des § 22 Abs. 2 Satz 1 BauNVO an eine Hausgruppe angebaut wird. Eine Plandarstellung, die eine Beurteilung ermöglicht, ob der Grenzanbau in harmonischer und verträglicher Weise an die benachbarte Hausgruppe angebaut wird, fehlt im vorliegenden Fall. Es genügt nicht, den Baukörper des benachbarten Reihenhauses lediglich schematisch in der Ansicht darzustellen. Zur Beurteilung der Frage, ob nach der Errichtung des geplanten Baukörpers weiterhin ein einheitlicher Gesamtbaukörper vorliegt, bedarf es vielmehr zumindest einer solchen Darstellung des künftigen Gesamtbaukörpers in den Plänen, die den Vergleich der Geschossigkeit und eines eventuellen Versatzes der aneinander gebauten Einheiten ermöglicht.
32
Nachdem sich die Verletzung der Rechte des Klägers durch die Baugenehmigung bereits aufgrund der Verletzung des Rücksichtnahmegebots ergibt, lässt die Kammer indes offen, ob die Unbestimmtheit der Baugenehmigung infolge der fehlenden Darstellung des Gesamtbaukörpers zugleich eine Nachbarrechtsverletzung darstellt (vgl. hierzu: BayVGH, U.v. 20.05.1996 - 2 B 94.1513 -BayVBl. 1997, 405 f.; B.v. 5.12.2001 - 26 ZB 01.1775 - juris Rn. 11 m.w.N.; VGH BW, B.v. 23.11.2017 - 3 S 1933/17 - juris Rn. 8; BayVGH, B.v. 31.10.2016 - 15 B 16.1001 - juris Rn. 4; B.v. 5.7.2017 - 9 CS 17.603 - juris Rn. 13; jeweils m.w.N.).
33
4. Die Beklagte hat als unterlegene Partei gem. § 154 Abs. 1 VwGO die Kosten des Verfahrens zu tragen. Es entspricht der Billigkeit, dass die Beigeladene gem. § 162 Abs. 3 VwGO ihre außergerichtlichen Kosten selbst trägt, da sie sich nicht durch die Stellung eines Antrags in ein Kostenrisiko (§ 154 Abs. 3 VwGO) begeben hat.
34
Die Entscheidung zur vorläufigen Vollstreckbarkeit beruht auf § 167 VwGO i.V.m. §§ 708 ff. ZPO.