Inhalt

VG München, Urteil v. 06.12.2021 – M 8 K 20.1250
Titel:

Nachbarklage gegen Baugenehmigung für den Neubau eines Hellip-Schauraums und Anbau einer Werkstätte

Normenketten:
VwGO § 113 Abs. 1 S. 1
WEG § 8
BauGB § 34 Abs. 1 S. 1
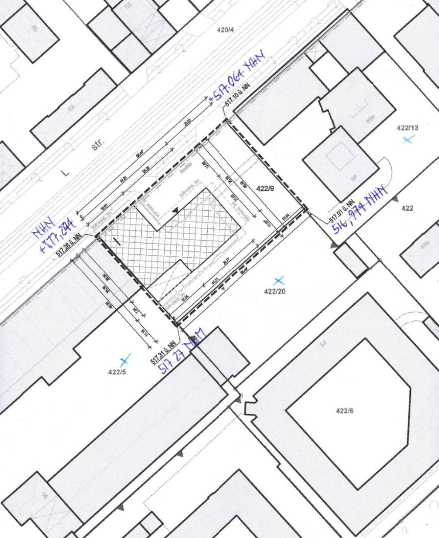
BauNVO § 15 Abs. 1
BayBO Art. 68 Abs. 1 S. 1
Leitsätze:
1. Der einzelne Sondereigentümer kann baurechtliche Nachbarrechte aus eigenem Recht geltend machen, wenn eine konkrete Beeinträchtigung seines Sondereigentums in Frage steht. (Rn. 38) (redaktioneller Leitsatz)
2. Bei einer Befreiung von einer Festsetzung, die nicht (auch) den Zweck hat, die Rechte der Nachbarn zu schützen, richtet sich der Nachbarschutz nach den Grundsätzen des bauplanungsrechtlichen Gebots der Rücksichtnahme. (Rn. 44) (redaktioneller Leitsatz)
3. Festsetzungen zur überbaubaren Grundstücksfläche sind ebenso wenig wie solche zum Maß der baulichen Nutzung und zur Bauweise nachbarschützend, es sei denn im Bebauungsplan ist ein besonderer Anhalt zugunsten des (ausnahmsweise) auch nachbarschützenden Zwecks der Festsetzung gegeben. (Rn. 45) (redaktioneller Leitsatz)
4. Soweit ein Rücksichtnahmeverstoß aufgrund von Immissionsbelastungen geltend gemacht wird, wird zur Konturierung der Zumutbarkeitsschwelle des Rücksichtnahmegebots auf die materiell-rechtlichen Maßstäbe des Immissionsschutzrechts zurückgegriffen. (Rn. 58) (redaktioneller Leitsatz)
5. Die Festlegung von Immissionsrichtwerten genügt zur Sicherung der Nachbarrechte nur, wenn sie geeignet und ausreichend ist, die Erfüllung der Anforderungen des Rücksichtnahmegebots auch für den Fall, dass von der Baugenehmigung im vollem Umfang Gebrauch gemacht wird, sicherzustellen. (Rn. 61) (redaktioneller Leitsatz)
Schlagworte:
Nachbarklage, Baugenehmigung für den Neubau eines Hellip-Schauraums und Anbau einer Werkstätte, Vorratsteilung nach WEG, Gesellschaft bürgerlichen Rechts, Klagebefugnis der Gesellschafter, Rücksichtnahmegebot, Festsetzung von Immissionsrichtwerten, Geh- und Fahrtrecht
Rechtsmittelinstanz:
VGH München, Beschluss vom 09.01.2024 – 2 ZB 22.1186
Fundstelle:
BeckRS 2021, 51946

Tenor

I. Die Klagen werden abgewiesen.
II. Die Kläger haben die Kosten des Verfahrens einschließlich der außergerichtlichen Kosten der Beigeladenen zu je ein Viertel zu tragen.
III. Die Kostenentscheidung ist für die Beklagte ohne, für die Beigeladene gegen Sicherheitsleistung in Höhe des vollstreckbaren Betrags vorläufig vollstreckbar. Die Kläger dürfen die Vollstreckung durch die Beklagte durch Sicherheitsleistung oder Hinterlegung in Höhe des vollstreckbaren Betrags abwenden, wenn nicht die Beklagte vorher Sicherheit in gleicher Höhe leistet.

Tatbestand

1
Die Kläger wenden sich mit ihrer Klage gegen eine der Beigeladenen erteilte Baugenehmigung für den Neubau eines …-Schauraums und den Anbau einer Werkstätte auf dem Grundstück … straße 42a (FlNr. …, Gemarkung … - im Folgenden Baugrundstück).
2
Bei der Klägerin zu 1 handelt es sich um eine Gesellschaft bürgerlichen Rechts (GbR), bei den Klägern zu 2 bis 4 um deren Gesellschafter. Im (Wohnungs-)Grundbuch für das Grundstück FlNr. … der Gemarkung … (* … straße 46 und 46a) wurde am 26. März 2019 eine Teilung nach § 8 WEG eingetragen. Aus dem Wohnungseigentumsgrundbuch ergibt sich, dass sämtliche Einheiten im Eigentum der Klägerin zu 1, bestehend aus den Klägern zu 2 bis 4, stehen. Das Grundstück FlNr. … der Gemarkung … (im Folgenden Nachbargrundstück) ist in zweiter Reihe mit einem neungeschossigen, zu Wohnzwecken genutztem Gebäudekomplex sowie - im vorderen Grundstücksbereich zur … straße hin - mit einem eingeschossigen Gebäude bebaut, in dem sich ein Kindergarten und zwei Gewerbeeinheiten befinden. Unter dem 15. Juni 2020 erteilte die Beklagte der Klägerin zu 1 einen Vorbescheid für die Aufstockung des eingeschossigen Vordergebäudes (für Büro- und Wohnnutzung), wobei sie die Fragen zum Einfügen nach Art und Maß der baulichen Nutzung sowie hinsichtlich der überbaubaren Grundstücksfläche positiv beantwortete. Der Vorbescheid ist infolge Klageerhebung eines Dritten (M 8 K 21.4778) noch nicht bestandskräftig.
3
Unmittelbar südwestlich an das Nachbargrundstück schließt sich das Baugrundstück … straße 42a (FlNr. … Gemarkung …*) an, hieran wiederum, ebenfalls in südwestlicher Richtung, auf dem Grundstück FlNr. … Gemarkung …, das … Zentrum … mit Ausstellungsräumen und Werkstätten.
4
Sowohl das Nachbar- als auch das Baugrundstück befinden sich in einem im Nord-Westen von der … straße, im Nord-Osten von der … Straße, im Süd-Westen von der … straße sowie im Süd-Osten von der …-, …- und … straße begrenzten Geviert. Durch einfachen, übergeleiteten Baulinienplan ist u.a. für beide Grundstücke eine vordere Baulinie festgesetzt.
5
Die unmittelbar südöstlich und südwestlich an das Bau- und Nachbargrundstück angrenzenden Grundstücke FlNrn. …, …, …, …, … und … liegen innerhalb des Geltungsbereichs des Bebauungsplans der Beklagten Nr. … „…-, …-, …-, … straße“, der neben den vorgenannten Grundstücken auch die … straße und Teile der …-, …- und … straße erfasst. Der Bebauungsplan setzt für seinen südwestlichen Geltungsbereich (Grundstücke FlNrn. …, …, … und …*) ein Gewerbegebiet, für das Grundstück FlNr. … ein allgemeines sowie für das Grundstück FlNr. … ein reines Wohngebiet fest.
6
Unter dem 21. August 2019, bei der Beklagten eingegangen am 22. August 2019, beantragte die Beigeladene eine Baugenehmigung für den Neubau eines …-Schauraums und den Anbau einer Werkstätte auf dem Grundstück … straße 42a (FlNr. … Gemarkung …; Plan-Nr. …*). Unter dem 17. September 2019 wurde ferner ein Antrag auf Befreiung wegen teilweisen Abrückens von der vorderen Baulinie durch den Hauptbaukörper gestellt. Die Planung sieht die Errichtung eines eingeschossigen Hauptgebäudes mit einer Kfz-Werkstätte im südwestlichen und einem …-Schauraum und im nordöstlichen Gebäudeteil vor. Der Baukörper soll grenzständig zum Grundstück FlNr. …, angebaut an das dortige, ebenfalls grenzständige Bestandsgebäude, ausgeführt werden. Im Bereich der Werkstattnutzung soll das Gebäude auf der entlang zur … straße verlaufenden Baulinie (und damit dort ebenfalls grenzständig) zur Ausführung kommen. Der Gebäudeteil, in dem der Schauraum untergebraucht werden soll, ist von der vorderen Baulinie abgerückt. Das Baugrundstück ist u.a. zum Nachbargrundstück hin eingefriedet. Die Einfriedung verläuft zum weit überwiegenden Teil nicht entlang der Grundstücksgrenze, sondern ist - zumeist - 3,20 m (Vermaßung im Grundriss Erdgeschoss) ins Baugrundstück hineinversetzt. Sowohl entlang der südöstlichen Grundstücksgrenze zum Grundstück FlNr. … hin als auch entlang der vorderen Grundstücksgrenze zur … straße sowie im nordöstlichen Grundstücksbereich, abgerückt von der Grenze zum Nachbargrundstück, sind insgesamt 42 Stellplätze geplant.
7
Nach der mit dem Bauantrag vorgelegten Betriebsbeschreibung vom 21. August 2019 ist als Betriebsart die Errichtung eines Kfz-Betriebs (Autohaus als Vollfunktionsbetrieb mit Ausstellung und Verkauf von Neuwagen, Werkstatt, Service, Lager) vorgesehen, der dem Handel mit neuen und gebrauchten Kfz sowie Ersatzteilen und Zubehör, der Kfz-Wartung und -Reparatur sowie der -Instandsetzung dienen soll. Die Werkstatt, in der Mechanik-Reparaturen an Pkw durchführt werden sollen, soll mit fünf Hebe-/Arbeitsbühnenplätzen, einer Achsvermessungsbühne als Auffahrbühne mit entsprechenden Messgeräten, einem Bremsenprüfstand, Reifenwucht- und Reifenaufziehgeräten (Reifenmontage) und einem Kompressor ausgestattet sein, wobei alle Hebebühnenplätze mit einer Abgasabsauganlage versehen sein sollen. Die Betriebszeiten sollen im Verkauf montags bis freitags von 09:00 bis 18:00 Uhr und samstags von 09:00 Uhr bis 13:00 Uhr betragen, für den Service/die Werkstatt montags bis freitags von 07:30 bis 18:00 Uhr, jeweils im Ein-Schicht-Betrieb. Sonn- und feiertags fänden keine Betriebszeiten statt. Der Betrieb soll insgesamt 13 Beschäftigte aufweisen, davon vier Mechaniker und einen Serviceberater.
8
Vgl. zur Lage der Grundstücke und ihrer Bebauung anliegenden Lageplan im Maßstab 1 : 1.000, welcher eine Darstellung des Vorhabens enthält:
9
(Lageplan aufgrund Einscannens möglicherweise nicht mehr maßstabsgetreu)
10
Nach Einholung einer internen Stellungnahme des Referates für Gesundheit und Umwelt erteilte die Beklagte der Beigeladenen mit streitgegenständlichem Bescheid vom 24. Februar 2020 die baurechtliche Genehmigung für den vorbezeichneten Neubau eines …-Schauraums und den Anbau einer Werkstätte auf dem Grundstück FlNr. … der Gemarkung … nach Plan-Nr. … mit Handeintragungen vom 29. Januar 2020. Der Genehmigungsbescheid enthält neben einer Befreiung gem. § 31 Abs. 2 BauGB wegen teilweisen Abrückens von der Baulinie im Bereich des …-Schauraums verschiedene Nebenbestimmungen, u.a. folgende, auf der eingeholten Stellungnahme des Referates für Gesundheit und Umwelt beruhende Auflagen zum Immissionsschutz:
11
„1.1 Für den Zeitraum der Bauarbeiten ist die Allgemeine Verwaltungsvorschrift zum Schutz gegen Baulärm - Geräuschimmissionen - vom 19.08.1970 (Beilage zum BAnz. Nr. 160 vom 01.09.1970) zu beachten.
12
1.2 Die Bestimmungen der Sechsten Allgemeinen Verwaltungsvorschrift zum Bundes-Immissionsschutzgesetz (Technische Anleitung zum Schutz gegen Lärm - TA Lärm) vom 26.08.1998 sind zu beachten. Die von dem gesamten Bauvorhaben mit Betriebseinrichtungen (Lüftungen, Werkstätten etc.) sowie dem zuzuordnenden Betriebsverkehr (Lieferanten, Bedienstete, Reparaturfahrzeuge etc.) ausgehenden Geräusche dürfen an den maßgeblichen Immissionsorten nach Ziffer 2.3 TA Lärm die folgenden Immissionsrichtwerte nicht überschreiten:
im Gewerbegebiet (hier: … straße 54, … straße 16), in dem der Betrieb selbst untergebracht ist,
tagsüber (06.00 - 22.00 Uhr) 65 dB(A),
nachts (22.00 - 06.00 Uhr) 50 dB(A),
und im angrenzenden Allgemeinen Wohngebiet (hier: … straße 46, 46a und 53)
tagsüber (06.00 - 22.00 Uhr) 55 dB(A)
nachts (22.00 - 06.00 Uhr) 40 dB(A).
13
Einzelne kurzzeitige Geräuschspitzen dürfen die Immissionsrichtwerte am Tag um nicht mehr als 30 dB(A) und in der Nacht um nicht mehr als 20 dB(A) überschreiten.
14
1.3 Alle geräusch- oder schwingungserzeugenden Maschinen, Geräte, Anlagen und Anlagenteile sind dem Stand der Technik entsprechend gegen die Emission von Luft- und Körperschall sowie gegen die Übertragung von Schwingungen zu isolieren.
15
1.4 Die Ausführung und Anordnung der Baulichkeiten, die Anordnung der Schallquellen sowie die schalltechnisch relevanten Eingangsdaten dürfen gegenüber hier zugrunde gelegten Planungsgrundlagen nicht wesentlich geändert werden. Etwaige bauliche Änderungen bedürfen der erneuten Prüfung aus schalltechnischer Sicht.
16
1.5 Bei den Betriebs- und Werkstatträumen sind während der Durchführung von lärmintensiven Arbeiten die Fenster, ins Freie führende Türen und Tore, geschlossen zu halten.
17
1.6 Im Freien dürfen keine lärmintensiven Arbeiten (z.B. Arbeiten mit Trennschleifern, Dampfstrahlern, Schlagschraubern, Hämmern oder Dengeln, etc.) durchgeführt werden.
18
1.7 Das unnötige Laufenlassen von lärm- und abgaserzeugenden Fahrzeugen auf dem Betriebsgelände ist verboten. Entsprechende Hinweisschilder (z.B. „Bitte Motor abstellen“) sind gut sichtbar anzubringen.
19
1.8 Während der Nachtzeit (22.00 - 06.00 Uhr) sind keine Ladetätigkeiten, Lieferbetrieb, Ver- oder Entsorgungstätigkeiten zulässig.
20
1.9 Die Betriebszeit der Werkstatt ist auf die Werktage im Zeitraum der Tageskernzeit (07.00 - 20.00 Uhr) zu beschränken.“
21
Unter der Überschrift „Nachbarwürdigung“ wurde ausgeführt, das Vorhaben entspreche den öffentlich-rechtlichen Vorschriften, die im bauaufsichtlichen Verfahren zu prüfen seien. Den im Einzelnen genannten Nachbarn werde eine Ausfertigung des Bescheids förmlich zugestellt. Die Nachbarn hätten die Möglichkeit, entsprechend der Rechtsbehelfsbelehrunggegen den Bescheid Klage zu erheben.
22
Der Klägerin zu 1 wurde eine Nachbarausfertigung der Baugenehmigung am 27. Februar 2020 und der Klägerin zu 4 am 26. Februar 2020 jeweils per Postzustellungsurkunde zugestellt.
23
Mit Schriftsatz vom 19. März 2020, per Telefax beim Verwaltungsgericht München eingegangen am selben Tag, ließen die Kläger durch ihren Bevollmächtigten Klage erheben. In der Klageschrift werden als Kläger zum einen die „…, … und … … GbR, zum anderen „deren Gesellschafter … und … … und … …“ benannt. Sie beantragen,
24
Der Baugenehmigungsbescheid der … … vom 24. Februar 2020, Az. …, wird aufgehoben.
25
In der Klagebegründung vom 19. November 2021, überschrieben mit „Verwaltungsstreitsache …, … und … … GbR gegen … …“, wurde im Wesentlichen vorgetragen, das genehmigte Vorhaben stelle sich als rücksichtslos dar. Die aus dem Vorhaben voraussichtlich auf das klägerische Grundstück einwirkenden Lärmimmissionen seien für die Klägerin unzumutbar. Zwar möge es im Regelfall genügen, für einen Gewerbebetrieb vorzuschreiben, dass die maßgeblichen Richtwerte nach TA Lärm nicht überschritten werden dürften. Angesichts der zu erwartenden Geräuschbelastung aus der im Rahmen der streitgegenständlichen Baugenehmigung gestatteten Nutzung sei vorliegend jedoch nicht ersichtlich, dass die verfügten Immissionsgrenzwerte auch eingedenk der gestatteten Betriebsspezifikationen überhaupt eingehalten werden könnten. Genehmigungsgegenstand sei unter anderem ein „…-Schauraum“. Fahrzeuge dieses Typs seien Sportfahrzeuge mit einer das Emissionsverhalten regulärer Pkw deutlich überschreitenden Lärmentwicklung. Regelmäßig emittierten derartige Fahrzeuge lärmrelevante Schallleistungspegel im Bereich von deutlich über 72 dB(A). Zu berücksichtigen seien ferner die äußerst geringen Abstände der maßgeblichen Fahr-, Rangier- und Abstellflächen zum Grundstück der Klägerin. Gerade die unmittelbar an das Grundstück der Klägerin angrenzenden Flächen würden zum Abstellen der genannten Fahrzeuge und damit zur Vornahme entsprechender Rangiervorgänge genutzt werden. Die Vornahme von Fahrzeugbewegungen mit der vorstehend genannten Lautstärke in unmittelbarer Nähe der auf dem klägerischen Grundstück vorgehaltenen Wohnbebauung stelle sich als rücksichtslos dar und werde voraussichtlich die maßgeblichen Richtwerte nach der TA Lärm und damit die im streitgegenständlichen Baugenehmigungsbescheid festgelegten Grenzwerte, insbesondere auf der Ebene des Spitzenpegelkriteriums, gerade auch zur Tageszeit überschreiten. Dies gelte umso mehr, als vorliegend die Bewegung von Fahrzeugen auf dem Baugrundstück zur Nachtzeit durch die verfügten Auflagen gerade nicht ausgeschlossen werde. Diese könnten damit auch während der Nachtzeit vorgenommen werden. Auch die Zahl der Fahr- und Rangiervorgänge werde im Rahmen der angefochtenen Baugenehmigung trotz des insoweit bestehenden Erfordernisses nicht beschränkt. Dies sei umso gravierender, als der Klägerin aufgrund eines ihr unter dem 15. Juni 2020 erteilten Vorbescheids eine Bebauung ihres Grundstücks mit weiterer Wohnbebauung im Bereich des straßenseitigen Gebäudes künftig möglich sein werde und insoweit lediglich minimale Abstände zu dem streitgegenständlichen Vorhaben einhalten werden könnten. Da die verfügten Auflagen zum Lärmschutz unzureichend seien und bereits zum gegenwärtigen Zeitpunkt feststehe, dass die in der Baugenehmigung festgesetzten Immissionsgrenzwerte auch bei genehmigungskonformen Betrieb voraussichtlich nicht eingehalten werden könnten, stelle sich das Bauvorhaben als rücksichtslos dar. Auf die Entscheidung des Verwaltungsgerichts München vom 28. November 2016 - M 8 K 16.1795 - werde vollumfänglich verwiesen. Darüber hinaus bringe die Baugenehmigung rechtserhebliche Nachteile für die Klägerin bei Durchsetzung des zu ihren Gunsten am Baugrundstück bestellten Geh- und Fahrtrechts mit sich. Die genehmigten Bauvorlagen gingen davon aus, dass auf der Fläche des zugunsten des jeweiligen Eigentümers des klägerischen Grundstücks gesicherten Geh- und Fahrtrechts notwendige Stellplätze für das streitgegenständliche Vorhaben umgesetzt würden. Würde die Baugenehmigung bestandskräftig, würde die Durchsetzung des Geh- und Fahrtrechts für die Klägerin insoweit erschwert, als ihr diesbezüglich der Einwand einer rechtswidrigen Beeinträchtigung des Geh- und Fahrtrechts im Rahmen einer entsprechenden Durchsetzung der aus dem besagten Geh- und Fahrtrecht resultierenden Berechtigungen nur noch eingeschränkt, wenn überhaupt, offenstehe. Auf die Rechtsprechung des Bundesverwaltungsgerichts zur erschwerten Abwehr eines Notwegerechts in Folge der Erteilung einer entsprechenden Baugenehmigung werde in diesem Zusammenhang verwiesen.
26
Die Beklagte legte mit Schriftsatz vom 25. Mai 2020 die Behördenakten vor. Sie beantragt,
die Klage abzuweisen.
27
Eine Verletzung des Gebots der Rücksichtnahme liege nicht vor, insbesondere gingen vom Vorhaben keine unzumutbaren Lärmimmissionen aus. Bereits aus der Beschreibung des Vorhabens gehe hervor, dass es sich um einen Kfz-Betrieb handle. Unter Zugrundelegung der eingereichten Unterlagen, insbesondere der Pläne sowie der Betriebsbeschreibung, seien in der Genehmigung die erforderlichen Auflagen zum Immissionsschutz getroffen worden. Diese Regelungen stellten sicher, dass keine unzumutbaren Beeinträchtigungen auf dem Nachbargrundstück vorlägen. Nach der Rechtsprechung seien zielorientierte Festlegungen zulässig, wenn gewährleistet sei, dass die festgelegten Immissionswerte im regelmäßigen Betrieb eingehalten werden könnten. Hier sei bereits durch Auflage festgelegt worden, dass die vom gesamten Vorhaben mit Betriebseinrichtungen und auch dem Betriebsverkehr ausgehenden Geräusche die genannten Richtwerte nicht überschreiten dürften. Die Richtwerte des allgemeinen Wohngebiets seien dabei auf die angrenzenden Grundstücke … straße 46, 46a und 53 bezogen. Daneben seien weitere Regelungen getroffen worden, insbesondere bezüglich der Beschränkung der Betriebszeiten. Zudem dürften während der Nachtzeit keine Ladetätigkeiten, Lieferbetrieb sowie Ver- oder Entsorgungstätigkeiten erfolgen. Aufgrund der Beschränkung der Betriebszeiten sei in der besonders schutzwürdigen Nachtzeit nicht mit Immissionen zu rechnen. Durch die umfassenden Regelungen werde sichergestellt, dass für die Nachbarschaft sowohl tags als auch nachts keine unzumutbaren Beeinträchtigungen durch das beantragte Vorhaben entstünden. Es sei daher gewährleistet, dass keine Überschreitung der Richtwerte im Betrieb zu erwarten sei. Zudem sei aus dem Freiflächengestaltungsplan ersichtlich, dass die bestehende Grünfläche erhalten werde und die Stellplätze in Abstand zur Grundstücksgrenze errichtet würden. Unmittelbar an der Grundstücksgrenze sei im Plan eine Fläche dargestellt, auf der auf ein Geh- und Fahrtrecht für die Eigentümer des angrenzenden Grundstücks hingewiesen werde. Auch insofern sei durch die Anordnung der Nutzungen auf die Nachbarinteressen Rücksicht genommen worden. Nicht nachvollziehbar sei, inwiefern durch die Baugenehmigung eine Beschränkung eines Geh- und Fahrtrechts bestehen solle. Das Grundstück FlNr. … liege angrenzend an die … straße als öffentliche Verkehrsfläche. Aus welchen Gründen hier ein Notwegerecht entstehen solle, sei nicht ersichtlich. Das Thema Geh- und Fahrtrecht gehöre nicht zum Prüfungsumfang (Art. 68 Abs. 4 BayBO a.F.).
28
Die Beigeladene beantragt durch ihren Bevollmächtigten,
die Klage abzuweisen.
29
Die Baugenehmigung verstoße nicht gegen das Gebot der Rücksichtnahme. In ihr seien für das Grundstück der Kläger Immissionsrichtwerte für allgemeine Wohngebiete festgesetzt und zudem betriebsbeschränkende Auflagen zum Immissionsschutz enthalten. Den Bauvorlagen habe eine Betriebsbeschreibung zugrunde gelegen, aus welcher sich der bestimmungsgemäße Betriebszustand mit entsprechenden zeitlichen und anlagenbezogenen Vorkehrungen zum Immissionsschutz ergebe. Zudem seien die Mitarbeiter sowohl im Verkauf als auch der Werkstatt von der Geschäftsführung ausdrücklich schriftlich angewiesen, keinerlei Vorführungen von Abgasanlagen und Motorgeräuschen sowie das (Warm-)Laufenlassen von Motoren im Außenbereich des Betriebs der Beigeladenen vorzunehmen, um unnötige Lärmbelastungen und Emissionen durch das Starten und Laufenlassen von Motoren zu vermeiden. Nach diesen Dienstanweisungen habe sämtliches Bewegen von Fahrzeugen auf dem Gelände der Beigeladenen im leisestmöglichen Modus stattzufinden und sei auf das Nötigste zu beschränken. Auch Probefahrten, bei denen das Betriebsgelände verlassen werde, seien in diesem Sinn zu gestalten. Die Mitarbeiter seien auch angehalten, ihre Kunden hierauf hinzuweisen. Nach Ziffer 2 der Betriebsbeschreibung betrage die Betriebszeit montags bis freitags von 09.00 bis 18.00 Uhr (Verkauf) und von 07.30 bis 18.00 Uhr (Service/Werkstatt) und samstags von 09.00 bis 13.00 Uhr (Verkauf). Reparaturarbeiten, Fahrzeugreinigung in geschlossenen Räumen, Kfz-Verkehr auf dem Gelände fänden gem. Ziffer 4.2 der Betriebsbeschreibung während der Betriebszeiten von 07.30 Uhr bis 18.00 Uhr statt. Das von den Kunden der Beigeladenen benutzte Hauptzufahrtstor zum Betriebsgelände zur … straße hin werde in Umsetzung dieser Betriebszeiten täglich um 18.00 Uhr geschlossen. Das Gelände sei dann lediglich über das südwestliche, an das Betriebsgrundstück angrenzende, benachbarte …-Zentrum anfahrbar. Das dortige Zufahrtstor werde allerdings ebenfalls bereits um 19.00 Uhr geschlossen. Mittels dieser Maßnahmen und der sonstigen Auflagen in der Baugenehmigung sei jedenfalls sichergestellt, dass die Immissionsrichtwerte am Anwesen der Klägerin nicht überschritten und die betriebsbeschränkenden Auflagen eingehalten würden. Die Kläger trügen für ihre gegenteilige Behauptung keine greifbaren substantiierten Tatsachen vor. Dass die Kfz auf dem Betriebsgelände regelmäßig lärmrelevante Schallleistungspegel „im Bereich von über 72 dB(A)“ emittierten, behaupteten die Kläger nicht einmal; dies werde bestritten. Zudem ergäben sich aus solchen Einzelereignissen noch keine Überschreitungen der nach Ziffer 6.1 der TA Lärm maßgeblichen Beurteilungspegel. Damit sei die vorliegende Fallgestaltung auch nicht vergleichbar mit der Rechtsprechung der erkennenden Kammer in der Entscheidung vom 28. November 2016 im Verfahren M 8 K 16.1795 und der dieser zugrunde liegenden Rechtsprechung des BayVGH vom 18. Juli 2002 - 1 B 98.2945 - und vom 15. November 2011 - 14 AS 11.2305. Zudem sei zu berücksichtigen, dass dem klägerischen Grundstück mit den am Schutzniveau eines allgemeinen Wohngebiets orientierten Auflagen wohl ohnehin ein höheres Schutzniveau gewährt worden sei als dies aufgrund der seit Jahrzehnten bestehenden Gemengelage an sich geboten gewesen wäre. Die Beklagte selbst gehe in dem der Klägerin zu 1 erteilten Vorbescheid vom 15. Juni 2020 davon aus, dass das klägerische Grundstück aufgrund der tatsächlich vorhandenen Nutzungsmischung keinem Baugebiet nach der BauNVO zuzuordnen sei, sondern hier faktisch eine Gemengelage nach § 34 Abs. 1 BauGB vorliege. Auf dem Grundstück der Beigeladenen befinde sich seit Jahrzehnten ein Kfz-Betrieb, insbesondere auch seit Jahrzehnten eine Kfz-Werkstatt und seit 10 bis 15 Jahren der …-Werkstattbetrieb. Ungeachtet dessen setze die Beigeladene durch entsprechende betriebliche Vorkehrungen das in der Baugenehmigung verfügte Schutzniveau um und sei im Rahmen der Rücksichtnahme auf die Nachbarschaft bemüht, die von dem Betrieb ausgehenden Emissionen so gering als möglich zu halten. Der in der Klagebegründung enthaltene Vortrag zum Geh- und Fahrtrecht sei im Hinblick auf Art. 68 Abs. 5 BayBO rechtlich unerheblich. Etwaige private Rechte, insbesondere die behauptete Grunddienstbarkeit, würden durch den von den Klägern angeführten Hinweis im Freiflächengestaltungsplan selbst dann nicht berührt, wenn dieser Hinweis, was jedoch nicht der Fall sei, Bestandteil des verbindlichen Regelungsgehalts der Baugenehmigung wäre. Für das streitgegenständliche Bauvorhaben seien die bauordnungsrechtlich benötigten 32 Stellplätze und darüber hinaus noch weitere zusätzliche Stellplätze sämtlich auf dem betrieblich genutzten und entsprechend eingezäunten Grundstücksareal und damit außerhalb des Bereichs geschaffen worden, auf welchem das Geh- und Fahrtrecht verlaufe. Dies ergebe sich auch aus dem genehmigten Freiflächengestaltungsplan selbst. Im Übrigen betreffe die in der Klagebegründung angeführte Entscheidung des Bundesverwaltungsgerichts eine nicht vergleichbare Sonderkonstellation einer mangels Erschließung eines Baugrundstücks rechtswidrigen Baugenehmigung. Um eine derartige Fallkonstellation gehe es vorliegend in mehrfacher Hinsicht nicht. Das Betriebsgrundstück sei unzweifelhaft erschlossen und benötige keinen Notweg über das klägerische Grundstück. Es existiere auch in rechtlicher Hinsicht keine vergleichbare zivilrechtliche Automatik in Bezug auf die eingewandte Grunddienstbarkeit. Selbst wenn gemäß der Baugenehmigung verbindlich Stellplätze im Bereich eines Geh- und Fahrtrechts vorgesehen gewesen wären, wäre dies nicht geeignet, die zivilrechtliche Rechtsposition der Kläger aus einem behaupteten Geh- und Fahrtrecht zu beeinträchtigen. Aus einer entsprechenden Baugenehmigung folge nach der Rechtsprechung des Bundesgerichtshofs bereits keine Duldungspflicht des Dienstbarkeitsberechtigten.
30
Auf Nachfrage des Gerichts zu den Eigentumsverhältnissen am Grundstück FlNr. … der Gemarkung … - ausweislich des in den Behördenakten enthaltenen amtlichen Lageplans liege eine Eigentümergemeinschaft nach dem Wohnungseigentümergesetz vor - teilte der Bevollmächtigte der Klägerin mit Schriftsatz vom 1. Dezember 2021 mit, eine Klage der Wohnungseigentümergemeinschaft gegen den angefochtenen Bescheid sei nicht möglich gewesen. Voraussetzung dafür sei deren Parteifähigkeit im Sinne von § 10 Abs. 6 Satz 5 WEG. Dies gelte jedoch nur unter der Voraussetzung, dass die Gemeinschaft als Verband existiere. Hiervon sei im folgenden Fall nicht auszugehen, so dass eine Klage der Wohnungseigentümergemeinschaft mangels Parteifähigkeit unzulässig gewesen wäre. Zwar seien das klägerische Grundstück FlNr. … und die bestehende Wohnanlage von den Klägern vor Erhebung der streitgegenständlichen Klage nach dem Wohnungseigentumsgesetz aufgeteilt und dies im Grundbuch vollzogen worden. Dennoch befänden sich sämtliche Einheiten nach wie vor im Eigentum der Klägerin zu 1. Dies ergebe sich aus dem Wohnungseigentumsgrundbuch …, Blätter … bis … Bei der erfolgten Aufteilung handle es sich um eine sog. „Vorratsteilung“. Diese bewirke keine Änderung der bestehenden Eigentumsverhältnisse, sondern diene lediglich dazu, als rechtstechnische Maßnahme die Entstehung einer Wohnungseigentümergemeinschaft vorzubereiten. Die rechtliche Invollzugsetzung der Wohnungseigentümergemeinschaft setze das Hinzutreten mindestens eines weiteren Wohnungseigentümers voraus. Dies sei wiederum erst nach Abschluss eines Veräußerungsvertrags und anschließender Eintragung des Erwerbers in einem Wohnungseigentumsgrundbuch der Fall (vgl. § 873 Abs. 1 BGB). Das Bestehen einer Wohnungseigentümergemeinschaft setze daher mehrere Personen voraus. Es genüge nicht, dass mehrere Wohnungseigentumsrechte bestünden, die in einer Person oder Gesellschaft vereinigt seien (vgl. u.a. OLG Düsseldorf, B.v. 13.8.2019 - 27 W 6/19 - BeckRS 2019, 51604; B.v. 17.01.2006 - I-3 Wx 167/05, 3 Wx 167/05 - juris). Rechtsfolge sei, dass auch nach Anlage der Grundbuchblätter aufgrund einer gem. § 8 WEG erfolgten Aufteilung eines Grundstücks in Wohnungseigentum mangels Invollzugsetzung sämtliche Rechte bei der Gesellschaft bürgerlichen Rechts verblieben, die als solche partei- und prozessfähig und nach wie vor Inhaberin sämtlicher Rechte des Grundstücks sei.
31
Das Gericht hat am 6. Dezember 2021 Beweis durch Einnahme eines Augenscheins erhoben. Das streitgegenständliche Vorhaben ist bereits realisiert und wird betrieben. Auf das Protokoll dieses Augenscheins wird ebenso Bezug genommen wie auf die Niederschrift der am selben Tag durchgeführten mündlichen Verhandlung.
32
Wegen der weiteren Einzelheiten des Sachverhalts wird auf die Gerichtsakten sowie die vorgelegten und beigezogenen Behördenakten Bezug genommen.

Entscheidungsgründe

33
I. Die Klage ist hinsichtlich der Kläger zu 2 bis 4 unzulässig, diejenige der Klägerin zu 1 ist zwar zulässig, aber unbegründet.
34
1. Die Klage der Klägerin zu 1 ist zulässig, insbesondere ist diese klagebefugt (§ 42 Abs. 2 VwGO).
35
Die Zulässigkeit einer - wie hier vorliegenden - Anfechtungsklage (§ 42 Abs. 1 Satz 1 Var. 1 VwGO) setzt gem. § 42 Abs. 2 VwGO voraus, dass der jeweilige Kläger geltend machen kann, durch den Verwaltungsakt in seinen Rechten verletzt zu sein. Für den Fall der baurechtlichen Nachbarklage bedeutet dies, dass die Klägerin zu 1 zum einen „Nachbarin“ im Sinne des Baurechts sein muss, d.h. Eigentümerin bzw. gleichgestellte dinglich Berechtigte eines anderen („fremden“) Grundstücks (König in Schwarzer/König, Bayerische Bauordnung, 4. Aufl. 2012, Art. 66 Rn. 10), und dass zum anderen die Verletzung eigener subjektiv-öffentlicher Rechte in Betracht kommt.
36
Beide Voraussetzungen sind im vorliegenden Fall erfüllt, insbesondere ist die Klägerin zu 1 „Nachbarin“ im baurechtlichen Sinne.
37
Dabei können die rechtlichen Problemstellungen um die sog. „Vorratsteilung“ nach § 8 des Gesetzes über Wohnungseigentum und das Dauerwohnrecht in der Fassung vom 1. Januar 1964 (Wohnungseigentumsgesetz - WEG), insbesondere die Frage, ob hierdurch eine Wohnungseigentümergemeinschaft im Sinne des WEG entstanden oder infolge des Umstands, dass die Klägerin zu 1 (noch immer) Alleineigentümerin sämtlicher, zur Wohnungseigentumsanlage gehörender Wohnungseigentumsrechte ist, keine Änderung der bestehenden Eigentumsverhältnisse eingetreten ist (vgl. hierzu: Schneider in: Bärmann/Seuß, Praxis des Wohnungseigentums, 7. Auflage 2017, § 2 Rn. 61; OLG Düsseldorf, B.v. 13.8.2019 - 27 W 6/19 - juris Rn. 7; B.v. 17.1.2006 - I-3 Wx 167/05, 3 Wx 167/05 - juris Rn. 41), im Ergebnis ebenso offen bleiben wie die Frage, ob und welche Auswirkungen sich infolge der Änderungen des WEG durch das zum 1. Dezember 2020 in Kraft getretene Gesetz zur Förderung der Elektromobilität und zur Modernisierung des Wohnungseigentumsgesetzes und zur Änderung von kosten- und grundbuchrechtlichen Vorschriften (Wohnungseigentumsmodernisierungsgesetz) ergeben könnten (vgl. § 9a Abs. 1 Satz 2 WEG in der Fassung vom 1. Dezember 2020; vgl. hierzu: Kral in BeckOK, WEG, 46. Edition 1.10.2021, § 8; sowie Müller in: BeckOK, WEG, 46. Edition 1.10.2021, § 9a Rn. 66). Die Anfechtungsberechtigung der Klägerin zu 1 ist nämlich - losgelöst von diesen Fragestellungen - in jeder dieser Konstellationen gegeben: Wäre (noch) keine Änderung der Eigentumsverhältnisse eingetreten, wäre die Klägerin zu 1 als Alleineigentümerin (nach wie vor) Nachbarin im baurechtlichen Sinne; wäre eine Wohnungseigentümergemeinschaft entstanden, wäre die Klägerin zu 1 jedenfalls als Sondereigentümerin (aller Wohneinheiten) klagebefugt.
38
Der einzelne Sondereigentümer kann gem. § 13 Abs. 1 Halbsatz 2 WEG in der Fassung vom 12. Januar 2021 (vgl. zur Maßgeblichkeit der rechtlichen und tatsächlichen Verhältnisse im Zeitpunkt der letzten mündlichen Verhandlung bei der Beurteilung der Sachurteilsvoraussetzungen: BVerwG, U.v. 2.11.2017 - 7 C 25/15 - juris Rn. 17; U.v. 27.3.1998 - 4 C 14.96 - juris Rn. 20; Happ, in: Eyermann, Verwaltungsgerichtsordnung, 15. Auflage 2019, § 42 Rn. 79) baurechtliche Nachbarrechte aus eigenem Recht geltend machen, wenn eine konkrete Beeinträchtigung seines Sondereigentums in Frage steht (BVerwG, U.v. 20.8.1992 - 4 B 92/92 - juris; BayVGH, B.v. 2.10.2003 - 1 CS 03.1785 - juris Rn. 18 ff.; B.v. 2.10.2003 - 1 CS 03.1785 - juris Rn. 18; B.v. 11.2.2004 - 2 CS 04.18 - juris; B.v. 8.7.2013 - 2 CS 13.807 - juris, B.v. 10.6.2008 - 2 CS 08.1298 - juris Rn. 4; B.v. 21.1.2009 - 9 CS 08.1330-1336 - juris Rn. 2; B.v. 22.3.2010 - 15 CS 10.352 - juris Rn. 10; B.v. 12.7.2012 - 2 B 12.1211 - juris Rn. 21; B.v. 24.11.2016 -1 CS 16.2011 - juris Rn. 4; B.v. 1.3.2018 - 1 CS 17.2539 - juris Rn. 3). Dies ist beispielsweise dann der Fall, wenn das Sondereigentum im Bereich der Abstandsflächen liegt oder das bauplanungsrechtliche Rücksichtnahmegebot das Sondereigentum betrifft (BayVGH, U.v. 12.7.2012 - 2 B 12.1211 - juris Rn. 23; B.v. 8.7.2013 - 2 CS 13.807 - juris Rn. 6). Vorliegend kann nicht von vornherein ausgeschlossen werden, dass die Klägerin zu 1, die in der Sache insbesondere einen Verstoß gegen das Gebot der Rücksichtnahme geltend macht, aufgrund der Lage ihres Sondereigentums in ihren Rechten verletzt ist.
39
2. Hingegen fehlt den Klägern zu 2 bis 4 die nach § 42 Abs. 2 VwGO erforderliche Klagebefugnis, da nicht sie Eigentümer des Nachbargrundstücks FlNr. … sind, sondern - wie unter Ziffer 1. ausgeführt - entweder die Klägerin zu 1 (als Gesellschaft bürgerlichen Rechts; vgl. § 899a des Bürgerlichen Gesetzbuchs - BGB - i.Vm. § 47 Abs. 2 der Grundbuchordnung - GBO - sowie zur Grundbuchfähigkeit der GbR: BGH, U.v. 6.4.2006 - V ZB 158/05 - juris Rn. 11 ff. m.w.N.; B.v. 4.12.2008 - V ZB 74/08 - juris, insbes. Rn. 22; B.v. 28.4.2011 - V ZB 194/10 - juris) oder eine (bereits) entstandene Wohnungseigentümergemeinschaft (s.o.).
40
3. Die (somit nur) hinsichtlich der Klägerin zu 1 zulässige Klage bleibt jedoch in der Sache ohne Erfolg. Die streitgegenständliche Baugenehmigung vom 24. Februar 2020 verstößt nicht gegen im vorliegend einschlägigen vereinfachten Genehmigungsverfahren nach Art. 68 Abs. 1 Satz 1 Halbsatz 1 i.V.m Art. 59 Satz 1 Bayerische Bauordnung (BayBO) zu prüfende, (auch) die Klägerin zu 1 schützende öffentlich-rechtliche Vorschriften (§ 113 Abs. 1 Satz 1 VwGO).
41
Dritte können sich gegen eine Baugenehmigung nur dann mit Aussicht auf Erfolg zur Wehr setzen, wenn die angefochtene Baugenehmigung rechtswidrig ist und diese Rechtswidrigkeit zumindest auch auf der Verletzung von Normen beruht, die gerade auch dem Schutz des betreffenden Nachbarn zu dienen bestimmt sind (vgl. § 113 Abs. 1 Satz 1 VwGO; BayVGH, B.v. 24.3.2009 - 14 CS 08.3017 - juris Rn. 20). Es genügt daher nicht, wenn die Baugenehmigung gegen Rechtsvorschriften des öffentlichen Rechts verstößt, die nicht - auch nicht teilweise - dem Schutz der Eigentümer benachbarter Grundstücke zu dienen bestimmt sind. Dabei ist zudem zu beachten, dass ein Nachbar eine Baugenehmigung nur dann mit Erfolg anfechten kann, wenn die Genehmigung rechtswidrig ist und diese Rechtswidrigkeit sich aus einer Verletzung von Vorschriften ergibt, die im Baugenehmigungsverfahren zu prüfen waren, also die gerügte Rechtsverletzung Gegenstand des Prüfprogramms im einschlägigen Baugenehmigungsverfahren war (vgl. BayVGH, B.v. 24.3.2009 - 14 CS 08.3017 - juris Rn. 20; B.v. 8.8.2016 - 9 ZB 14.2808 - juris Rn. 9; B.v. 20.3.2018 - 15 CS 17.2523 - juris Rn. 23). Verstößt ein Vorhaben gegen eine drittschützende Vorschrift, die im Baugenehmigungsverfahren nicht zu prüfen war, trifft die Baugenehmigung insoweit keine Regelung und ist der Nachbar darauf zu verweisen, Rechtsschutz gegen das Vorhaben über einen Antrag auf bauaufsichtliches Einschreiten gegen die Ausführung dieses Vorhabens zu suchen (vgl. BVerwG, B.v. 16.1.1997 - 4 B 244/96 - juris Rn. 3; BayVGH, B.v. 14.10.2008 - 2 CS 08.2132 - juris Rn. 3).
42
a) Das Vorhaben, dessen bauplanungsrechtliche Zulässigkeit sich im Hinblick auf das vorhandene Bauliniengefüge nach § 30 Abs. 3 Baugesetzbuch (BauGB) und im Übrigen nach § 34 BauGB richtet, verletzt keine (auch) die Klägerin zu 1 schützenden Vorschriften des Bauplanungsrechts, die im vereinfachten Genehmigungsverfahren nach Art. 59 Satz 1 Nr. 1 Buchst. a) BayBO zu prüfen sind.
43
aa) Zunächst kommt es für den Erfolg der Klage der Klägerin zu 1 nicht darauf an, ob die der Beigeladenen erteilten Befreiung von der festgesetzten vorderen Baulinie (im Bereich des Schauraums) gemäß § 31 Abs. 2 BauGB (objektiv) rechtmäßig erteilt wurde.
44
Der Umfang des Rechtsschutzes eines Nachbarn bei Erteilung einer Befreiung hängt davon ab, ob die Festsetzungen, von deren Einhaltung dispensiert wird, dem Nachbarschutz dienen oder nicht. Bei einer Befreiung von einer nachbarschützenden Festsetzung ist der Nachbar schon dann in seinen Rechten verletzt, wenn die Befreiung rechtswidrig ist, weil eine, d.h. irgendeine der Voraussetzungen des § 31 Abs. 2 BauGB nicht erfüllt ist (vgl. BVerwG, B.v. 27.8.2013 - 4 B 39.13 - juris Rn. 3). Bei einer Befreiung von einer Festsetzung, die nicht (auch) den Zweck hat, die Rechte der Nachbarn zu schützen, richtet sich der Nachbarschutz dagegen nach den Grundsätzen des bauplanungsrechtlichen Gebots der Rücksichtnahme, das aufgrund der gemäß § 31 Abs. 2 BauGB gebotenen „Würdigung nachbarlicher Interessen“ Eingang in die bauplanungsrechtliche Prüfung findet. Demnach werden Nachbarrechte nur verletzt, wenn der Nachbar durch das Vorhaben infolge der zu Unrecht erteilten Befreiung unzumutbar beeinträchtigt wird (vgl. BVerwG, B.v. 8.7.1998 - 4 B 64.98 - juris Rn. 5 f.; U.v. 9.8.2018 - 4 C 7.17 - juris Rn. 12; BayVGH, B.v. 5.9.2016 - 15 CS 16.1536 - juris Rn. 25 m.w.N.; B.v. 18.12.2017 - 9 CS 17.345 - juris Rn. 15).
45
Festsetzungen zur überbaubaren Grundstücksfläche sind grundsätzlich nach einhelliger Rechtsprechung ebenso wenig wie solche zum Maß der baulichen Nutzung und zur Bauweise nachbarschützend (vgl. BVerwG, B.v. 23.6.1995 - 4 B 52/95 - juris Rn. 3 f.; B.v.19.10.1995 - 4 B 215/95 - juris Rn. 3; B.v. 19.10.1995 - 4 B 215/95 - juris Rn. 3; BayVGH, U.v. 27.1.1976 - 258 I 75 - juris Leitsatz 1; B.v. 12.7.2016 - 15 ZB 14.1108 - juris Rn. 11). Eine andere Beurteilung gilt nur, wenn im Bebauungsplan ein besonderer Anhalt zugunsten des (ausnahmsweise) auch nachbarschützenden Zwecks der Festsetzung gegeben ist (stRspr, vgl. BayVGH, B.v. 28.5.2014 - 9 CS 14.84 - juris Rn. 17; B.v. 29.7.2014 - 9 CS 14.1171 - juris Rn. 15; B.v. 12.7.2016 - 15 ZB 14.1108 - juris Rn. 11; B.v. 8.11.2016 - 1 CS 16.1864 - juris Rn. 4; B.v. 18.12.2017 - 9 CS 17.345 - juris Rn. 16; Dirnberger in: Busse/Kraus, Bayerische Bauordnung, 144. EL September 2021, Art. 66 Rn. 368). Ob Festsetzungen zur überbaubaren Grundstücksfläche auch darauf gerichtet sind, dem Schutz des Nachbarn zu dienen, hängt vom Willen der Gemeinde als Plangeberin ab (BVerwG, U.v. 9.8.2018 - 4 C 7/17 - juris Rn. 14; B.v. 23.6.1995 - 4 B 52.95 - juris Rn. 3; BayVGH, B.v. 29.8.2014 - 15 CS 14.615 - juris Rn. 24, m.w.N).
46
Dass die vordere Baulinie hier ausnahmsweise einem wechselseitigen nachbarlichen Austauschverhältnis dienen soll und nicht allein aus städtebaulichen Gründen erfolgt ist, ist nicht erkennbar. Die Festsetzung straßenseitiger Baulinien erfolgt regelmäßig aus städtebaulichen Gründen, vornehmlich zur Gestaltung des Orts- und Straßenbildes und zur Gewährleistung einer bestimmten Anordnung der Baukörper zur Straße bzw. zum rückwärtigen Grundstücksbereich hin. Solchen Festsetzungen kommt daher ganz regelmäßig keine nachbarschützende Wirkung zu (vgl. z.B. BayVGH, B.v. 26.3.2002 - 15 CS 02.423 - juris Rn. 16; VGH BW, B.v. 1.10.1999 - 5 S 2014/99 - juris Rn. 7). Insoweit kommt daher eine Rechtsverletzung der Klägerin in bauplanungsrechtlicher Hinsicht nur unter dem Aspekt einer Verletzung des im Begriff der „Würdigung nachbarlicher Interessen“ in § 31 Abs. 2 BauGB verankerten Rücksichtnahmegebots in Betracht, die hier aber, insbesondere im Hinblick auf eine etwaige „einmauernde“ oder „erdrückende“ Wirkung des Bauvorhabens angesichts der Lage, der Höhe des (eingeschossigen) Baukörpers und der Relation zur Bebauung auf dem Nachbargrundstück (insbesondere Punkthochhäuer) und insbesondere der Abstände zueinander - die Abstandsflächen sind überdies eingehalten (s.u.) - nicht gegeben ist (vgl. zum „Einmauerungseffekt“ allgemein: vgl. BayVGH, B.v. 10.12.2008 - 1 CS 08.2770 - juris Rn. 23; B.v. 5.7.2011 - 14 CS 11.814 - juris Rn. 21; B.v. 13.3.2014 - 15 ZB 13.1017 - juris Rn. 9; B.v. 23.4.2014 - 9 CS 14.222 - juris Rn. 12; B.v. 19.3.2015 - 9 CS 14.2441 - juris Rn. 31; B.v. 30.9.2015 - 9 CS 15.1115 - juris Rn. 13; B.v. 5.9.2016 - 15 CS 16.1536 - juris Rn. 28; B.v. 10.3.2018 - 15 CS 17.2523 - juris Rn. 27).
47
bb) Auch eine Verletzung von Nachbarrechten hinsichtlich des Einfügensmerkmals der Art der baulichen Nutzung, namentlich eines etwaigen Gebietserhaltungsanspruchs, ist nicht ersichtlich.
48
Unbeschadet das Umstands, dass der Klägerin zu 1 - wäre sie Sondereigentümerin - schon kein Anspruch auf Wahrung einer etwaigen Gebietsart zustünde (vgl. dazu: BayVGH, U.v. 12.7.2012 - 2 B 12.1211 - juris Rn. 22, 23, bestätigt durch BVerwG; B.v. 10.1.2013 - 4 B 48.12 - juris; BayVGH, B.v. 8.7.2013 - 2 CS 13.807 - juris Rn. 4 ff. m.w.N.; VG München, U.v. 6.6.2016 - M 8 K 15.2783 - juris Rn. 30; B.v. 30.6.2017 - M 8 SN 14.2208 - juris Rn. 18 ff.), stellt sich die maßgebliche nähere Umgebung nach der auf der Grundlage des amtlichen Lageplans, der über Google maps verfügbaren Luftbilder und der im richterlichen Augenschein gewonnen Erkenntnisse nach Überzeugung des Gerichts als Gemengelage (§ 34 Abs. 1 Satz 1 BauGB) dar, in welcher ohnehin kein Gebietserhaltungsanspruch besteht (vgl. dazu BayVGH, U.v. 13.09.2012 - 2 B 12.109 - juris Rn. 33; VG München, U.v. 15.10.2012 - M 8 K 11.4426 - juris Rn. 36). Der Gebietserhaltungsanspruch des Nachbarn setzt voraus, dass das Grundstück in einem festgesetzten oder in einem faktischen Baugebiet (§ 34 Abs. 2 BauGB) liegt, und ist im Ergebnis darauf gerichtet, Vorhaben zu verhindern, die nach Art der baulichen Nutzung weder regelmäßig noch ausnahmsweise in diesem Gebiet zulässig sind (vgl. BVerwG, U.v. 16.9.1993 - 4 C 28/91 - juris Rn. 13).
49
Den örtlichen Maßstab für die planungsrechtliche Zulässigkeit eines Vorhabens bildet nach § 34 Abs. 1 Satz 1 und Abs. 2 BauGB die „nähere Umgebung“ und das dort tatsächlich Vorhandene (zum jeweils identischen Maßstab der prägenden Umgebung bei § 34 Abs. 1 und Abs. 2 BauGB vgl. BVerwG, B.v. 14.10.2019 - 4 B 27.19 - juris Rn. 7 ff.; BayVGH, U.v. 27.9.2021 - 15 B 20.828 - juris Rn. 28). Der die nähere Umgebung bildende Bereich reicht so weit, wie sich die Ausführung des zur bauaufsichtlichen Prüfung gestellten Vorhabens auswirken kann und wie die Umgebung ihrerseits den bodenrechtlichen Charakter des Baugrundstücks prägt oder doch beeinflusst (vgl. BVerwG, U.v. 26.5.1978 - 4 C 9.77 - juris Rn. 33; U.v. 5.12.2013 - 4 C 5.12 - juris Rn. 10; B.v. 20.8.1998 - 4 B 79.98 - juris Rn. 7; U.v. 8.12.2016 - 4 C 7.15 - juris Rn. 9; B.v. 27.3.2018 - 4 B 60.17 - juris Rn. 7), wobei darauf abzustellen ist, was in der Umgebung tatsächlich vorhanden ist, so dass zur maßstabsbildenden „vorhandenen Bebauung“ auch - wie her angrenzend - ein qualifiziert geplantes Gebiet gehören kann (vgl. BVerwG, B.v. 27.3.2018 - 4 B 60.17 - juris Rn. 7; B.v. 10.7.2000 - 4 B 39.00 - juris Rn. 7; B.v. 24.11.2009 - 4 B 1.09 - juris Rn. 5). Daraus folgt, dass nicht nur die unmittelbare Nachbarschaft des Baugrundstücks zu berücksichtigen ist, sondern auch die Bebauung der weiteren Umgebung insoweit berücksichtigt werden muss, als auch diese noch prägend auf das Baugrundstück einwirkt (vgl. BVerwG, U.v. 26.5.1978 - 4 C 9.77 - juris Rn. 33). Wie weit diese wechselseitige Prägung reicht, ist eine Frage des Einzelfalls. Die Grenzen der näheren Umgebung lassen sich nicht schematisch festlegen, sondern sind nach der städtebaulichen Situation zu bestimmen, in die das für die Bebauung vorgesehene Grundstück eingebettet ist (vgl. BVerwG, B.v. 28.8.2003 - 4 B 74.03 - juris Rn. 2; BayVGH, B.v. 16.12.2009 - 1 CS 09.1774 - juris Rn. 21; B.v. 27.9.2010 - 2 ZB 08.2775 - juris Rn. 4). In der Regel gilt bei einem inmitten eines Wohngebiets gelegenen Vorhaben als Bereich gegenseitiger Prägung das Straßengeviert und die gegenüberliegende Straßenseite (vgl. BayVGH, U.v. 10.7.1998 - 2 B 96.2819 - juris Rn. 25; B.v. 27.9.2010 - 2 ZB 08.2775 - juris Rn. 4; U.v. 12.12.2013 - 2 B 13.1995 - juris Rn. 16; B.v. 30.1.2013 - 2 ZB 12.198 - juris Rn. 5; U.v. 24.7.2014 - 2 B 14.1099 - juris Rn. 20; B.v. 14.2.2018 - 1 CS 17.2496 - juris Rn. 16 f.; OVG Koblenz, U.v. 8.3.2017 - 8 A 10695/16 - Rn. 30; VG München, U.v. 25.1.2016 - M 8 K 14.5723 - juris Rn. 34; U.v. 22.1.2018 - M 8 K 16.3662 - juris Rn. 47 f.). Dabei ist jedoch die maßgebliche nähere Umgebung für jedes der in § 34 Abs. 1 Satz 1 BauGB aufgeführten Zulässigkeitsmerkmale gesondert zu ermitteln, weil die prägende Wirkung der jeweils maßgeblichen Umstände unterschiedlich weit reichen kann (vgl. BVerwG, B.v. 6.11.1997 - 4 B 172.97 - juris Rn. 5; B.v. 13.5.2014 - 4 B 38.13 - juris Rn. 7; U.v. 8.12.2016 - 4 C 7.15 - juris Rn. 9; BayVGH, B.v. 16.12.2009 - 1 CS 09.1774 - juris Rn. 21; U.v. 18.7.2013 - 14 B 11.1238 - juris Rn. 19; B.v. 14.2.2018 - 1 CS 17.2496 - juris Rn. 13). Bei der bauplanungsrechtlichen Beurteilung der Art der baulichen Nutzung bzw. der Ermittlung des Gebietscharakters kann der maßgebliche prägende Umgebungsbereich weiter zu ziehen sei als etwa bei der eher kleinräumig ausgerichteten Beurteilung des Nutzungsmaßes oder der überbaubaren Grundstücksfläche (vgl. BVerwG, B.v. 13.5.2014 - 4 B 38/13 - juris Rn. 7; BayVGH, B.v. 19.12.2006 - 1 ZB 05.1371 - juris Rn. 19; U.v. 18.7.2013 - 14 B 11.1238 - juris Rn. 19 f.; U.v. 27.9.2021 - 15 B 20.828 - juris Rn. 29; Mitschang/Reidt in Battis/Krautzberger/Löhr, BauGB, 14. Aufl. 2019, § 34 Rn. 1 m.w.N.). Entscheidend ist auch hier, wie weit die wechselseitigen Auswirkungen im Verhältnis von Vorhaben und Umgebung im Einzelfall reichen (vgl. OVG Münster, U.v. 1.3.2017 - 2 A 46/16 - juris Rn. 35 m.w.N). Neben der Perspektive des stehenden Menschen kann es für die Feststellung der maßgeblichen näheren Umgebung auch auf den „Blick von oben“ (Lagepläne, Luftbilder u. ä.) ankommen (vgl. BVerwG, B.v. 13.5.2014 - 4 B 38.13 - juris Rn. 12 f.; BayVGH, B.v. 7.2.2013 - 15 CS 19.2013 - juris Rn. 30; U.v. 27.9.2021 - 15 B 20.828 - juris Rn. 29).
50
Unter Berücksichtigung dieser Vorgaben und auf der Grundlage der im Rahmen des gerichtlichen Augenscheins getroffenen Feststellungen, der in den Akten befindlichen Lagepläne und über das Internet zugänglichen Luftbilder (Google maps) gelangt das Gericht vorliegend zu der Überzeugung, dass eine Einbeziehung der auf der nord-westlichen Seite der … straße vorhandenen Bebauung ausscheidet, weil diese nach dem Eindruck, den das Gericht insbesondere im Rahmen des Augenscheins sowie auf der Grundlage der vorhandenen Bauvorlagen gewonnen hat, trennende Wirkung entfaltet. Die … straße bildet insbesondere aufgrund ihrer Breite (abgegriffen aus dem Lageplan ca. 40 m) und Ausgestaltung (zwei Fahrbahnen in jede Fahrtrichtung mit einer Straßenbahntrasse in der Mitte, auf beiden Seiten jeweils Parkbuchten, Grünstreifen und Geh- und Radweg) eine deutlich im Stadtbild wahrnehmbare Zäsur, sodass beiden Straßenseiten planungsrechtlich die wechselseitige Prägung fehlt. Was die Bebauung auf der süd-östlichen Seite der … straße anbelangt, ist aus Sicht der Kammer das maßgebliche Referenzgebiet hinsichtlich der Art der baulichen Nutzung jedoch grundsätzlich weit zu fassen, weil das Bauvorhaben aufgrund der Art seiner Nutzung auf eine weitere Umgebung Einfluss nimmt.
51
Die Vielzahl der vorhandenen, unterschiedlichen Nutzungen lässt sich keinem bestimmten Baugebietstypus der BauNVO zuordnen (§ 34 Abs. 2 BauGB). Mangels Entscheidungserheblichkeit kann dabei dahinstehen, ob das maßgebliche Quartier nach Nordosten bis zur … Straße heranreicht oder aufgrund der Entfernung zum Baugrundstück vorher endet. Insbesondere schließt die hohe Anzahl an vorhandener Wohnnutzung (z.B. Nachbargrundstück sowie FlNrn. …, …, …*) die Qualifikation des Gebietes als Kerngebiet (§ 7 BauNVO) aus. In einem Gewerbegebiet (§ 8 BauNVO) sind Wohnungen ohne Zweckbindung für Aufsichts- und Bereitschaftspersonal generell unzulässig, sodass eine entsprechende Einordnung ebenfalls scheitert. Die maßgebliche nähere Umgebung ist auch nicht als faktisches Mischgebiet i.S.v. § 6 BauNVO anzusehen. Dieser Einordnung steht insbesondere das „…-Zentrum …“ auf dem Grundstück FlNr. … entgegen, welches angesichts der Größe und dem Umfang des Betriebs, der technischen und der personellen Ausstattung und des einer solchen Betriebsform typischerweise innewohnenden Störpotentials (vgl. hierzu: BayVGH, B.v. 28.6.2011 - 15 ZB 10.3134 - juris Rn. 13 m.w.N.) nicht mehr als „das Wohnen nicht wesentlich störender Gewerbebetrieb“ und mithin nicht als mischgebietsverträglich eingeordnet werden kann (vgl. BVerwG, U.v. 7.2.1986 - 4 C 49.82 - juris Rn. 17 ff.; B.v. 22.11.2002 - 4 B 72.02 - juris Rn. 3; BayVGH, U.v. 27.9.2021 - 15 B 20.828 - juris Rn. 32 ff.; SächsOVG, U.v. 9.3.2018 - 1 A 552/15 - juris Rn. 40 ff.; OVG NW, U.v. 24.1.2012 - 10 A 2786/09 - juris Rn. 37 ff.).
52
Das Gebiet entspricht mithin keiner städtebaulichen Ordnungsvorstellung und entzieht sich einer Klassifizierung. Die nähere Umgebung ist mithin ein Gebiet sui generis (sog. Gemengelage), sodass sich die bauplanungsrechtliche Zulässigkeit hinsichtlich der Art der baulichen Nutzung nach § 34 Abs. 1 BauGB richtet und der Klägerin zu 1 (jedenfalls auch deswegen) kein Gebietserhaltungsanspruch zusteht.
53
b) Die Regelungen zum Maß der baulichen Nutzung, der Bauweise und der Grundstücksfläche, die überbaut werden soll, beinhalten grundsätzlich keinen Drittschutz (vgl. z.B. BVerwG, B.v. 11.3.1994 - 4 B 53/94 - juris Rn. 4; B.v. 23.6.1995 - 4 B 52.95 - juris Rn. 3; B.v. 19.10.1995 - 4 B 215/95 - juris Rn. 3; BayVGH, B.v. 29.9.2008 - 1 CS 08.2201 - juris Rn. 1; B.v. 6.11.2008 - 14 ZB 08.2327 - juris Rn. 9; B.v. 6.11.2008 - 14 ZB 08.2327 - juris Rn. 9; B.v. 5.12.2012 - 2 CS 12.2290 - juris Rn. 3; B.v. 12.9.2013 - 2 CS 13.1351 - juris Rn. 3; B.v. 30.9.2014 - 2 ZB 13.2276 - juris Rn. 4; B.v. 2.2.2019 - 9 CS 18.2305 - juris Rn. 14 m.w.N.; B.v. 4.7.2016 - 15 ZB 14.891 - juris Rn. 8 m.w.N.; B.v. 2.11.2020 - 1 CS 20.1955 - juris Rn. 3; B.v. 2.2.2019 - 9 CS 18.2305 - juris Rn. 14 m.w.N.; B.v. 4.7.2016 - 15 ZB 14.891 - juris Rn. 8 m.w.N.; VG München, B.v. 5.4.2017 - M 8 S7 17.1207 - juris Rn. 2; U.v. 17.5.2021 - M 8 K 19.6030 - juris Rn. 82), weshalb sich die Klägerin zu 1 auf eine subjektive Rechtsverletzung diesbezüglich nicht berufen kann. Eine Rechtsverletzung kommt insofern in bauplanungsrechtlicher Hinsicht nur unter dem Aspekt einer Verletzung des Rücksichtnahmegebots in Betracht, welches hier jedoch ebenfalls nicht verletzt ist (siehe nachfolgend c)).
54
c) Das Vorhaben verletzt zu Lasten der Klägerin zu 1 auch nicht das drittschützende Gebot der Rücksichtnahme.
55
Inhaltlich zielt das Gebot der Rücksichtnahme darauf ab, Spannungen und Störungen, die durch unverträgliche Grundstücksnutzungen entstehen können, möglichst zu vermeiden. Welche Anforderungen das Gebot der Rücksichtnahme begründet, hängt wesentlich von den jeweiligen Umständen des Einzelfalls ab. Je empfindlicher und schutzwürdiger die Stellung desjenigen ist, dem die Rücksichtnahme im gegebenen Zusammenhang zugutekommt, umso mehr kann er eine Rücksichtnahme verlangen. Je verständlicher und unabweisbarer die mit dem Vorhaben verfolgten Interessen sind, umso weniger braucht derjenige, der das Vorhaben verwirklichen will, Rücksicht zu nehmen. Für eine sachgerechte Bewertung des Einzelfalls kommt es wesentlich auf eine Abwägung zwischen dem, was einerseits dem Rücksichtnahmebegünstigten und andererseits dem Rücksichtnahmeverpflichteten nach Lage der Dinge zumutbar ist, an (vgl. BVerwG, U.v. 25.2.1977 - 4 C 22.75 - juris Rn. 22; U.v. 28.10.1993 - 4 C 5.93 - juris Rn. 17; U.v. 23.9.1999 - 4 C 6.98 - juris Rn. 20; U.v. 18.11.2004 - 4 C 1/04 - juris Rn. 22; U.v. 29.11.2012 - 4 C 8/11 - juris Rn. 16; BayVGH, B.v. 12.9.2013 - 2 CS 13.1351 - juris Rn. 4). Bei der Interessengewichtung spielt es eine maßgebliche Rolle, ob es um ein Vorhaben geht, das grundsätzlich zulässig und nur ausnahmsweise unter bestimmten Voraussetzungen nicht zuzulassen ist, oder ob es sich - umgekehrt - um ein solches handelt, das an sich unzulässig ist und nur ausnahmsweise zugelassen werden kann. Bedeutsam ist ferner, inwieweit derjenige, der sich gegen das Vorhaben wendet, eine rechtlich geschützte wehrfähige Position inne hat (vgl. BVerwG, B.v. 6.12.1996 - 4 B 215/96 - juris Rn. m.w.N.). Das Rücksichtnahmegebot ist dann verletzt, wenn unter Berücksichtigung der Schutzwürdigkeit des Betroffenen, der Intensität der Beeinträchtigung und der wechselseitigen Interessen das Maß dessen, was billigerweise noch zumutbar ist, überschritten wird (vgl. BVerwG, U.v. 25.2.1977 - IV C 22.75 - juris Rn. 22).
56
Vor diesem Hintergrund wird deutlich, dass auch aus dem Rücksichtnahmegebot kein Recht des Nachbarn abzuleiten ist, dass in seiner Nachbarschaft nur objektiv rechtmäßige Bauvorhaben entstehen (vgl. BayVGH, B.v. 13.3.2014 - 15 ZB 13.1017 - juris Rn. 11; BayVGH, B.v. 13.3.2014 - 15 ZB 13.1017 - juris Rn. 11; B.v. 20.3.2018 - 15 CS 17.2523 - juris Rn. 26). Das Rücksichtnahmegebot legt dem Bauherrn zudem auch keine Pflicht auf, generell die für den Nachbarn am wenigsten beeinträchtigende Alternative für seine Bauabsicht zu wählen (BVerwG, B.v. 26.6.1997 - 4 B 97/97 - juris Rn. 6). Denn eine Rechtsverletzung ist erst dann zu bejahen, wenn von dem Vorhaben eine unzumutbare Beeinträchtigung ausgeht (vgl. BayVGH, B.v. 22.6.2011 - 15 CS 11.1101 - juris Rn. 17; B.v. 23.4.2014 - 9 CS 14.222 - juris Rn. 12; B.v. 7.2.2012 - 15 CE 11.2865 - juris Rn. 14; B.v. 30.9.2015 - 9 CS 15.1115 - juris Rn. 14; B.v. 3.6.2016 - 1 CS 16.747 - juris Rn. 7).
57
Entgegen dem Vorbringen der Klägerin zu 1 verstößt die streitgegenständliche Baugenehmigung insbesondere nicht deswegen gegen das Rücksichtnahmegebot (vgl. BayVGH, U.v. 18.7.2002 - 1 B 98.2945 - juris Rn. 49; U.v. 16.11.2006 - 26 B 03.2486 - juris Rn. 29; vgl. auch VGH Mannheim, B.v. 30.1.2019 - 5 S 1913/18 - juris Rn. 38 und B.v. 2.10.2019 - 3 S 1470/19 - juris Rn. 71, der in einem ähnlichen Fall lediglich allgemein von der Rechtswidrigkeit der Baugenehmigung ausgeht) bzw. ist im Hinblick auf das Rücksichtnahmegebot und damit in nachbarrechtlich relevanter Weise auch nicht deswegen unbestimmt (vgl. BayVGH, B.v. 2.10.2012 - 2 ZB 12.1898 - juris Rn. 8; VGH Kassel, B.v. 30.1.2012 - 4 B 2379/11 - juris Rn. 5 ff.), weil angesichts der zu erwartenden Geräuschbelastung nicht gesichert sei, dass die beauflagten Immissionsgrenzwerte bei genehmigungskonformen Betrieb tatsächlich eingehalten werden könnten.
58
Soweit - wie hier - ein Rücksichtnahmeverstoß aufgrund von Immissionsbelastungen geltend gemacht wird, wird zur Konturierung der Zumutbarkeitsschwelle des Rücksichtnahmegebots auf die materiell-rechtlichen Maßstäbe des Immissionsschutzrechts, also auf die Schwelle schädlicher Umwelteinwirkungen i.S.v. § 3 Abs. 1 BImSchG zurückgegriffen (vgl. BayVGH, B.v. 27.11.2019 - 15 CS 19.1906 - juris Rn. 56). Schädliche Umwelteinwirkungen sind gem. § 3 Abs. 1 BImSchG solche Immissionen, die nach Art, Ausmaß oder Dauer geeignet sind, Gefahren, erhebliche Nachteile oder erhebliche Belästigungen für die Allgemeinheit oder die Nachbarschaft herbeizuführen. (Lärm- und Geräusch-) Immissionen sind grundsätzlich unzumutbar und verletzen das Rücksichtnahmegebot, wenn sie geeignet sind, erhebliche Belästigungen im Sinne des § 3 Abs. 1 BImSchG für die Nachbarschaft hervorzurufen (ständige Rspr., vgl. z.B. BVerwG, U. v. 27.8.1998 - 4 C 5.98 - juris Rn. 30; BayVGH, B.v. 27.12.2017 - 15 CS 17.2061 juris Rn 26). Bei der Erteilung einer Baugenehmigung ist deshalb sicherzustellen, dass bei der Nutzung des genehmigten Vorhabens keine schädlichen Umwelteinwirkungen entstehen. Für die Beurteilung von betriebsbedingten Lärmimmissionen des zugelassenen Vorhabens sind die Vorgaben der TA Lärm maßgeblich. Als normkonkretisierender Verwaltungsvorschrift kommt der TA Lärm, soweit sie für Geräusche den unbestimmten Rechtsbegriff der schädlichen Umwelteinwirkungen konkretisiert, eine im gerichtlichen Verfahren grundsätzlich zu beachtende Bindungswirkung zu (vgl. BVerwG, U.v. 29.11.2012 - 4 C 8.11 - juris Rn. 18 m.w.N.; BayVGH, B.. 23.1.2018 - 15 CS 17.2575 - juris Rn. 23).
59
Die Bauaufsichtsbehörde hat bei der Prüfung, ob und inwieweit von einer geplanten Nutzung Immissionen ausgehen können, der Reichweite der Immissionen nachzugehen. Sie muss insbesondere prüfen, in welchem Umkreis die Immissionen noch zumutbar sind. Sie ist daher verpflichtet, zugunsten eines Nachbarn mittels einer konkreten Betriebsbeschreibung, durch Auflagen in der Baugenehmigung oder durch Ähnliches sicherzustellen, dass der Nachbar vor unzumutbaren Immissionen ausreichend geschützt wird (vgl. BayVGH, U.v. 16.11.2006 - 26 B 03.2486 - juris Rn. 28 und 30; B.v. 2.10.2012 - 2 ZB 12.1898 - juris Rn. 5); hierauf hat der Nachbar einen Anspruch (vgl. BayVGH, U.v. 16.11.2006 - 26 B 03.2486 - juris Rn. 28).
60
(aa) Wenn es um die Lösung einer Immissionskonfliktlage geht, reicht es dabei sowohl im Hinblick auf die Anforderungen der Bestimmtheit der Baugenehmigung als auch des Rücksichtnahmegebots in der Regel aus, wenn dem Emittenten aufgegeben wird, beim Betrieb seiner Anlage näher bestimmte Richtwerte einzuhalten (vgl. grundlegend BVerwG, U.v. 5.11.1968 - I C 29.67 - juris Rn. 11; U.v. 24.6.1971 - I C 39.67 - juris Rn. 8; BayVGH, B.v. 15.11.2011 - 14 AS 11.2305 - juris Rn. 31; VG München, U.v. 12.10.2020 - M 8 K 18.3809 - juris Rn. 38). Eine solche zielorientierte Festlegung von Immissionsrichtwerten ist im streitgegenständlichen Bescheid erfolgt: In Ziffer 1.2 der in der Baugenehmigung vom 24. Februar 2020 enthaltenen Auflagen des Referates für Gesundheit um Umwelt zum Immissionsschutz ist festgelegt, dass die vom gesamten Bauvorhaben mit Betriebseinrichtungen (Lüftungen, Werkstätten etc.) sowie dem zuzuordnenden Betriebsverkehr (Lieferanten, Bedienstete, Reparaturfahrzeuge etc.) ausgehenden Geräusche an den maßgeblichen Immissionsorten nach Ziffer 2.3 der TA Lärm (im Einzelnen näher) bestimmte Immissionsrichtwerte nicht überschreiten dürfen. Darüber hinaus ist festgelegt, dass einzelne kurzzeitige Geräuschspitzen die Immissionsrichtwerte am Tag um nicht mehr als 30 dB(A) und in der Nacht um nicht mehr als 20 db(A) überschreiten dürfen (vgl. Nr. 6.1 Satz 2 TA Lärm). Mit Blick das Nachbargrundstück wurden dabei die Immissionsrichtwerte eines allgemeinen Wohngebiets (Nr. 6.1 Satz 1 Buchst. e) TA Lärm) angesetzt und der Klägerin zu 1, deren Grundstück/Wohnungseigentum - wie oben dargelegt - als Teil einer Gemengelage anzusehen ist, damit ein höherer Schutzstatus zugestanden, als sie objektiv beanspruchen könnte.
61
(bb) Die Festlegung von Immissionsrichtwerten genügt zur Sicherung der Nachbarrechte allerdings nur, wenn sie geeignet und ausreichend ist, die Erfüllung der Anforderungen des Rücksichtnahmegebots auch für den Fall, dass von der Baugenehmigung im vollem Umfang Gebrauch gemacht wird, sicherzustellen (vgl. BayVGH, B.v. 9.7.2012 - 22 CS 12.575 - juris Rn. 25), d.h. zu gewährleisten, dass die bei der Nutzung der Anlage entstehenden Immissionen die für die Nachbarschaft maßgebliche Zumutbarkeitsgrenze nicht überschreiten (vgl. BayVGH, B.v. 2.10.2012 - 2 ZB 12.1898 - juris Rn. 5). Die Festlegung des maßgeblichen Immissionsrichtwerts ist insofern zur Sicherung der Nachbarrechte nur dann ausreichend, wenn feststeht, dass die bei der Nutzung der Anlage entstehenden Immissionen die für die Nachbarschaft maßgebliche Zumutbarkeitsgrenze nicht überschreiten (vgl. BayVGH, B.v. 2.10.2012 - 2 ZB 12.1898 - juris Rn. 5; VGH Kassel, B.v. 30.1.2012 - 4 B 2379/11 - juris Rn. 8; VG München, U.v. 12.10.2020 - M 8 K 18.3809 - juris Rn. 38). Daher muss, wenn die bei der Nutzung der Anlage entstehenden Immissionen bei regelmäßigem Betrieb die für die Nachbarschaft maßgebliche Zumutbarkeitsgrenze überschreiten, die genehmigte Nutzung schon in der Baugenehmigung durch (weitere) konkrete Regelungen eingeschränkt werden (vgl. BayVGH, U.v. 18.7.2002 - 1 B 98.2945 - juris Leitsatz, Rn. 53 ff., 58; B.v. 15.11.2011 - 14 AS 11.2305 - juris Rn. 31; VGH Kassel, B.v. 30.1.2012 - 4 B 2379/11 - juris Rn. 10; VG München, U.v. 12.10.2020 - M 8 K 18.3809 - juris Rn. 38). Ebenso wenig ist die bloße Festsetzung von Immissionsrichtwerten im Hinblick auf die Anforderungen des Bestimmtheitsgrundsatzes im Hinblick auf das Gebot der Rücksichtnahme bzw. das Rücksichtnahmegebot selbst ausreichend, wenn aufgrund der Umstände des Einzelfalls hinreichend konkrete Anhaltspunkte dafür bestehen, dass diese bei regelmäßigem Betrieb der geplanten Anlage nicht eingehalten werden können. Denn in diesem Fall ist ebenso wenig sichergestellt, dass der Nachbar durch die geplante Anlage keinen unzumutbaren Immissionen ausgesetzt ist (vgl. BayVGH, U.v. 18.7.2002 - 1 B 98.2945 - juris Rn. 49; U.v. 16.11.2006 - 26 B 03.2486 - juris Rn. 30; B.v. 2.10.2012 - 2 ZB 12.1898 - juris Rn. 7 f.; VGH Kassel, B.v. 30.1.2012 - 4 B 2379/11 - juris Rn 7). Derartige, trotz auf das Gegenteil hindeutender Anhaltspunkte nicht auf ihre tatsächliche Einhaltbarkeit geprüfte Richtwertfestsetzungen sind nicht geeignet, den schützenswerten Belangen des Nachbarn ausreichend Rechnung zu tragen (vgl. VGH Mannheim, B.v. 2.10.2019 - 3 S 1470/19 - juris Rn. 71). Die gegenteilige Sichtweise würde den Nachbarn unangemessen benachteiligen, da er selbst im Regelfall die Einhaltung der Immissionsrichtwerte nicht überprüfen kann und zudem regelmäßig nicht zu vermeidende Unsicherheiten bei nachträglichen Kontrollen zu seinen Lasten und damit zu Lasten des zu Schützenden gehen (vgl. BayVGH, B.v. 2.10.2012 - 2 ZB 12.1898 - juris Rn. 6; VGH Kassel, B.v. 30.1.2012 - 4 B 2379/11 - juris Rn. 7, 9). Daher muss, sofern konkrete Anhaltspunkte dafür bestehen, dass Richtwerte tatsächlich nicht eingehalten werden können, vor deren Festsetzung das konkrete Störpotenzial des zur Genehmigung stehenden Vorhabens ermittelt und geprüft werden, ob die beabsichtigten Auflagen und sonstigen Regelungen der Baugenehmigung tatsächlich ausreichen, um das (auch) zu Gunsten der Nachbarn zu wahrende, dem Gebot der gegenseitigen Rücksichtnahme entsprechende Schutzniveau tatsächlich zu erreichen (vgl. BayVGH, B.v. 15.11.2011 - 14 AS 11.2305 - juris Rn. 32).
62
Vorliegend bestehen keine konkreten Anhaltspunkte dafür, dass die von der Beklagten für den Betrieb vorgegebenen Immissionsrichtwerte zu Lasten der Klägerin zu 1 nicht eingehalten würden und das (Sonder-)Eigentum der Klägerin zu 1 bei regelmäßigem Betrieb des Vorhabens unzumutbaren Beeinträchtigungen, insbesondere durch Lärm, ausgesetzt wäre.
63
Die Beklagte hat sich im Baugenehmigungsverfahren mit den Auswirkungen des Betriebs befasst und im Genehmigungsbescheid neben den - für die Klägerin im Übrigen günstigeren, da überobligatorischem Schutzniveau (s.o.) - Immissionsrichtwerten für ein allgemeines Wohngebiet weitere betriebsbeschränkende Regelungen getroffen (vgl. Ziffern 1.3 bis 1.9 der im streitgegenständlichen Bescheid enthaltenen „Auflagen des Referates für Gesundheit und Umwelt zum Immissionsschutz, S. 2 ff.). Insbesondere müssen bei den Betriebs- und Werkstatträumen während der Durchführung von lärmintensiven Arbeiten Fenster, ins Freie führende Türen und Tore geschlossen gehalten werden (Ziffer 1.5.). Darüber hinaus dürfen im Freien keine lärmintensiven Arbeiten (z.B. Arbeiten mit Trennschleifern, Dampfstrahlern, Schlagschraubern, Hämmern oder Dengeln etc.) durchgeführt werden (Ziffer 1.6). Schließlich ist auch zu berücksichtigen, dass die Kfz-Werkstatt an der südwestlichen Grundstücksgrenze des Baugrundstücks und damit an der von der Klägerin zu 1 abgewandten Seite situiert ist. Hinzu kommt schließlich der Abstand des Hauptbaukörpers, insbesondere des Werkstattkomplexes, zur Grenze des Nachbargrundstücks sowie der dortigen Bebauung.
64
Auch hinsichtlich der auf dem Baugrundstück vorhandenen Stellplätze sind von der Klagepartei weder substantiiert Anhaltspunkte dafür vorgetragen worden noch sind solche ersichtlich, dass die im Genehmigungsbescheid festgelegten Immissionsrichtwerte zu Lasten der Klägerin zu 1 überschritten würden. Insbesondere der klägerische Vortrag, es sei zu berücksichtigen, dass es sich vorliegend um einen Fahrzeugtyp handle, der deutlich lauter sei als reguläre Pkw - in der Regel deutlich über 72 dB(A) -, Fahrzeugbewegungen in der vorgenannten Lautstärke infolge der äußerst geringen Abstände der Fahr-, Rangier- und Abstellflächen zum Nachbargrundstück rücksichtslos seien und voraussichtlich die Grenzwerte der TA Lärm überschritten würden, ist nicht substantiiert genug, einen konkreten Anhalt dafür zu liefern, dass es bei regelmäßigem Betrieb zu einem Überschreiten der festgelegten Lärmrichtwerte käme. Es wird lediglich eine nicht näher belegte oder konkretisierte Aussage getätigt, dass Fahrzeuge des vorliegenden Typs „in der Regel“ deutlich lauter als 72 dB(A) seien und dass „voraussichtlich“ die Grenzwerte überschritten würden. Darüber hinaus ist zu berücksichtigen, dass der Bescheid in Ziffer 1.7 des Auflagenkatalogs zum Immissionsschutz ein Verbot unnötigen Laufenlassens von lärm- und abgaserzeugenden Fahrzeugen auf dem Betriebsgelände enthält und - was nach den gerichtlichen Augenscheinsfeststellung tatsächlich geschehen ist - entsprechende Hinweisschilder anzubringen sind.
65
Auch aus dem übrigen Vorbringen in der Klagebegründung sind keine konkreten Anhaltspunkte dafür erkennbar, dass das Vorhaben bei regelmäßigem Betrieb am Anwesen der Klägerin zu 1 die festgesetzten Immissionsrichtwerte nicht einhalten würde.
66
Soweit die Klägerin zu 1 einwendet, Kfz-Bewegungen in der Nacht seien nicht ausgeschlossen worden, ist zunächst insbesondere auf Ziffer 1.9 der Auflagen zum Immissionsschutz des Genehmigungsbescheids vom 24. Februar 2020 zu verweisen, wonach die Betriebszeit der Werkstatt auf die Werktage im Zeitraum der Tageskernzeit (07:00 bis 20:00 Uhr) beschränkt ist; während der Nachtzeit (22:00 bis 06:00 Uhr) sind zudem keine Ladetätigkeiten, Ver- oder Entsorgungstätigkeiten und kein Lieferbetrieb zulässig (vgl. Ziffer 1.8). Darüber hinaus ergibt sich auch aus der im Baugenehmigungsverfahren vorgelegten Betriebsbeschreibung vom 21. August 2019 und den darin festgelegten Betriebszeiten, dass kein Nachtbetrieb vorgesehen ist. Die Betriebsbeschreibung ist trotz eines fehlenden Genehmigungsvermerks und fehlender ausdrücklicher Inbezugnahme im streitgegenständlichen Bescheid im konkreten Fall für die Auslegung der Baugenehmigung maßgebend. Sie bildet einen Teil der Bauvorlagen (§ 1 Abs. 1 Satz 1, § 3 Nr. 3, § 9 Satz 1 der Verordnung über Bauvorlagen und bauaufsichtliche Anzeigen - Bauvorlagenverordnung - BauVorlV). Es besteht vorliegend kein Zweifel daran, dass die Baugenehmigung nach Maßgabe dieser den Bauantrag konkretisierenden Bauvorlage, die zudem den Eingangsstempel der Beklagten mit der Plan Nr. des Bauantrags trägt, erteilt werden sollte und erteilt worden ist. Letzteres bestätigt auch der Wortlaut im Bescheidstenor, in dem es dort heißt, der Bauantrag vom 22. August 2019 werde nach Plan Nr. … (…) genehmigt.
67
Zu keiner anderen Beurteilung führt auch der der Klägerin zu 1 erteilte Vorbescheid vom 15. Juni 2020, weil dieser nach Erlass der streitgegenständlichen Baugenehmigung (vom 24. Februar 2020) ergangen ist. Bei der Anfechtung einer Baugenehmigung durch einen Nachbarn ist grundsätzlich auf die Umstände zum Zeitpunkt der Behördenentscheidung abzustellen. Änderungen zu Lasten des Bauherrn werden nicht berücksichtigt, selbst wenn sie während eines laufenden Rechtsbehelfsverfahrens eintreten. Hat sich dagegen die Sach- und Rechtslage zugunsten des Bauherrn geändert, ist materiell-rechtlich auf den Zeitpunkt der gerichtlichen Entscheidung abzustellen (BayVGH, B.v. 18.1.2010 - 1 ZB 07.3187 - juris Rn. 12, m.w.N.)
68
b) Die Klägerin zu 1. kann sich weiter auch nicht auf den Verstoß gegen drittschützende Normen des Bauordnungsrechts berufen, insbesondere scheidet eine Verletzung der im vereinfachten Genehmigungsverfahren zu prüfenden (Art. 59 Satz 1 Nr. 1 Buchst. b) BayBO) nachbarschützenden Vorschriften des Abstandsflächenrechts vorliegend - und ohne dass es auf die Frage einer konkreten Beeinträchtigung des Sondereigentums ankäme - schon deswegen aus, weil die erforderlichen Abstandsflächen unstreitig und unabhängig davon, dass die Einzeichnungen von „H/4“ in den Bauvorlagen angesichts der oben dargestellten Gebietseinstufung nicht zutreffend sein dürften, auf dem Baugrundstück selbst eingehalten werden.
69
c) Unbeschadet dessen, ob sich die Klägerin zu 1, wäre sie Sondereigentümerin, hierauf überhaupt berufen könnte, scheidet eine Verletzung von subjektiven Rechten aufgrund der Baugenehmigung auch aus, soweit sich die Klägerin zu 1 auf eine Beeinträchtigung ihres Geh- und Fahrtrechts beruft, und zwar bereits deshalb, weil die Vereinbarkeit des streitgegenständlichen Bauvorhabens mit einem (auch dinglich gesicherten) Geh- und Fahrtrecht Dritter nicht Gegenstand der bauaufsichtlichen Prüfung ist. Dies ergibt sich auch aus Art. 68 Abs. 4 BayBO in der bis 31. Januar 2021 geltenden Fassung sowie Art. 68 Abs. 5 BayBO in der seit 1. Februar 2021 geltenden Fassung, wonach die Baugenehmigung unbeschadet der privaten Rechte Dritter erteilt wird. Das bedeutet, dass über die Vereinbarkeit privater Rechte Dritter - wie vorliegend eines Geh- und Fahrtrechts auf dem Baugrundstück - mit dem Bauvorhaben im Baugenehmigungsverfahren nicht entschieden wird. Die Baugenehmigung sagt über solche Rechte nichts aus und wirkt sich demnach auf sie nicht belastend bzw. unzumutbar aus. Daher begründet ein solches privates Recht grundsätzlich auch kein Abwehrrecht des Nachbarn gegen die Baugenehmigung, sondern muss zivilrechtlich vor den ordentlichen Gerichten geltend gemacht werden (BayVGH, B.v. 25.11.2013 - 2 CS 13.2267 - juris Rn. 3 ff.; B.v. 29.8.2014 - 15 CS 14.615 - juris Rn. 18; B.v. 1.6.2016 - 15 CS 16.789 - juris Rn. 15 ff., 18 f.; B.v. 6.2.2017 - 15 ZB 16.398 - juris Rn. 19; B.v. 7.11.2020 - 15 CS 20.1832 - juris Rn. 14; VG München, B.v. 1.8.2016 - M 11 SN 16.2976 - juris Rn. 22 ff.; U.v. 17.10.2018 - M 9 K 17.2673 - juris Rn. 23 ff.).
70
II. Die Klage war daher mit der Kostenfolge des § 154 Abs. 1, § 1159 Satz 1 VwGO abzuweisen.
71
Es entspricht der Billigkeit, den Klägern auch die außergerichtlichen Kosten der Beigeladenen aufzuerlegen, da diese einen Sachantrag gestellt und sich dadurch einem Kostenrisiko ausgesetzt hat, § 154 Abs. 3, § 162 Abs. 3 VwGO.
72
Die Entscheidung über die vorläufige Vollstreckbarkeit beruht auf § 167 VwGO i.V.m. §§ 708 ff. ZPO.