Inhalt

VG München, Urteil v. 25.10.2021 – M 8 K 19.4290
Titel:

Nachbarklage gegen einen Außenaufzug

Normenketten:
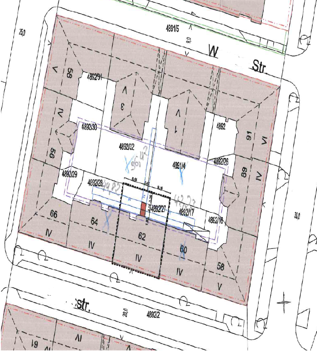
BauGB § 30 Abs. 3, § 34 Abs. 1, Abs. 2
BayBO Art. 3 Abs. 1, Art. 6, Art. 59, Art. 63 Abs. 1
Leitsätze:
1. Für den Erfolg eines Nachbarrechtsbehelfs genügt es nicht, wenn die Baugenehmigung gegen Rechtsvorschriften des öffentlichen Rechts verstößt, die nicht dem Schutz der Eigentümer benachbarter Grundstücke zu dienen bestimmt sind. (Rn. 16) (redaktioneller Leitsatz)
2. Für eine sachgerechte Bewertung des Einzelfalls kommt es wesentlich auf eine Abwägung zwischen dem, was einerseits dem Rücksichtnahmebegünstigten und andererseits dem Rücksichtnahmeverpflichteten nach Lage der Dinge zumutbar ist. (Rn. 19) (redaktioneller Leitsatz)
3. Das Gebot der Rücksichtnahme gibt dem Nachbarn nicht das Recht, von jeglicher Beeinträchtigung der Licht- und Luftverhältnisse oder der Verschlechterung der Sichtachsen von seinem Grundstück aus verschont zu bleiben. (Rn. 21) (redaktioneller Leitsatz)
4. Eine neu errichtete Aufzugsanlage ist regelmäßig nicht mit solchen Geräuschemissionen verbunden, die auf dem Nachbaranwesen als störend empfunden werden könnten. Hörbare Geräusche sind regelmäßig mit dem Wohnen verbunden und sind in einem durch Wohnnutzung geprägten Gebiet hinzunehmen. (Rn. 23) (redaktioneller Leitsatz)
5. In dicht bebauten innerstädtischen Bereichen ist eine atypische Situation dann anzunehmen, wenn jede bauliche Veränderung der vorgegebenen baulichen Situation geeignet ist, eine Abstandsflächenüberschreitung auszulösen. (Rn. 28) (redaktioneller Leitsatz)
6. Ein allgemeiner Drittschutz zugunsten des Denkmaleigentümers lässt sich dem Bayerischen Denkmalschutzgesetz nicht entnehmen. Der Denkmaleigentümer kann in seinen Rechten nur dann verletzt sein, wenn das genehmigte Vorhaben die Denkmalwürdigkeit des benachbarten Anwesens erheblich beeinträchtigt. (Rn. 36) (redaktioneller Leitsatz)
Schlagworte:
Außenaufzug, Nachbarklage, Rücksichtnahmegebot, Abweichung von den Abstandsflächenvorschriften, Schaffung zeitgemäßer Wohnverhältnisse, Beeinträchtigung des benachbarten Denkmals (verneint), Wohnungseigentümergemeinschaft, Baugenehmigung, Aufzugturm, Einzelbaudenkmal, Baugrenze, Abstandsfläche, Befreiung
Fundstelle:
BeckRS 2021, 37319

Tenor

I. Die Klage wird abgewiesen.
II. Die Klägerin hat die Kosten des Verfahrens einschließlich der außergerichtlichen Kosten des Beigeladenen zu tragen.
III. Die Kostenentscheidung ist für den Beigeladenen gegen Sicherheitsleistung in Höhe des vollstreckbaren Betrags, für die Beklagte ohne Sicherheitsleistung vorläufig vollstreckbar.
Die Klägerin darf die Vollstreckung durch Sicherheitsleistung oder Hinterlegung in Höhe des vollstreckbaren Betrags abwenden, wenn nicht die Beklagte vorher Sicherheit in gleicher Höhe leistet.

Tatbestand

1
Die Klägerin wendet sich als Nachbarin gegen die dem Beigeladenen erteilte Baugenehmigung für die Errichtung eines Außenaufzugs.
2
Die Klägerin ist als Wohnungseigentümergemeinschaft Eigentümerin des Grundstücks FlNr. … Gemarkung …, … straße 64 (im Folgenden: Nachbargrundstück). Dieses ist mit einem Wohngebäude bebaut, das im Osten als Teil einer geschlossenen Bebauung unmittelbar an das Gebäude auf FlNr. … Gemarkung …, … straße 62 (im Folgenden: Baugrundstück) anschließt. Sowohl das Gebäude auf dem Nachbargrundstück als auch das Gebäude auf dem Baugrundstück sind als Einzelbaudenkmäler in die Denkmalliste eingetragen.
3
Unter dem 15. Juni 2018 wurde dem Beigeladenen ein Vorbescheid für den Anbau eines Außenaufzugs an der Nordseite des Anwesens … straße 62 auf dem Baugrundstück erteilt (PlanNr. … * …*). In diesem wurde unter anderem die Frage 1 „Hofbebauung und rückwärtige Baugrenzen: Wird zur Errichtung des Aufzugs eine Befreiung zur Überschreitung der rückwärtigen Baugrenzen erteilt?“ positiv beantwortet. Daneben wurde die Frage 3 „Denkmalschutz: Das Gebäude … straße 62 ist in die Denkmalliste eingetragen. Wird eine denkmalrechtliche Erlaubnis gemäß Art. 6 BayDSchG für den Anbau eines Aufzugs erteilt?“ positiv beantwortet. Der Vorbescheid wurde der Klägerin ausweislich der Postzustellungsurkunde vom 20. Juni 2018 zugestellt. Sie hat gegen den Vorbescheid keinen Rechtsbehelf eingelegt.
4
Mit der streitgegenständlichen Baugenehmigung vom 12. August 2019 erteilte die Beklagte dem Beigeladenen die bauaufsichtliche Zulassung für die Errichtung eines Außenaufzugs an der Nordseite des Gebäudes auf dem Baugrundstück auf Grundlage des Bauantrags vom 5. November 2019 (PlanNr. … * …*). Die genehmigte Planung sieht die Errichtung eines verglasten Aufzugsturms vor, der gemessen ab der Nordfassade des Bestandsgebäudes 3,72 m in den Innenhof hineinreicht. Er weist eine Breite von 2,07 m auf und eine Gesamthöhe - gemessen von der natürlichen Geländeoberfläche - von 20,89 m. Der Außenaufzug reicht bis zum Dachgeschoss des Bestandsgebäudes und ist in allen Geschossen mit einem Zugang zum bestehenden Treppenhaus (Treppenabsatz im halben Geschoss) versehen. Die Entfernung des Aufzugturms von der Grundstücksgrenze zum Nachbargrundstück im Westen beträgt 8,44 m. Die durch den Außenaufzug ausgelösten Abstandsflächen Richtung Westen fallen in einem Bereich von ca. 45,6 m² auf das Nachbargrundstück.
5
Zur Verdeutlichung der Lage des geplanten Vorhabens und der Umgebung wird auf den folgenden Lageplan verwiesen (aufgrund des Einscannens möglicherweise nicht mehr maßstabsgetreu):
6
In den Gründen des Baugenehmigungsbescheids vom 12. August 2019 wurde ausgeführt, dass eine Abweichung wegen der Nichteinhaltung der erforderlichen Abstandsflächen zum Nachbargrundstück erteilt werde, da ein Aufzug zum heutigen Ausstattungsstandard gehöre und die Nachbarn in der Belichtung und Belüftung nicht zusätzlich eingeschränkt würden.
7
Mit Schriftsatz vom 19. August 2019, eingegangen beim Bayerischen Verwaltungsgericht München am 23. August 2019, hat die Klägerin Klage erhoben. Sie beantragt
die Baugenehmigung der Beklagten vom 12. August 2019 Az.: … wird aufgehoben.
8
Zur Begründung führte die Klägerin aus, dass der Anbau des Außenaufzugs an das nachbarliche Anwesen zu einer Veränderung des Gebietscharakters führe. Der Innenhof, an dem beide Anwesen liegen, sei ein rein begrünter Wohnhof, der keine Erschließungsfunktion habe und dem Ruhebedürfnis der Bewohner diene. Die Abwägung der Beklagten zur Erteilung der Abweichung von den Abstandsflächenvorschriften erfasse die abwägungserheblichen Belange nicht vollständig und gewichte sie unzutreffend. Der Beigeladene habe lediglich ein Interesse an der Erzielung eines möglichst hohen Kaufpreises. Demgegenüber würde durch den Aufzugsturm der parkähnliche Innenbereich des Bebauungsquartiers und dessen Funktion für das Mikroklima im Blockinneren zerstört. Auch die von dem Liftturm ausgehenden Licht- und Geräuschemissionen störten das Ruhebedürfnis der angrenzenden Bewohner empfindlich. Angesichts seiner Vorbildwirkung habe das Vorhaben unzumutbare nachteilige Auswirkungen für die Nachbarschaft und verstoße gegen das baurechtliche Rücksichtnahmegebot. Anstelle des jetzigen ununterbrochenen Grünzuges träten aufgrund der Vorbildwirkung des Vorhabens eine Vielzahl von Lifttürmen, die eine einschneidende Veränderung des Gebietscharakters zur Folge hätten. Licht, Luft und Sonneneinwirkung und in Folge davon die Vegetationsbedingungen in den Hausgärten würden erheblich beeinträchtigt. In denkmalrechtlicher Hinsicht werde das vorhandene Erscheinungsbild zerstört, wenn an der Rückseite der Gebäude überall vergleichbar dimensionierte Lifttürme errichtet würden. Derartige erhebliche Auswirkungen auf das Erscheinungsbild des eigenen Baudenkmals und des denkmalschutzwürdigen Ensembles müsse die Nachbarschaft nicht hinnehmen.
9
Mit Schriftsatz vom 11. November 2019 beantragt die Beklagte,
die Klage abzuweisen.
10
Die Klägerin könne sich aufgrund des erteilten Vorbescheids nur noch auf eine Verletzung des allgemeinen Rücksichtnahmegebots und des Bauordnungsrechts, mithin des Abstandsflächenrechts berufen, da der Vorbescheid im Übrigen Bindungswirkung entfalte. Das streitgegenständliche Vorhaben sei der Klägerin gegenüber nicht rücksichtslos. Die Störung einer Ruhezone sei nicht ersichtlich, nachdem sich die Aufzugsanlage nach heutigem technischen Standard nahezu geräuschlos betreiben lasse. Die Erteilung einer Abweichung hinsichtlich der Abstandsflächenvorschriften sei zur Herstellung angemessener Wohnverhältnisse gerechtfertigt. Beeinträchtigungen der Nachbarn würden vorliegend in äußerst geringem Maße entstehen.
11
Der Beigeladene beantragt,
die Klage abzuweisen.
12
Es bestünden schon Zweifel an der ordnungsgemäßen Vertretung der Klägerin. Hierzu bedürfe es eines Mehrheitsbeschlusses der Wohnungseigentümer, der bisher nicht vorgelegt worden sei. Aufgrund des bereits am 15. Juni 2018 erteilten Vorbescheids könne sich die Klägerin nur noch auf die Verletzung des allgemeinen Rücksichtnahmegebots und die Verletzung von Bauordnungsrecht berufen, da der Vorbescheid im Übrigen Bindungswirkung entfalte. Eine Beeinträchtigung der Licht- und Luftverhältnisse durch den Aufzugsanbau sei nicht ersichtlich. Demgegenüber diene der Anbau der Herstellung angemessener Wohnverhältnisse. Nachdem dies im dicht bebauten Bereich ohne Abweichung von den Abstandsflächen nicht möglich sei, sei diese Abweichung gerechtfertigt. Es handle sich bei dem Innenbereich des Bebauungsviertels nicht um Hausgärten, sondern um Innenhöfe, die einen eher vernachlässigten Zustand aufwiesen. Dies ergebe sich auch daraus, dass der Lichteinfall durch die Blockrandbebauung sehr eingeschränkt sei.
13
Zum weiteren Vorbringen der Parteien und zu den übrigen Einzelheiten wird auf die beigezogenen Behördenakten sowie die Gerichtsakte, insbesondere die Niederschrift über den gerichtlichen Augenschein vom 25. Oktober 2021 Bezug genommen.

Entscheidungsgründe

14
Die zulässige Klage ist unbegründet. Die Klägerin wird durch die streitgegenständliche Baugenehmigung nicht in ihren Rechten verletzt, § 113 Abs. 1 Satz 1 VwGO.
15
1. Die Klage ist zulässig. Insbesondere hat das Gericht keine Zweifel an einer ordnungsgemäßen Bevollmächtigung des Vertreters der Klägerin gemäß § 67 Abs. 2 und 6 VwGO. Der Bevollmächtigte der Klägerin hat mit Schriftsatz vom 12. Juni 2020 einen Beschluss der Wohnungseigentümergemeinschaft im Umlaufverfahren in Kopie vorgelegt, wonach dieser zur Prozessführung bevollmächtigt wird.
16
2. Die Klage ist unbegründet, da die Klägerin durch die streitgegenständliche Baugenehmigung nicht in ihren Rechten verletzt ist. Dritte können sich gegen eine Baugenehmigung nur dann mit Aussicht auf Erfolg zur Wehr setzen, wenn die angefochtene Baugenehmigung rechtswidrig ist und diese Rechtswidrigkeit zumindest auch auf der Verletzung von im Baugenehmigungsverfahren zu prüfenden Normen beruht, die gerade dem Schutz des betreffenden Nachbarn zu dienen bestimmt sind (vgl. BayVGH, B.v. 24.3.2009 - 14 CS 08.3017 - juris Rn. 20, 22). Für den Erfolg eines Nachbarrechtsbehelfs genügt es daher nicht, wenn die Baugenehmigung gegen Rechtsvorschriften des öffentlichen Rechts verstößt, die nicht - auch nicht teilweise - dem Schutz der Eigentümer benachbarter Grundstücke zu dienen bestimmt sind. Dementsprechend findet im gerichtlichen Verfahren auch keine umfassende Rechtskontrolle statt, vielmehr hat sich die gerichtliche Prüfung darauf zu beschränken, ob durch die angefochtene Baugenehmigung drittschützende Vorschriften, die dem Nachbarn einen Abwehranspruch vermitteln, verletzt werden.
17
2.1 Das Vorhaben verstößt nicht gegen (auch) dem Nachbarschutz dienende Vorschriften des Bauplanungsrechts, insbesondere nicht gegen das Gebot der Rücksichtnahme.
18
Bauplanungsrechtlicher Nachbarschutz ist vorliegend aus § 30 Abs. 3 BauGB i.V.m. § 34 BauGB herzuleiten. Ein Nachbar, der sich auf der Grundlage des § 34 Abs. 1 BauGB gegen ein Vorhaben im Innenbereich wendet, kann mit seiner Klage nur durchdringen, wenn eine angefochtene Baugenehmigung oder ein planungsrechtlicher Vorbescheid gegen das im Tatbestandsmerkmal des Einfügens enthaltene Gebot der Rücksichtnahme verstößt (stRspr, BVerwG, U.v. 5.12. 2013 - 4 C 5.12, ZfBR 2014, 257, m.w.N.). Darauf, ob sich das Bauvorhaben objektiv in die maßgebliche Umgebung einfügt, kommt es darüber hinaus nicht an. Es kann dabei dahinstehen, ob sich das Gebot der Rücksichtnahme im vorliegenden Fall aus dem Begriff des „Einfügens“ des § 34 Abs. 1 BauGB oder aus § 34 Abs. 2 BauGB i.V.m. § 15 Abs. 1 BauNVO ableitet, da im Ergebnis dieselbe Prüfung stattzufinden hat (vgl. BayVGH, B.v. 12.9.2013 - 2 CS 13.1351 - juris Rn. 4).
19
Inhaltlich zielt das Gebot der Rücksichtnahme darauf ab, Spannungen und Störungen, die durch unverträgliche Grundstücksnutzungen entstehen, möglichst zu vermeiden. Welche Anforderungen das Gebot der Rücksichtnahme begründet, hängt wesentlich von den jeweiligen Umständen des Einzelfalles ab. Für eine sachgerechte Bewertung des Einzelfalles kommt es wesentlich auf eine Abwägung zwischen dem, was einerseits dem Rücksichtnahmebegünstigten und andererseits dem Rücksichtnahmeverpflichteten nach Lage der Dinge zumutbar ist, an (BVerwG, U.v. 18.11.2004 - 4 C 1.04 - juris, Rn. 22; U.v. 29.11.2012 - 4 C 8.11 - juris Rn. 16; BayVGH, B.v. 12.9.2013 - 2 CS 13.1351 - juris Rn. 4). Bedeutsam ist ferner, inwieweit derjenige, der sich gegen das Vorhaben wendet, eine rechtlich geschützte wehrfähige Position innehat (BVerwG, B.v. 6.12.1996 - 4 B 215.96 - juris Rn. 9).
20
Bei Berücksichtigung dieser Vorgaben ergibt sich weder aus der Beeinträchtigung der Licht- und Luftverhältnisse noch unter dem Gesichtspunkt einer erdrückenden Wirkung eine Verletzung des Gebots der Rücksichtnahme. Dabei ist zu berücksichtigen, dass bei der Beurteilung der Beeinträchtigung der Klägerin allein auf das streitgegenständliche Vorhaben abzustellen ist. Die von der Klägerin in ihre Überlegungen mit eingestellten, mutmaßlichen weiteren Entwicklungen durch Bezugnahmen sind für das streitgegenständliche Verfahren nicht von Belang. Eine Verletzung von Nachbarrechten kann sich nur aus dem konkret durch die streitgegenständliche Baugenehmigung zugelassenen Vorhaben ergeben.
21
Das Gebot der Rücksichtnahme gibt den Nachbarn nicht das Recht, von jeglicher Beeinträchtigung der Licht- und Luftverhältnisse oder der Verschlechterung der Sichtachsen von seinem Grundstück aus verschont zu bleiben. Eine Rechtsverletzung wäre erst dann zu bejahen, wenn von dem Vorhaben eine unzumutbare Beeinträchtigung ausgeht (BayVGH, B.v. 22.6.2011 - 15 CS 11.1101 - juris Rn. 17; U.v. 22.7.2020 - 9 CS 20.1083 - juris Rn. 15). Mögliche Verringerungen des Lichteinfalls sind aber in aller Regel im Rahmen der Veränderung der baulichen Situation hinzunehmen (vgl. BayVGH, B.v. 15.12.2016 - 9 ZB 15.376 - juris Rn. 15). Eine erdrückende oder einmauernde Wirkung kommt vor allem bei nach Höhe und Volumen „übergroßen“ Baukörpern in geringem Abstand zu benachbarten Wohngebäuden in Betracht (BVerwG, U.v. 13.3.1981 - 4 C 1.78 - juris Rn. 38: 12-geschossiges Gebäude in 15 m Entfernung zum 2,5-geschossigen Nachbarwohnhaus; U.v. 23.5.1986 - 4 C 34.85 - juris Rn. 15: Drei 11,05 m hohe Siloanlagen im Abstand von 6 m zu einem 2-geschossigen Wohnanwesen; BayVGH, B.v. 10.12.2008 - 1 CS 08.2770 - juris Rn. 23; B.v. 5.7.2011 - 14 CS 11.814 - juris Rn. 21).
22
Derartige unzumutbare Beeinträchtigungen sind nicht ersichtlich. Eine solche Annahme ist schon aufgrund der Entfernung des Außenaufzugs von der gemeinsamen Grundstücksgrenze, dessen geringen Ausmaßen und dem Hervortreten vor die vorhandene Fassade von nur 3,72 m fernliegend. Nach dem Ergebnis des Augenscheins ist der Innenhof, in dem das streitgegenständliche Vorhaben errichtet werden soll, durch Vor- und Rücksprünge der zum Innenhof gerichteten Fassaden geprägt. Innerhalb des für die bauplanungsrechtliche Beurteilung maßgeblichen Gevierts zwischen … straße im Westen, … Straße im Norden, … Straße im Osten und … straße im Süden bestehen zahlreiche Vorbauten, die in den Innenhof hineinreichen und gegenüber den benachbarten Wohngebäuden in der geschlossenen Bebauung zum Teil geringere seitliche Abstände einhalten als das geplante Vorhaben. Dies gilt insbesondere für die Anwesen … Straße 1 und 3 und darüber hinaus auch für das Anwesen … straße 56 und … Straße 89. Die nachbarschaftliche Situation ist daher durch dichte Bebauung geprägt, bei der eine grenznahe Bebauung im Innenhofbereich üblich ist. Die zum Innenhof gerichteten Fenster des klägerischen Anwesens werden im Wesentlichen von Norden belichtet. Eine merkliche Beeinträchtigung des Lichteinfalls durch den geringen Gebäudevorsprung, der mit dem Vorhaben verwirklicht werden würde, ist schon angesichts der fortbestehenden Belichtungsmöglichkeit von Norden, Osten und Westen nicht zu erwarten.
23
Soweit die Klägerin darüber hinaus eine Verletzung des Rücksichtnahmegebots infolge der Störung einer rückwärtigen Ruhezone durch das Vorhaben geltend macht, ist schon nicht nachvollziehbar, aufgrund welcher Wirkungen des geplanten Außenaufzugs mit Beeinträchtigungen zu rechnen sein soll. Eine neu errichtete Aufzugsanlage ist regelmäßig nicht mit solchen Geräuschemissionen verbunden, die bei dem klägerischen Anwesen als störend empfunden werden könnten. Sofern gleichwohl hörbare Geräusche auftreten sollten, handelt es sich um solche, die mit dem Wohnen regelmäßig verbunden und deshalb in dem durch Wohnnutzung geprägten Gebiet hinzunehmen sind. Unabhängig davon hat der Augenschein ergeben, dass der von der Klägerin als „Ruhezone“ und „Grünzug“ geschilderte Innenhof sich tatsächlich als herkömmlicher Innenhof mit einer gewissen Begrünung und den dort üblicherweise vorhandenen Nutzungen wie Mülltonnen- und sonstigen Abstellbereichen sowie Kinderspielmöglichkeiten darstellt. Eine besondere, planungsrechtlich relevante Schutzwürdigkeit ist nicht gegeben.
24
2.2. Das Vorhaben verstößt nicht gegen dem Nachbarschutz dienende Vorschriften des Bauordnungsrechts, welche im vereinfachten Baugenehmigungsverfahren zu prüfen waren, Art. 59 BayBO, insbesondere nicht gegen die Vorschriften des Abstandsflächenrechts. Eine Rechtsverletzung durch die erteilte Abweichung ist nicht erkennbar, Art. 63 Abs. 1 Satz 1 Halbs. 1 BayBO iVm Art. 6 BayBO.
25
Nach Art. 63 Abs. 1 Satz 1 Halbs. 1 BayBO kann die Bauaufsichtsbehörde Abweichungen von Anforderungen der Bayerischen Bauordnung zulassen, wenn sie - wie vorliegend - unter Berücksichtigung des Zwecks der jeweiligen Anforderung und unter Würdigung der öffentlich-rechtlich geschützten nachbarlichen Belange mit den öffentlichen Belangen, insbesondere den Anforderungen des Art. 3 Abs. 1 BayBO vereinbar sind. Eine Abweichung kann insbesondere auch von den Anforderungen des Abstandsflächenrechts erteilt werden.
26
Der Zweck des Abstandsflächenrechts, der vor allem darin besteht, eine ausreichende Belichtung und Belüftung der Gebäude zu gewährleisten und die für Nebenanlagen erforderlichen Freiflächen zu sichern, kann allerdings regelmäßig nur dann erreicht werden, wenn die Abstandsflächen in dem gesetzlich festgelegten Umfang eingehalten werden. Da somit jede Abweichung von den Anforderungen des Art. 6 BayBO zur Folge hat, dass die Ziele des Abstandsflächenrechts nur unvollkommen verwirklicht werden, setzt die Zulassung einer Abweichung nach bisheriger Rechtsprechung Gründe von ausreichendem Gewicht voraus, durch die sich das Vorhaben vom Regelfall unterscheidet und die die Einbuße an Belichtung und Lüftung (sowie eine Verringerung der freien Flächen des Baugrundstücks) im konkreten Fall als vertretbar erscheinen lassen. Es muss sich um eine atypische, von der gesetzlichen Regel nicht zureichend erfasste oder bedachte Fallgestaltung handeln (BayVGH, B.v. 17.7.2007 - 1 CS 07.1340 - juris Rn. 16; B.v. 4.8.2011 - 2 CS 11.997 - juris Rn. 23; B.v. 5.12.2011 - 2 CS 11.1902 - juris Rn. 3; U.v. 22.12.2011 - 2 B 11.2231 - juris Rn. 16). Diese kann sich etwa aus einem besonderen Grundstückszuschnitt, einer aus dem Rahmen fallenden Bebauung auf dem Bau- oder dem Nachbargrundstück oder einer besonderen städtebaulichen Situation, wie der Lage des Baugrundstücks in einem historischen Ortskern, ergeben. In solchen Lagen kann auch das Interesse des Grundstückseigentümers, vorhandene Bausubstanz zu erhalten und sinnvoll zu nutzen oder bestehenden Wohnraum zu modernisieren, eine Verkürzung der Abstandsflächen durch Zulassung einer Abweichung rechtfertigen. Hingegen begründen allein Wünsche eines Eigentümers, sein Grundstück stärker auszunutzen als dies ohnehin schon zulässig wäre, noch keine Atypik, da Modernisierungsmaßnahmen, die nur der Gewinnmaximierung dienen sollen, auch in Ballungsräumen nicht besonders schützenswert sind (vgl. BayVGH, B.v. 20.11.2014 - 2 CS 14.2199 - juris Rn. 4; B.v. 2.12.2014 - 2 ZB 14.2077 - juris Rn. 3).
27
Eine derartige Sondersituation (Atypik) ist im vorliegenden Fall gegeben, so dass offen bleiben kann, ob die Erteilung einer Abweichung nach Art. 63 BayBO in der seit dem 1. September 2018 geltenden Fassung nach Einfügung des neuen Art. 6 Abs. 1 Satz 4 BayBO noch eine atypische Situation voraussetzt (Bayer. Landtag Drucksache 17/21474, zu Nr. 5 (Art.6)).
28
Nach der Rechtsprechung des Bayerischen Verwaltungsgerichtshofs vermittelt die Lage von Grundstücken in einem seit langer Zeit dicht bebauten großstädtischen Innenstadtquartier, in dem allenfalls wenige Gebäude die nach heutigen Maßstäben erforderlichen Abstände zu den jeweiligen Grundstückgrenzen einhalten - wie hier - eine besondere Atypik, die eine Abweichung von der Einhaltung der Regelabstandsflächen gegenüber Nachbarn rechtfertigt (BayVGH, B.v. 22.1.2020 - 15 ZB 18.2547 - BeckRS 2020, 1170, Rn. 36). In dicht bebauten innerstädtischen Bereichen ist eine atypische Situation überdies dann anzunehmen, wenn jede bauliche Veränderung entsprechend der vorgegebenen baulichen Situation geeignet ist, eine Abstandsflächenüberschreitung auszulösen (vgl. BayVGH, B. v. 4.8.2011 - 2 CS 11.997 - juris Rn. 23; VG München, B.v. 12.9.2017 - M 8 SN 17.3732, bestätigt durch BayVGH, B.v. 4.12.2017 - 2 CS 17.1969 - juris).
29
Hinzu kommt, dass der streitgegenständliche Außenaufzug aufgrund der denkmalrechtlichen Beschränkungen nicht innerhalb des Gebäudes verwirklicht werden kann. Bei dem streitgegenständlichen Gebäude handelt es sich um ein Einzelbaudenkmal mit einem für das Denkmal bedeutenden Treppenhaus, das in seiner Substanz vollständig erhalten bleiben soll (vgl. denkmalpflegerische Beurteilung vom 15. Mai 2018, Bl. 42 der Behördenakte). Für die Schaffung zeitgemäßer Wohnverhältnisse durch Herstellung eines Aufzugs bedarf es daher stets einer Erweiterung des Gebäudes nach außen in Form eines Anbaus. Ein solcher lässt sich aufgrund der beengten innerstädtischen Bebauung vorliegend nur verwirklichen, wenn von der Einhaltung der gesetzlich vorgeschriebenen Abstandsflächen abgewichen wird (vgl. in einem vergleichebaren Fall: BayVGH, U.v. 07.10.2010 - 2 B 09.328 - juris Rn. 34 f.)
30
Die Abweichung ist auch mit den öffentlichen Belangen unter Würdigung nachbarlicher Interessen vereinbar. Mit der Verpflichtung zur Würdigung nachbarlicher Interessen verlangt das Gesetz - wie bei dem bauplanungsrechtlichen Gebot der Rücksichtnahme - eine Abwägung zwischen den für das Vorhaben sprechenden Gründen und den Belangen des Nachbarn (BayVGH, B.v. 17.7.2007 - 1 CS 07.1340 - juris Rn. 17). Ob eine Abweichung von den Abstandsflächenvorschriften zugelassen werden kann, beurteilt sich dabei nicht allein danach, wie stark die Interessen des betroffenen Nachbarn beeinträchtigt werden. Es ist stets auch zu prüfen, ob die Schmälerung der nachbarlichen Interessen durch überwiegende Interessen des Bauherrn oder überwiegende öffentliche Belange gerechtfertigt ist (BayVGH, B.v. 17.7.2007 - 1 CS 07.1340 - juris Rn. 20).
31
Die von Art. 6 BayBO erfassten, schützenswerten Belange der Klägerin - Belichtung, Belüftung und Besonnung sowie nach umstrittener Ansicht auch der sozialen Wohnfrieden bzw. Sozialabstand (vgl. zum Streitstand: BayVGH, U.v. 31.7.2020 - 15 B 19.832 - juris Rn 22) - werden durch die Abweichung nicht unzumutbar beeinträchtigt. Die Beklagte hat sich im Rahmen der Prüfung der Abweichung mit der Situation auch der betroffenen Nachbarn in sachgerechter, auf den Einzelfall bezogener Weise auseinandergesetzt. Ermessensfehler sind insoweit nicht erkennbar.
32
In Bezug auf Belichtung, Besonnung und Belüftung treten durch die (rechnerisch) auf das Nachbargrundstück fallenden Abstandsflächen keine spürbaren Verschlechterungen ein (vgl. oben Nr. 2.1). Die gärtnerische Nutzung des Innenhofs ist im Bereich des Nachbargrundstücks aufgrund der Verschattung durch das hohe Anwesen der Klägerin im Süden sowie die hohe geschlossene Bebauung im Westen stark eingeschränkt. Ein demgegenüber merklicher Verschattungseffekt des östlich liegenden Vorhabens ist nicht zu erwarten. Ob daneben der sogenannte soziale Wohnfrieden zu den Schutzgütern des Abstandsflächenrechts zählt, ist umstritten. Diese Frage kann hier jedoch offenbleiben, da der soziale Wohnfrieden ebenfalls nicht unzumutbar beeinträchtigt wird. Im dicht bebauten innerstädtischen Bereich sind gegenseitige Einsichtnahmemöglichkeiten gang und gäbe und regelmäßig hinzunehmen. Die Klägerin konnte auch nicht darauf vertrauen, dass das Bestandsgebäude auf dem Baugrundstück nicht entsprechend der baulichen Entwicklung im Geviertsinnern für die zeitgemäße Nutzung ertüchtigt würde.
33
Bei Berücksichtigung der Gesamtsituation ist auch ein die Belange der Klägerin überwiegendes Bauherreninteresse gegeben. Hierzu zählt nach der Rechtsprechung des Bayerischen Verwaltungsgerichtshofs auch die Schaffung von zeitgemäßem Wohnraum (BayVGH, B.v. 5.12.2011 - 2 CS 11.1902 - juris Rn. 5). Das Interesse des Beigeladenen an der Herstellung eines zeitgemäßen Zugangs zum bestehenden Wohnraum unter Einhaltung des bauplanungsrechtlich zulässigen Rahmens überwiegt das Interesse der Klägerin, hiervon verschont zu bleiben. Dabei ist zu beachten, dass angesichts der Objektbezogenheit der Baugenehmigung nicht auf die persönlichen Verhältnisse des jeweiligen Antragstellers und damit die Person des Beigeladenen abzustellen ist, sondern auf die durch die baulichen Verhältnisse vorgegebene Interessenlage. Durch die Herstellung des Außenaufzugs wird es möglich, dass die bestehenden Wohnungen auch für mobilitätseingeschränkte Bewohner erreichbar bleiben. Hierzu zählen nicht nur solche Bewohner, die auf einen Rollstuhl angewiesen sind, sondern auch gebrechliche Menschen, die aus eigener Kraft nur wenige Treppenstufen überwinden können oder kleine Kinder, die zum Transport auf Kinderwägen o. ä. angewiesen sind. Nachdem diese Personen ohne Hilfe des Aufzugs häufig von der Nutzung der Wohnung ausgeschlossen wären, wiegt deren Interesse so schwer, dass das Interesse des Nachbarn an der Beibehaltung des bisherigen Gebäudezustands bei Weitem zurücktreten muss. Die besondere Bedeutung der Belange von Menschen mit Mobilitätseinschränkungen hat der Gesetzgeber sowohl für das Bauordnungsrecht (Art. 48 BayBO) als auch für das Denkmalschutzrecht (Art. 6 Abs. 4 BayDSchG) zum Ausdruck gebracht.
34
Angesichts der Rechtmäßigkeit der erteilten Abweichung kann die Kammer offenlassen, ob es einer solchen angesichts der seit 1. Februar 2021 geltenden Regelung des Art. 6 Abs. 6 Satz 1 Nr. 3 BayBO noch bedarf. Nach der genannten Vorschrift bleiben bei Gebäuden, die wie hier an der Grundstücksgrenze stehen, die Seitenwände von Vorbauten, auch wenn sie selbst nicht an der Grundstücksgrenze errichtet werden, bei der Bemessung der Abstandsflächen außer Betracht. Nachdem das streitgegenständliche Gebäude zulässigerweise im Rahmen der geschlossenen Bauweise an der Grenze zum Nachbargrundstück steht, kommt eine abstandsflächenrechtliche Unbeachtlichkeit der Seitenwände des Außenaufzugs dann in Betracht, wenn dieser noch als „Vorbau“ im Sinne des Art. 6 Abs. 6 Satz 1 Nr. 3 BayBO anzusehen wäre. Diese Rechtsänderung wäre zugunsten des Bauherrn im Klageverfahren zu berücksichtigen (Dirnberger in Busse/Kraus, BayBO, Stand: Mai 2021, Art. 66 Rn. 591), muss hier aufgrund der Rechtmäßigkeit der Abweichungsentscheidung aber nicht beurteilt werden.
35
2.3 Soweit die Klägerin geltend macht, die streitgegenständliche Baugenehmigung sei in denkmalrechtlicher Hinsicht rechtswidrig, weshalb sie als Denkmaleigentümerin des benachbarten Gebäudes in eigenen Rechten verletzt sei, ist darauf hinzuweisen, dass die Frage der denkmalrechtlichen Zulässigkeit des Vorhabens bereits aufgrund des Vorbescheids vom 15. Juni 2018 bejaht wurde. Aufgrund der Bindungswirkung des von der Klägerin nicht angefochtenen und bestandskräftigen Vorbescheids, der ein der Baugenehmigung entsprechendes Vorhaben beurteilt hat, musste in der streitgegenständlichen Baugenehmigung nicht mehr über diese Frage befunden werden (vgl. Decker in Busse/Kraus, BayBO, Stand: Mai 2021, Art. 71 Rn. 115). Aus diesem Grund scheidet eine Rechtsverletzung der Klägerin wegen der Verletzung denkmalrechtlicher Vorschriften schon aus.
36
Unabhängig davon und selbstständig tragend scheidet eine Verletzung der Rechte der Klägerin wegen der Verletzung denkmalrechtlicher Vorschriften auch dann aus, wenn diese im Rahmen der streitgegenständlichen Baugenehmigung noch zu prüfen gewesen wären. Die Klägerin als Nachbarin kann die denkmalrechtliche Zulässigkeit des Vorhabens nicht unabhängig von einer eigenen Betroffenheit rügen. Dies kommt nur in Bezug auf die Beeinträchtigung des Denkmals der Klägerin in Betracht. Dem Denkmaleigentümer kann im Hinblick auf seine gesetzliche Pflicht, das Denkmal zu erhalten und zu pflegen (Art. 4 BayDSchG) und im Hinblick auf die Bestandsgarantie des Art. 14 Abs. 1 Satz 1 GG, nur im Rahmen des sogenannten Umgebungsschutzes nach Art. 6 Abs. 1 Satz 2, Art. 6 Abs. 2 Satz 2 BayDSchG, ein Abwehrrecht gegen eine Baumaßnahme in der Nähe des Baudenkmals zukommen, wenn sich diese auf den Bestand oder das Erscheinungsbild des Baudenkmals auswirkt. Er kann in seinen Rechten jedoch nur dann verletzt sein, wenn das genehmigte Vorhaben die Denkmalwürdigkeit des benachbarten Anwesens erheblich beeinträchtigt. Ein allgemeiner Drittschutz zugunsten des Denkmaleigentümers lässt sich dem Bayerischen Denkmalschutzgesetz darüber hinaus nicht entnehmen (vgl. BayVGH, U.v. 24.1.2013 - 2 BV 11.1631 - juris Rn. 21 f. m.w.N.; B.v. 4.10.2016 - 9 ZB 14.1946 - juris Rn. 13 ff.). Eine solche erhebliche Beeinträchtigung des Gebäudes der Klägerin hat diese weder hinreichend dargelegt noch ist eine solche erkennbar. Nachdem es sich vorliegend um einen im Verhältnis zum Gesamtgebäude untergeordneten Anbau an das Nachbargebäude in erheblichen Abstand zum Gebäude der Klägerin handelt, wirkt sich der Außenaufzug auf das Erscheinungsbild des Denkmals der Klägerin nicht merklich aus.
37
Die Klage war nach alledem mit der Kostenfolge des § 154 Abs. 1 VwGO abzuweisen.
38
Es entspricht der Billigkeit, der Klägerin auch die außergerichtlichen Kosten des Beigeladenen aufzuerlegen, da dieser einen Sachantrag gestellt und sich dadurch einem Kostenrisiko ausgesetzt hat, § 154 Abs. 3, § 162 Abs. 3 VwGO.
39
Die Entscheidung über die vorläufige Vollstreckbarkeit beruht auf § 167 VwGO i.V.m. §§ 708 ff. ZPO.